电脑桌面
添加小米粒文库到电脑桌面
安装后可以在桌面快捷访问

卸料平台(讨论标准)

卸料平台(讨论标准)_第1页
1/10
卸料平台(讨论标准)_第2页
2/10
卸料平台(讨论标准)_第3页
3/10
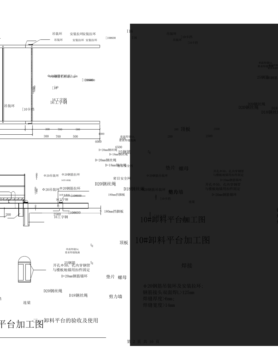
第 1 页 共 10 页 一、卸料平台构造 1、卸料平台尺寸大小为4.0m×2.5m×1.5m(长×宽×高)。平台上要设有限定荷载标牌,限载为1.5t。 2、主梁、次梁分别采用 I16 工字钢、[10 槽钢、吊环、钢管,所有构件均为焊接。防护栏采用φ48×3.5 钢管,分别在高 75cm、150cm 处设横杆两道,并与工字钢(槽钢)焊接。四周工字钢外侧面及防护栏杆均刷红白相间的油漆标识,并满布密目安全网。平台两侧分别各设一根φ22 受力钢丝绳和φ20 保险绳,每根绳端头固定设夹具不少于三个。钢丝绳与卸料平台钢管架接触处垫橡胶胶皮,以缓冲钢丝绳的拉力。钢丝绳通过暗柱及剪力墙或梁板预留孔拉接。平台底面设 50mm 厚的脚手板,满铺、铺牢、两端用 8 号镀锌铁丝捆紧,并在四周设 180mm 高踢脚板。出入口处再搭设防护棚。 3、在工字钢端部设置两个直径50mm 的圆洞,圆洞中心距工字钢边300mm。 4、采用Φ48×3.5 钢管在外挑的三面焊制1.5 米 高防护栏,立 杆间距1.5 米 ,水 平杆间距0.75 米 ; 所有钢管全部涂 刷防锈 漆,防护栏钢管涂 刷间距400mm 红白相间油漆。 5、在相应 位 置使 用Φ20 的光 圆钢筋 焊制钢丝绳拉环,拉环必 须 完 全兜 过工字钢,拉环与工字钢接触部位 满焊,钢筋 接头时 搭接长度 为125mm 双 面焊。 6、在主次龙 骨 上面满铺50mm 厚脚手板,单 片 脚手板宽度 不得 小于 200mm,沿 外挑部分四周搭设高度 大于 180mm 的挡 脚板,所有挡 脚板的两端采用直径为4mm 的镀锌钢丝箍 紧。脚手板的端部应 使 用 100X50 横肋 将 多 块 木 板连 接成 为整 体 。 7、防护架内 侧满挂 双 层 密目安全网,同 时 内 侧附 加 一层 竹 胶合 板。 8、根据 各楼 层 预留的地 锚 ,使 用塔 吊将 卸料平台吊装 到 相应 楼 层 ,之 前 在上层 的暗柱根部左 、右 、后 三面每面角 部竖 向 放 置两根 100x100 方 木 ,同 时 顶 板端部钢丝绳下 面也 要放 置1~2 根 100x100 方 木 ,将 工字钢端部伸 入预留的地 锚 中,同 时 将 钢丝绳与吊环连 接、扣 紧。钢丝绳端部连 接用的钢丝绳卡 每处不得 小于 3 个。 9、使 用Φ48×3.5 的短 钢管穿 过工字钢上面的预留洞,再用两个扣 件靠 近 地 锚 扣 紧。所有地 锚 的锚 固长度 不得 小于 445mm,靠 近 连 梁时 尽 量 将 地 锚 锚 入梁...

1、当您付费下载文档后,您只拥有了使用权限,并不意味着购买了版权,文档只能用于自身使用,不得用于其他商业用途(如 [转卖]进行直接盈利或[编辑后售卖]进行间接盈利)。
2、本站所有内容均由合作方或网友上传,本站不对文档的完整性、权威性及其观点立场正确性做任何保证或承诺!文档内容仅供研究参考,付费前请自行鉴别。
3、如文档内容存在违规,或者侵犯商业秘密、侵犯著作权等,请点击“违规举报”。

碎片内容

卸料平台(讨论标准)

您可能关注的文档

确认删除?
VIP
微信客服
  • 扫码咨询
会员Q群
  • 会员专属群点击这里加入QQ群
客服邮箱
回到顶部