电脑桌面
添加小米粒文库到电脑桌面
安装后可以在桌面快捷访问

期BIM一级历年真题解析VIP专享

期BIM一级历年真题解析_第1页
1/3
期BIM一级历年真题解析_第2页
2/3
期BIM一级历年真题解析_第3页
3/3
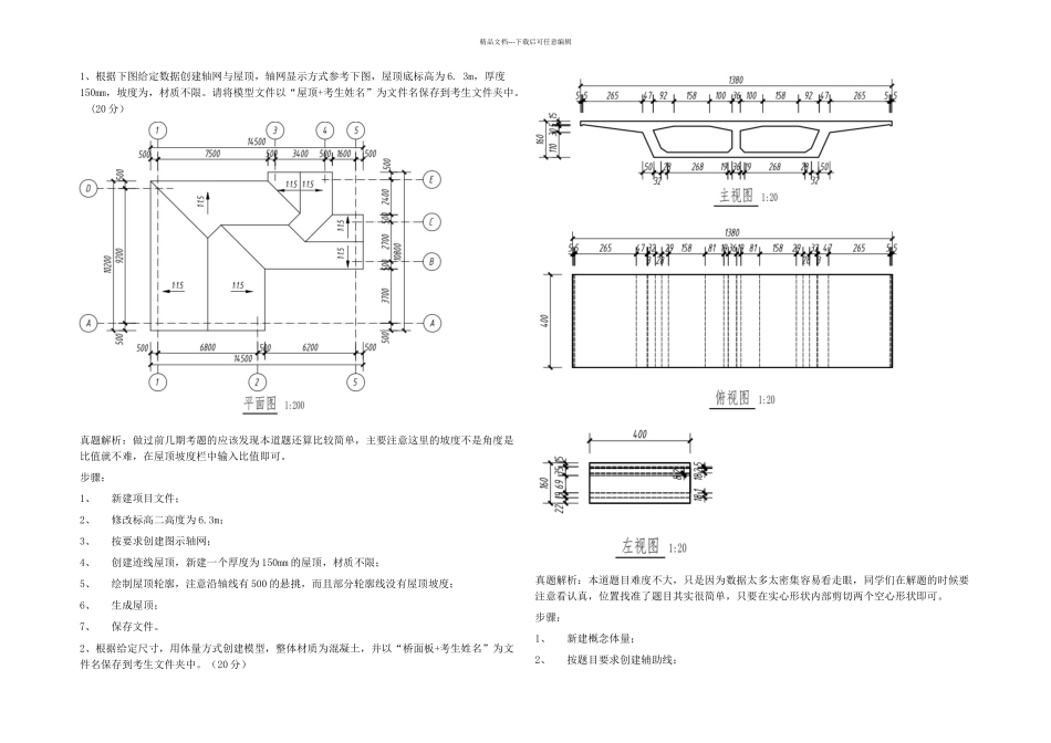
精品文档---下载后可任意编辑1、根据下图给定数据创建轴网与屋顶,轴网显示方式参考下图,屋顶底标高为 6. 3m,厚度150mm,坡度为,材质不限。请将模型文件以“屋顶+考生姓名”为文件名保存到考生文件夹中。 (20 分)真题解析:做过前几期考题的应该发现本道题还算比较简单,主要注意这里的坡度不是角度是比值就不难,在屋顶坡度栏中输入比值即可。步骤:1、新建项目文件;2、修改标高二高度为 6.3m;3、按要求创建图示轴网;4、创建迹线屋顶,新建一个厚度为 150mm 的屋顶,材质不限;5、绘制屋顶轮廓,注意沿轴线有 500 的悬挑,而且部分轮廓线没有屋顶坡度;6、生成屋顶;7、保存文件。2、根据给定尺寸,用体量方式创建模型,整体材质为混凝土,并以“桥面板+考生姓名”为文件名保存到考生文件夹中。(20 分)真题解析:本道题目难度不大,只是因为数据太多太密集容易看走眼,同学们在解题的时候要注意看认真,位置找准了题目其实很简单,只要在实心形状内部剪切两个空心形状即可。步骤:1、新建概念体量;2、按题目要求创建辅助线;精品文档---下载后可任意编辑3、根据辅助线确定的点创建实心形状;4、根据辅助线确定的点创建空心形状;5、修改整体材质为混凝土;6、保存文件。3、根据给定尺寸,用构件集方式创建模型,整体材质为木材,请将模型以“鸟居+考生姓名”为文件名保存到考生又件天中。(20 分)真题解析:本道题目比较简单,基本上趋势实心拉伸形状。最上面那根圆杆可以用三角形的空心行转个剪切实心圆柱得到。4、根据以下要求和给出的图纸,创建模型并将结果输出。在考生文件夹下新建名为“第四题输出结果”的文件夹,将结果文件保存在该文件夹。(40 分)(1) BIM 建模环境设置(1 分)设置项目信息:①项目发布日期: 2024 年 9 月 1 日;②项目编号: 2024001-1(2) BIM 参数化建模(29 分)1)根据给出的图纸创建标高、轴网、建筑形体,包括:墙、门、窗、柱、屋顶、楼板、楼梯、洞口、坡道、扶手。其中,要求门窗尺寸、位置、标记名称正确。未标明尺寸与样式不作要求。2)主要建筑构件参数要求如下:精品文档---下载后可任意编辑(3)创建图纸(8 分)1)创建门窗表,要求包含类型标记、宽度、高度、底高度、合计,并计算总数。(2 分)2)建立 A3 或 A4 尺寸图纸,创建“1-1 剖面图”,样式要求(尺寸标注;视图比例:1:100;图纸命名:1-1 剖面图;轴头显示样式:在底部显示)与试卷一致。(6 分...

1、当您付费下载文档后,您只拥有了使用权限,并不意味着购买了版权,文档只能用于自身使用,不得用于其他商业用途(如 [转卖]进行直接盈利或[编辑后售卖]进行间接盈利)。
2、本站所有内容均由合作方或网友上传,本站不对文档的完整性、权威性及其观点立场正确性做任何保证或承诺!文档内容仅供研究参考,付费前请自行鉴别。
3、如文档内容存在违规,或者侵犯商业秘密、侵犯著作权等,请点击“违规举报”。

碎片内容

期BIM一级历年真题解析

确认删除?
VIP
微信客服
  • 扫码咨询
会员Q群
  • 会员专属群点击这里加入QQ群
客服邮箱
回到顶部