电脑桌面
添加小米粒文库到电脑桌面
安装后可以在桌面快捷访问

实例2:某电气照明工程施工图预算VIP专享

实例2:某电气照明工程施工图预算_第1页
1/6
实例2:某电气照明工程施工图预算_第2页
2/6
实例2:某电气照明工程施工图预算_第3页
3/6
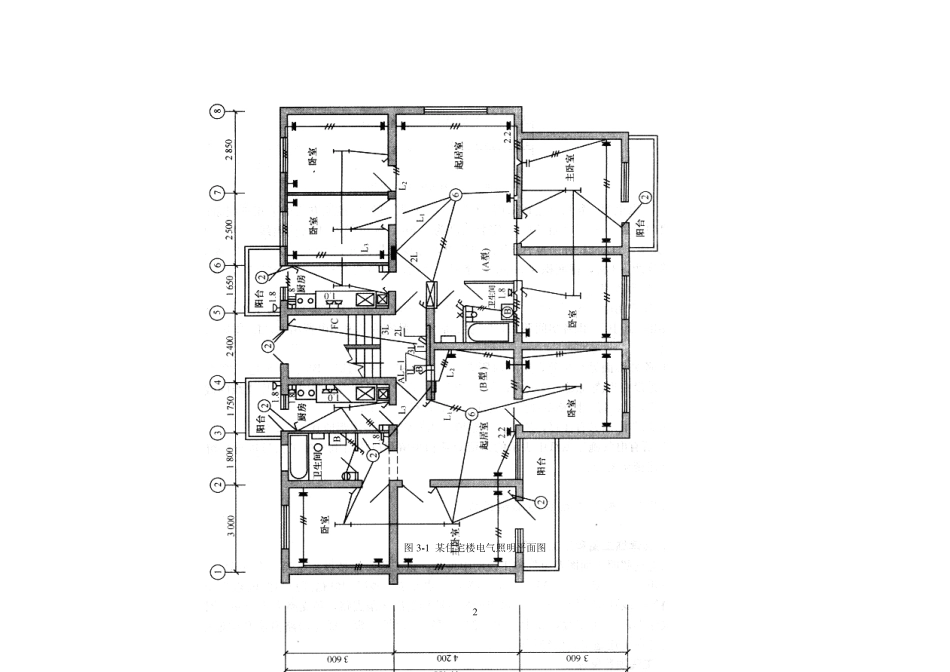
1 实例:某电气照明工程施工图预算 一、某电气照明工程的工程概况、施工图与施工说明 1、工程概况、施工图 本设计图共两张,其中电气照明平面图如图3-1 所示,配电系统图如图3-2 所示。 (1)建筑概况。本住宅楼共 6 层,每层高 3m ,一个单元内每层共两户,有 A、B 两种户型:A 型为 4 室 1 厅,约 92m 2;B 型为 3 室 1 厅,约 73m 2。共用楼梯、楼道。 (2)供电电源。每层住宅楼采用 220V 单相电源、TN-C 接地方式的单相三线系统供电。 2、施工说明 (1)在楼道内设置一个配电箱 AL-I,安装高度为 1.8m ,配电箱有 4 路输出线(1L、2L、3L、4L),其中,1L、2L 分别为 A、B 两户供电,导线及敷设方式为 BV-3X6-SC25-WC(铜芯塑料绝缘线,3 根,截面积为 6m m 2,穿钢管敷设,管径为 25m m ,沿墙暗敷),3L供楼梯照明,4L 为备用。 (2)住户用电。A、B 两户分别在室内安装一个配电箱,其安装高度为 1.8m ,分别采用 3 路供电,其中 Ll 供各房间照明,L2 供起居室、卧室内的家用电器用电,L3 供厨房、卫生间用电。 (3)除非图面另有注释,房间内所有照明、插座管线均选用 BV-500 型电线穿 PVC20型管,敷设在现浇混凝土楼板内;竖直方向为暗敷设在墙体内。照明、插座支线的截面积一律为 2.5m m 2,每一回路单独穿一根管,穿管管径为 20m m 。 (4)除非图面另有注释,所有开关距地 1.4m 安装,插座距地 0.4m 安装。 (5)所有电气施工图纸中表示的预留套管和预留洞口均由电气施工人员进行预留,施工时与土建密切配合。 图3-2 某住宅楼供电系统图 2 图3 -1 某住宅楼电气照明平面图 3 二、施工图预算的编制依据及说明 1、施工图预算的编制依据 ①工程施工图(平面图和系统图)和相关资料说明。 ②2004 年江苏省颁发的《全国统一安装工程预算定额江苏省单位估价表》 ③国家和工程所在地区有关工程造价的文件。 2、施工图预算的编制要求 本例的工程类别为一类工程,施工地点为南京市区。 三、分项工程项目的划分和排列 (阅读施工图和施工说明,熟悉工程内容。从电气照明平面图及电气施工说明中可知:该工程每层楼设配电箱一个(AL-1),每户设配电箱一个(AL-1-1、AL-1-2),均为嵌入式安装。楼层配电箱到户内配电箱为 6mm2 铜芯塑料绝缘线穿钢管沿墙暗敷。每户的配电箱均引出 3 条支路,各支路为 2.5mm2 铜芯塑料绝缘线穿 UPVC 管暗敷,...

1、当您付费下载文档后,您只拥有了使用权限,并不意味着购买了版权,文档只能用于自身使用,不得用于其他商业用途(如 [转卖]进行直接盈利或[编辑后售卖]进行间接盈利)。
2、本站所有内容均由合作方或网友上传,本站不对文档的完整性、权威性及其观点立场正确性做任何保证或承诺!文档内容仅供研究参考,付费前请自行鉴别。
3、如文档内容存在违规,或者侵犯商业秘密、侵犯著作权等,请点击“违规举报”。

碎片内容

实例2:某电气照明工程施工图预算

确认删除?
VIP
微信客服
  • 扫码咨询
会员Q群
  • 会员专属群点击这里加入QQ群
客服邮箱
回到顶部