电脑桌面
添加小米粒文库到电脑桌面
安装后可以在桌面快捷访问

30万元以内乡村小别墅效果图

30万元以内乡村小别墅效果图_第1页
1/59
30万元以内乡村小别墅效果图_第2页
2/59
30万元以内乡村小别墅效果图_第3页
3/59
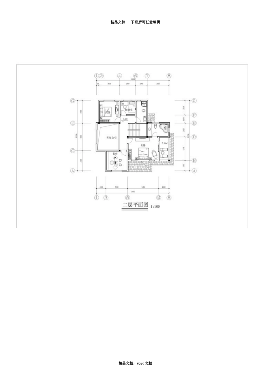
精品文档---下载后可任意编辑现在跟大家介绍几款新农村户型图,在农村有地的,手头上有二十万要建房的〔不含精装修〕,根本上下面的户型是可以建造的。哈哈。实现从农村包围城市,农村的豪宅是第一步!户型参考造价1、毛胚房 砖混 400-1000/㎡,框架 600-1600/㎡2、毛胚房+精装修 砖混 1200-3000 元/㎡,框架 1500-4000 元/㎡当然精装修只是说根据一般的好的装修,奢华的装修就不是这个价格了,以上价格不包括前后花园栽花种草等费用。下面的户型,一般只给了建筑图,没有结构图,假如施工时候不清楚配筋,可以留言询问。一般框架结构,根底好的,可以采纳天然地基,不好的,就要做整板根底或桩根底,通常板宜采纳双层配筋,现浇,屋面板可不用抗渗混凝土,也可以不做防水,但屋面板要做好一点,瓦要盖好点。以下的户型只是本人收集的一局部,我收集了几十种户型,压缩包有 20M,有相当一局部有 CAD 图,不过很多都是建筑图,配筋自己要考虑。一、独栋别墅户型农村的爆发户,链子很粗的新贵,可以考虑这样的户型。大气!户型一 提高幸福指数的关键 精品文档,word 文档精品文档---下载后可任意编辑精品文档,word 文档精品文档---下载后可任意编辑精品文档,word 文档精品文档---下载后可任意编辑精品文档,word 文档精品文档---下载后可任意编辑精品文档,word 文档精品文档---下载后可任意编辑精品文档,word 文档精品文档---下载后可任意编辑精品文档,word 文档精品文档---下载后可任意编辑精品文档,word 文档精品文档---下载后可任意编辑精品文档,word 文档精品文档---下载后可任意编辑精品文档,word 文档精品文档---下载后可任意编辑户型二 一座豪宅旺三代〔(*^__^*) 嘻嘻……,这么像房产公司的广告?!〕精品文档,word 文档精品文档---下载后可任意编辑精品文档,word 文档精品文档---下载后可任意编辑精品文档,word 文档精品文档---下载后可任意编辑精品文档,word 文档精品文档---下载后可任意编辑精品文档,word 文档精品文档---下载后可任意编辑精品文档,word 文档精品文档---下载后可任意编辑精品文档,word 文档精品文档---下载后可任意编辑二、家族户型 家中人丁兴旺的,可以考虑这种联排户型。要是前面有口池塘,凉风习习,池塘的知了叽叽喳喳叫着,能够给后代一个不错的童年想象。精品文档,word 文档精品文档---下载后可任意编辑三、让城里人留口水的户型〔独栋别墅型〕精品文档,word...

1、当您付费下载文档后,您只拥有了使用权限,并不意味着购买了版权,文档只能用于自身使用,不得用于其他商业用途(如 [转卖]进行直接盈利或[编辑后售卖]进行间接盈利)。
2、本站所有内容均由合作方或网友上传,本站不对文档的完整性、权威性及其观点立场正确性做任何保证或承诺!文档内容仅供研究参考,付费前请自行鉴别。
3、如文档内容存在违规,或者侵犯商业秘密、侵犯著作权等,请点击“违规举报”。

碎片内容

30万元以内乡村小别墅效果图

您可能关注的文档

确认删除?
VIP
微信客服
  • 扫码咨询
会员Q群
  • 会员专属群点击这里加入QQ群
客服邮箱
回到顶部