电脑桌面
添加小米粒文库到电脑桌面
安装后可以在桌面快捷访问

机柜线槽安装说明书(图片为CAD)

机柜线槽安装说明书(图片为CAD)_第1页
1/6
机柜线槽安装说明书(图片为CAD)_第2页
2/6
机柜线槽安装说明书(图片为CAD)_第3页
3/6
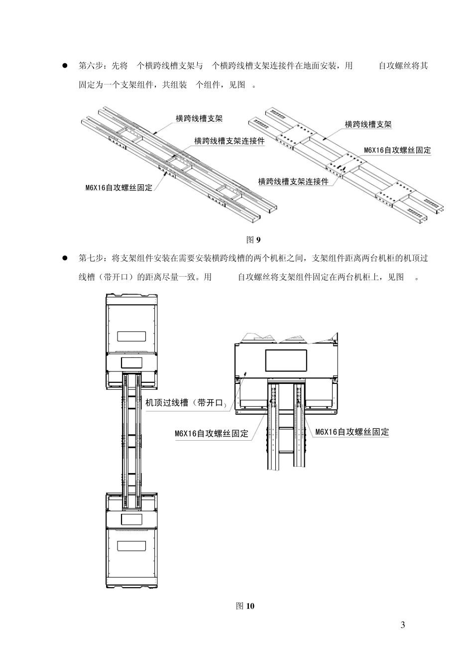
1 线槽安装说明书  安装方法 需要自配安装工具:Ф 5一字螺丝刀1把,Ф 5十字螺丝刀1把,电动批头等。 已配安装配件:M4X8自攻螺丝200个,M6X16自攻螺丝200个。 M4X8自攻螺丝M6X16自攻螺丝  第一步:将机柜移至事先规化好的安装位置(12台机柜规格一样,可随意安放位置);拆封木箱包装的线槽,清点数量(部分零件有多配给,可当备用件),然后进行第二步。  第二步:用电动批头将12台机柜顶部上的机柜顶部后盖板拆掉,见图2。 机柜顶部后盖板 图2  第三步:根据布局来安装机顶过线槽。机顶过线槽分为2种,1、机顶过线槽(普通)8个;2、机顶过线槽(带开口)4个,用于需要安装横跨线槽的机柜。用M6X16自攻螺丝将机顶过线槽固定在机柜后部,见图3、图4。 4-M6X16自攻螺丝固定机顶过线槽(普通) 4-M6X16自攻螺丝固定机顶过线槽(中间带开口) 图3 图4  第四步:每台机柜后上方装入 2个机顶进出线拐角盖板,12台机柜共 24个机顶进出线拐角盖板。 2 用M4X8自攻螺丝将其固定,见图5、图6。 4-M4X8自攻螺丝固定机顶进出线拐角盖板机顶进出线拐角盖板4-M4X8自攻螺丝固定 图5 图6  第五步:每两台机柜间的机顶过线槽用2个机顶过线槽连接片连接,用M4X8自攻螺丝将其固定。 每排机柜的两端安装机顶过线槽端盖板,用M4X8自攻螺丝将其固定,见图7、图8。 4-M4X8自攻螺丝固定4-M4X8自攻螺丝固定机顶过线槽端盖板机顶过线槽连接片 图7 图8 3  第六步:先将2个横跨线槽支架与3个横跨线槽支架连接件在地面安装,用M6X16自攻螺丝将其固定为一个支架组件,共组装2个组件,见图9。 M6X16自攻螺丝固定M6X16自攻螺丝固定横跨线槽支架连接件横跨线槽支架连接件横跨线槽支架横跨线槽支架图9  第七步:将支架组件安装在需要安装横跨线槽的两个机柜之间,支架组件距离两台机柜的机顶过线槽(带开口)的距离尽量一致。用M6X16自攻螺丝将支架组件固定在两台机柜上,见图10。 M6X16自攻螺丝固定M6X16自攻螺丝固定机顶过线槽(带开口) 图10 4  第八步:将2 个横跨线槽底壳安装在支架组件上,横跨线槽底壳有方向请注意,由于可调节距离,横跨线槽底壳安装时尽量离机顶过线槽(带开口)近。用M6X16自攻螺丝将横跨线槽底壳固定在支架上,见图1 1 、图1 2 。 M6X16自攻螺丝固定M6X16自攻螺丝固定横跨线槽底壳机顶过线槽(带开口) 图11 5 图12  第九步:安装横跨线槽盖板,横跨线槽盖板有方向请注...

1、当您付费下载文档后,您只拥有了使用权限,并不意味着购买了版权,文档只能用于自身使用,不得用于其他商业用途(如 [转卖]进行直接盈利或[编辑后售卖]进行间接盈利)。
2、本站所有内容均由合作方或网友上传,本站不对文档的完整性、权威性及其观点立场正确性做任何保证或承诺!文档内容仅供研究参考,付费前请自行鉴别。
3、如文档内容存在违规,或者侵犯商业秘密、侵犯著作权等,请点击“违规举报”。

碎片内容

机柜线槽安装说明书(图片为CAD)

您可能关注的文档

确认删除?
VIP
微信客服
  • 扫码咨询
会员Q群
  • 会员专属群点击这里加入QQ群
客服邮箱
回到顶部