电脑桌面
添加小米粒文库到电脑桌面
安装后可以在桌面快捷访问

第八章自动化制造系统VIP免费

第八章自动化制造系统_第1页
1/52
第八章自动化制造系统_第2页
2/52
第八章自动化制造系统_第3页
3/52
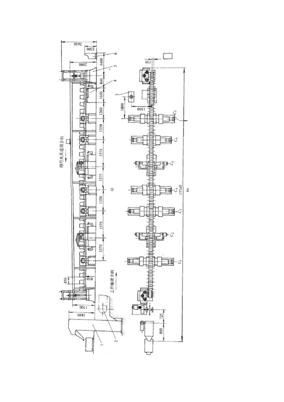
第八章自动化制造系统自动化制造设备(或系统)是应用于制造行业的机电一体化产品,它的自动化水平代表了一个国家制造业的发达程度,它的普及应用会有效改善劳动条件,提高劳动生产率,提高产品质量,降低制造成本,提高劳动者素质,带动相关产业及技术发展,从而推动一个国家的制造业逐渐由劳动密集型产业向技术密集型产业发展。目前在我国乃至全球都非常重视制造自动化技术的发展。第一节概述自动化制造系统是指在较少的人工直接或间接干预下,将原材料加工成零件或将零件组装成产品,在加工过程中实现管理过程和工艺过程自动化。管理过程包括产品的优化设计;程序的编制及工艺的生成;设备的组织及协调;材料的计划与分配;环境的监控等。工艺过程包括工件的装卸、储存和输送;刀具的装配、调整、输送和更换;工件的切削加工、排屑、清洗和测量;切屑的输送、切削液的净化处理等。自动化制造系统包括刚性制造和柔性制造,“刚性”的含义是指该生产线只能生产某种或生产工艺相近的某类产品,表现为生产产品的单一性。刚性制造包括组合机床、专用机床、刚性自动化生产线等。“柔性”是指生产组织形式和生产产品及工艺的多样性和可变性,可具体表现为机床的柔性、产品的柔性、加工的柔性、批量的柔性等。柔性制造包括柔性制造单元(FMC)、柔性制造系统(FMS)、柔性制造线(FML)、柔性装配线(FAL)、计算机集成制造系统(CIMS)等。下面依据自动化制造系统的生产能力和智能程度进行分类介绍。一、刚性自动化生产1、刚性半自动化单机除上下料外,机床可以自动地完成单个工艺过程的加工循环,这样的机床称为刚性半自动化机床。这种机床一般是机械或电液复合控制式组合机床和专用机床,可以进行多面、多轴、多刀同时加工,加工设备按工件的加工工艺顺序依次排列;切削刀具由人工安装、调整,实行定时强制换刀,如果出现刀具破损、折断,可进行应急换刀;例如:单台组合机床,通用多刀半自动车床,转塔车床等。从复杂程度讲,刚性半自动化单机实现的是加工自动化的最低层次,但是投资少、见效快,适用于产品品种变化范围和生产批量都较大的制造系统。缺点是调整工作量大,加工质量较差,工人的劳动强度也大。2、刚性自动化单机它是在刚性半自动化单机的基础上增加自动上、下料等辅助装置而形成的自动化机床。辅助装置包括自动工件输送、上料,下料、自动夹具、升降装置和转位装置等;切屑处理一般由刮板器和螺旋传送装置完成。这种机床实现的也是单个工艺过程的全部加工循环。这种机床往往需要定做或改装,常用于品种变化很小,但生产批量特别大的场合。主要特点是投资少、见效快,但通用性差,是大量生产最常见的加工装备。3、刚性自动化生产线刚性自动化生产线是多工位生产过程,用工件输送系统将各种自动化加工设备和辅助设备按一定的顺序连接起来,在控制系统的作用下完成单个零件加工的复杂大系统。在刚性自动线上,被加工零件以一定的生产节拍,顺序通过各个工作位置,自动完成零件预定的全部加工过程和部分检测过程。因此,与刚性自动化单机相比,它的结构复杂,任务完成的工序多,所以生产效率也很高,是少品种、大量生产必不可少的加工装备。除此之外,刚性自动生产线还具有可以有效缩短生产周期,取消半成品的中间库存,缩短物料流程,减少生产面积,改善劳动条件,便于管理等优点。它的主要缺点是投资大,系统调整周期长,更换产品不方便。为了消除这些缺点,人们发展了组合机床自动线,可以大幅度缩短建线周期,更换产品后只需更换机床的某些部件即可(例如可更换主轴箱),大大缩短了系统的调整时间,降低了生产成本,并能收到较好的使用效果和经济效果。组合机床自动线主要用于箱体类零件和其他类型非回转体的钻、扩、铰、镗、攻螺纹和铣削等工序的加工。刚性自动化生产线目前正在向刚柔结合的方向发展。图8-1所示为加工曲拐零件的刚性自动线总体布局图。该自动线年生产曲拐零件1700件,毛坯是球墨铸铁件。由于工件形状不规则,没有合适的输送基面,因而采用了随行夹具安装定位,便于工件的输送。该曲拐加工自动线由7台组合机床和1个装卸工位组成。全线定位夹紧机构由...

1、当您付费下载文档后,您只拥有了使用权限,并不意味着购买了版权,文档只能用于自身使用,不得用于其他商业用途(如 [转卖]进行直接盈利或[编辑后售卖]进行间接盈利)。
2、本站所有内容均由合作方或网友上传,本站不对文档的完整性、权威性及其观点立场正确性做任何保证或承诺!文档内容仅供研究参考,付费前请自行鉴别。
3、如文档内容存在违规,或者侵犯商业秘密、侵犯著作权等,请点击“违规举报”。

碎片内容

第八章自动化制造系统

您可能关注的文档

文章天下+ 关注
实名认证
内容提供者

各种文档应有尽有

确认删除?
VIP
微信客服
  • 扫码咨询
会员Q群
  • 会员专属群点击这里加入QQ群
客服邮箱
回到顶部