电脑桌面
添加小米粒文库到电脑桌面
安装后可以在桌面快捷访问

电梯井钢结构安装方案

电梯井钢结构安装方案_第1页
1/11
电梯井钢结构安装方案_第2页
2/11
电梯井钢结构安装方案_第3页
3/11
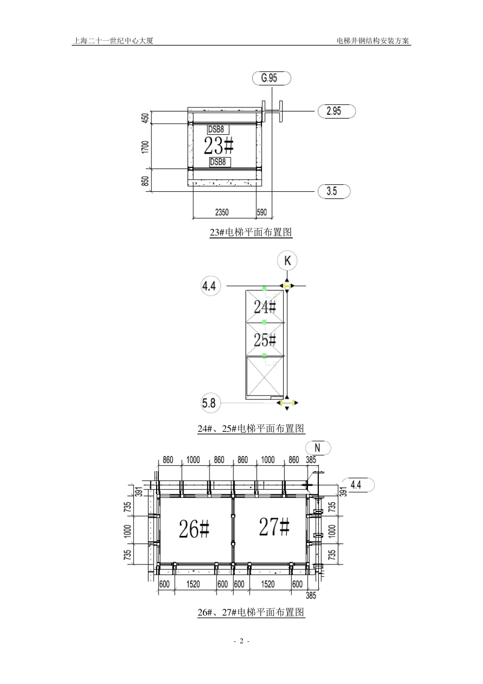
上海二十一世纪中心大厦 电梯井钢结构安装方案 - 1 - 电梯井钢结构安装方案 一、概述 本工程电梯井由主楼电梯井和裙房电梯井两部分组成,共2 7 个电梯井,其中主楼共 2 3 个,分别位于核心筒内和筒外,其中1 #~2 0 #在核心筒内,2 1 #~2 3 #在核心筒外部,其余电梯在裙房部分,电梯平面布置图如下: 1 #~2 0 #电梯平面布置图 2 1 #、2 2 #电梯平面布置图 上海二十一世纪中心大厦 电梯井钢结构安装方案 - 2 - 2 3 #电梯平面布置图 2 4 #、2 5 #电梯平面布置图 2 6 #、2 7 #电梯平面布置图 上海二十一世纪中心大厦 电梯井钢结构安装方案 - 3 - 电梯井钢结构包括钢梁和钢柱约2000 多件,其中最重构件约0.45t,最轻构件约106kg,电梯井钢梁与钢柱、钢梁与埋件大部分为高强螺栓连接,钢柱与埋件为焊接,钢柱碰混凝土钢梁处,钢柱断开,靠埋件连接,如下图所示: 二、安装思路 首先安装17#电梯井构件,再安装18#、19#电梯井,然后依照先低区在高区的顺序安装其余电梯井。 电梯井道内钢结构构件无法用塔吊吊装,只能使用倒链采用土法进行吊装。根据现场情况,在现场需使用膨胀螺栓 592 个,钢板(PL300*200*20)148 个,安装思路如下:低区电梯井顶部砼楼板已经施工完毕,顶部留有方形孔洞,可在该洞表面放置一工字钢,将钢丝绳一端绑扎在工字钢上,另一端作为吊点将倒链挂在钢丝绳上安装电梯井顶部的构件,并在中间楼层每五层设置吊点,在楼板上布置两块埋件,并在埋件上焊接两圆箍,用一工字钢一端悬挑在井道内,另一端用两道圆钢将工字钢箍在埋件上,将钢丝绳挂在已经架好的工字钢上进行吊装。如下图所示: 上海二十一世纪中心大厦 电梯井钢结构安装方案 - 4 - 高区电梯井的安装根据现场实际情况进行设置吊点,18#、19#电梯井道两边有砼梁,可在两边梁上架设一工字钢,将钢丝绳一端绑扎在工字钢上,另一端挂倒链进行吊装,其余电梯井可按低区方式进行安装。 三、安装准备工作 1、组织施工人员熟悉图纸,并进行现场调查,了解现场实际情况,安装前对施工人员进行安全技术交底。 2、安装前检查钢丝绳(Φ10mm)、倒链(2t)等吊装工具。 3、操作平台的搭设。根据现场实际情况,在电梯井道底部搭设脚手架,方便施工人员作业,脚手架示意图如下: 上海二十一世纪中心大厦 电梯井钢结构安装方案 - 5 - 待第一根钢梁完毕后,拆除上部的脚手板,向上继续搭设脚手架,每两...

1、当您付费下载文档后,您只拥有了使用权限,并不意味着购买了版权,文档只能用于自身使用,不得用于其他商业用途(如 [转卖]进行直接盈利或[编辑后售卖]进行间接盈利)。
2、本站所有内容均由合作方或网友上传,本站不对文档的完整性、权威性及其观点立场正确性做任何保证或承诺!文档内容仅供研究参考,付费前请自行鉴别。
3、如文档内容存在违规,或者侵犯商业秘密、侵犯著作权等,请点击“违规举报”。

碎片内容

电梯井钢结构安装方案

确认删除?
VIP
微信客服
  • 扫码咨询
会员Q群
  • 会员专属群点击这里加入QQ群
客服邮箱
回到顶部