电脑桌面
添加小米粒文库到电脑桌面
安装后可以在桌面快捷访问

自建房化粪池图集

自建房化粪池图集_第1页
1/20
自建房化粪池图集_第2页
2/20
自建房化粪池图集_第3页
3/20
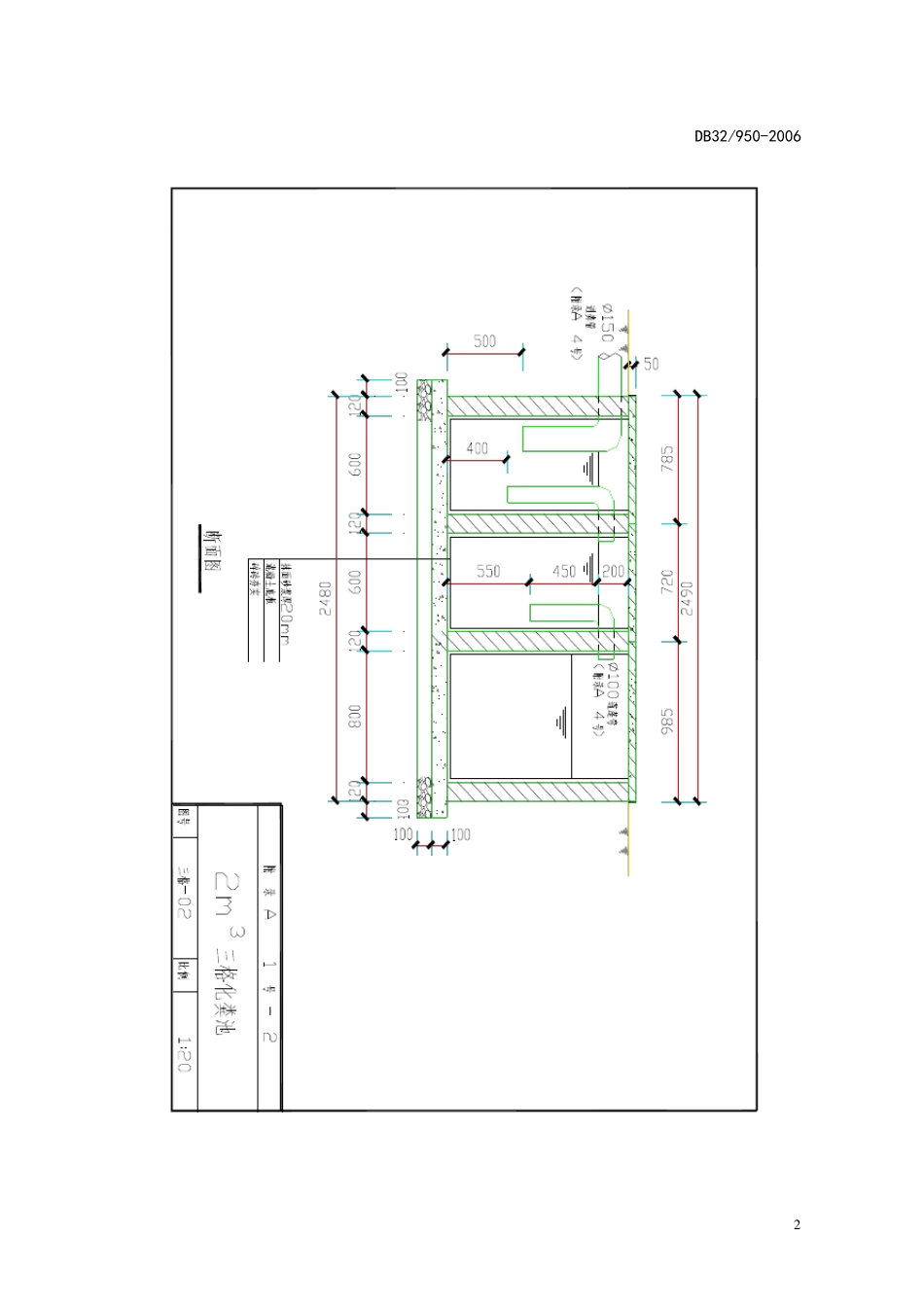
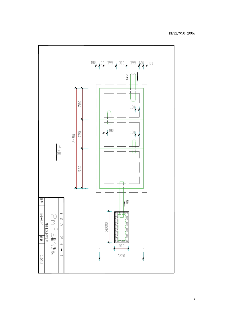
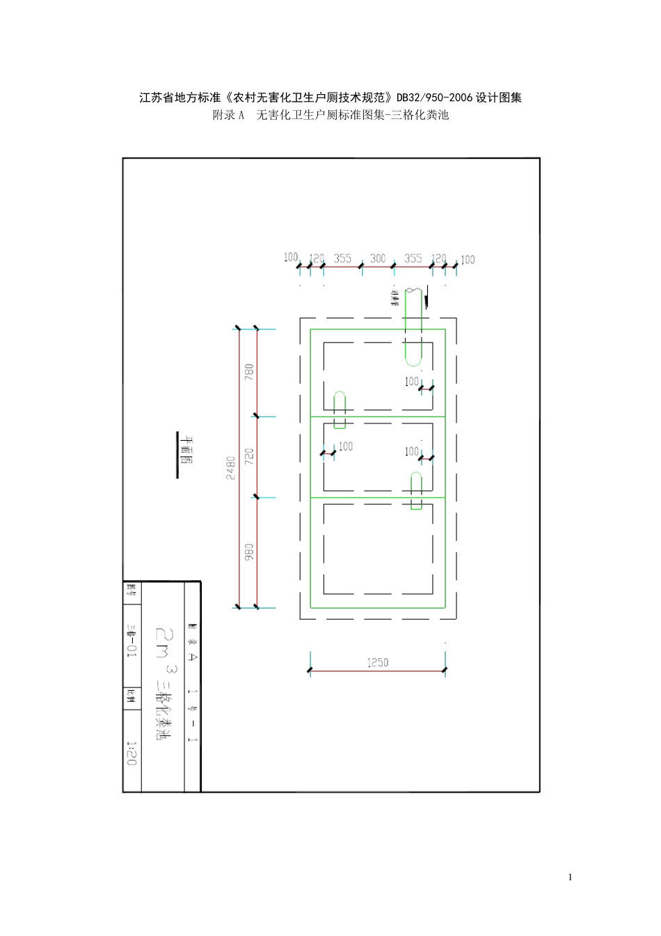
1 江苏省地方标准《农村无害化卫生户厕技术规范》DB32/950-2006 设计图集 附录A 无害化卫生户厕标准图集-三格化粪池 2 DB32/950-2006 3 DB32/950-2006 4 DB32/950-2006 5 DB32/950-2006 6 DB32/950-2006 7 DB32/950-2006 8 DB32/950-2006 9 DB32/950-2006 1 0 DB32/950-2006 1 1 DB32/950-2006 附录B 无害化卫生户厕标准图集-双翁漏斗式厕所 1 2 DB32/950-2006 1 3 DB32/950-2006 附录C 无害化卫生户厕标准图集-粪尿分集式厕所 1 4 DB32/950-2006 附录D 无害化卫生户厕标准图集-预制化粪池 1 5 DB32/950-2006 附录E 无害化卫生户厕标准图集-独立式厕所 1 1 6 DB32/950-2006 1 7 DB32/950-2006 1 8 DB32/950-2006 附录F 无害化卫生户厕标准图集-厕所平面布局 1 9 DB32/950-2006 2 0

1、当您付费下载文档后,您只拥有了使用权限,并不意味着购买了版权,文档只能用于自身使用,不得用于其他商业用途(如 [转卖]进行直接盈利或[编辑后售卖]进行间接盈利)。
2、本站所有内容均由合作方或网友上传,本站不对文档的完整性、权威性及其观点立场正确性做任何保证或承诺!文档内容仅供研究参考,付费前请自行鉴别。
3、如文档内容存在违规,或者侵犯商业秘密、侵犯著作权等,请点击“违规举报”。

碎片内容

自建房化粪池图集

确认删除?
VIP
微信客服
  • 扫码咨询
会员Q群
  • 会员专属群点击这里加入QQ群
客服邮箱
回到顶部