电脑桌面
添加小米粒文库到电脑桌面
安装后可以在桌面快捷访问

外墙双排架脚手架搭设技术交底

外墙双排架脚手架搭设技术交底_第1页
1/10
外墙双排架脚手架搭设技术交底_第2页
2/10
外墙双排架脚手架搭设技术交底_第3页
3/10
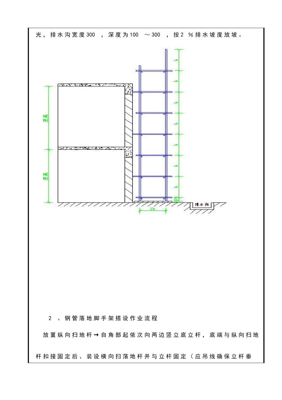
技 术 交 底 记 录表 式 C2-1编 号03-C2-016工 程 名 称大 连 红 星 国 际 项 目 1# 楼工 程交 底 日 期施 工 单 位江 苏 苏 南 建 筑 安 装 工 程有 限 公 司分 项 工 程 名称交 底 摘 要北侧双排落地脚手架搭设交 底 内 容 : ( 一 ) 、 落 地 式 脚 手 架 搭 设 工 艺 1、 主 杆 基 础 和 底 座 安 装1# 楼 北 侧 二 层 以 下 双 排 落 地 式 脚 手 架 基 础 采 纳 在 回 填 土 上 浇 筑 混 凝 土 进行 硬 化 处 理 , 混 凝 土 硬 化 厚 度 10cm , 砼 强 度 等 级 不 小 于 C15。 地 基 承 载能 力 能 够 满 足 外 脚 手 架 的 搭 设 要 求 。 同 时 落 地 式 脚 手 架 立 杆 底 需 垫 置150×150×50mm 的 垫 板 。 脚 手 架 基 础 必 须 设 有 良 好 的 排 水 系 统 , 防 止 雨 水浸 泡 基 础 , 引 起 脚 手 架 倾 覆 。排 水 沟 采 纳 MU10 灰 砂 砖 、 M5 水 泥 砂 浆 砌 筑 , 沟 内 用 1:3水 泥 砂 浆 抹光 , 排 水 沟 宽 度 300, 深 度 为 100~ 300, 按 2 % 排 水 坡 度 放 坡 。 2、 钢 管 落 地 脚 手 架 搭 设 作 业 流 程放 置 纵 向 扫 地 杆 → 自 角 部 起 依 次 向 两 边 竖 立 底 立 杆 , 底 端 与 纵 向 扫 地杆 扣 接 固 定 后 、 装 设 横 向 扫 荡 地 杆 并 与 立 杆 固 定 ( 应 吊 线 确 保 立 杆 垂直 ) , 每 边 竖 起 3 ~ 4 根 立 杆 后 , 即 装 设 第 一 步 纵 向 平 杆 ( 与 立 杆 扣 接固 定 ) 和 小 横 杆 ( 与 大 横 杆 扣 接 固 定 ) 、 校 正 立 杆 垂 直 和 横 杆 水 平 使 符合 要 求 , 按 40 ~ 力 矩 拧 紧 扣 件 螺 栓 , 形 成 构 架 的 起 始 段 → 按 上 述 要 求 依次 向 前 延 伸 搭 设 , 直 至 第 一 步 架 交 圈 完 成 。 交 圈 后 , 再 全 面 检 查 一 遍 构架 的 质 量 , 符 合 要 求 后 → 设 置 连 墙 杆 → 按 第 一 步 架 的 作 业 程 序 和 要 求 搭设 第 二 步...

1、当您付费下载文档后,您只拥有了使用权限,并不意味着购买了版权,文档只能用于自身使用,不得用于其他商业用途(如 [转卖]进行直接盈利或[编辑后售卖]进行间接盈利)。
2、本站所有内容均由合作方或网友上传,本站不对文档的完整性、权威性及其观点立场正确性做任何保证或承诺!文档内容仅供研究参考,付费前请自行鉴别。
3、如文档内容存在违规,或者侵犯商业秘密、侵犯著作权等,请点击“违规举报”。

碎片内容

外墙双排架脚手架搭设技术交底

您可能关注的文档

确认删除?
VIP
微信客服
  • 扫码咨询
会员Q群
  • 会员专属群点击这里加入QQ群
客服邮箱
回到顶部