电脑桌面
添加小米粒文库到电脑桌面
安装后可以在桌面快捷访问

自建单体别墅设计图纸

自建单体别墅设计图纸_第1页
1/30
自建单体别墅设计图纸_第2页
2/30
自建单体别墅设计图纸_第3页
3/30
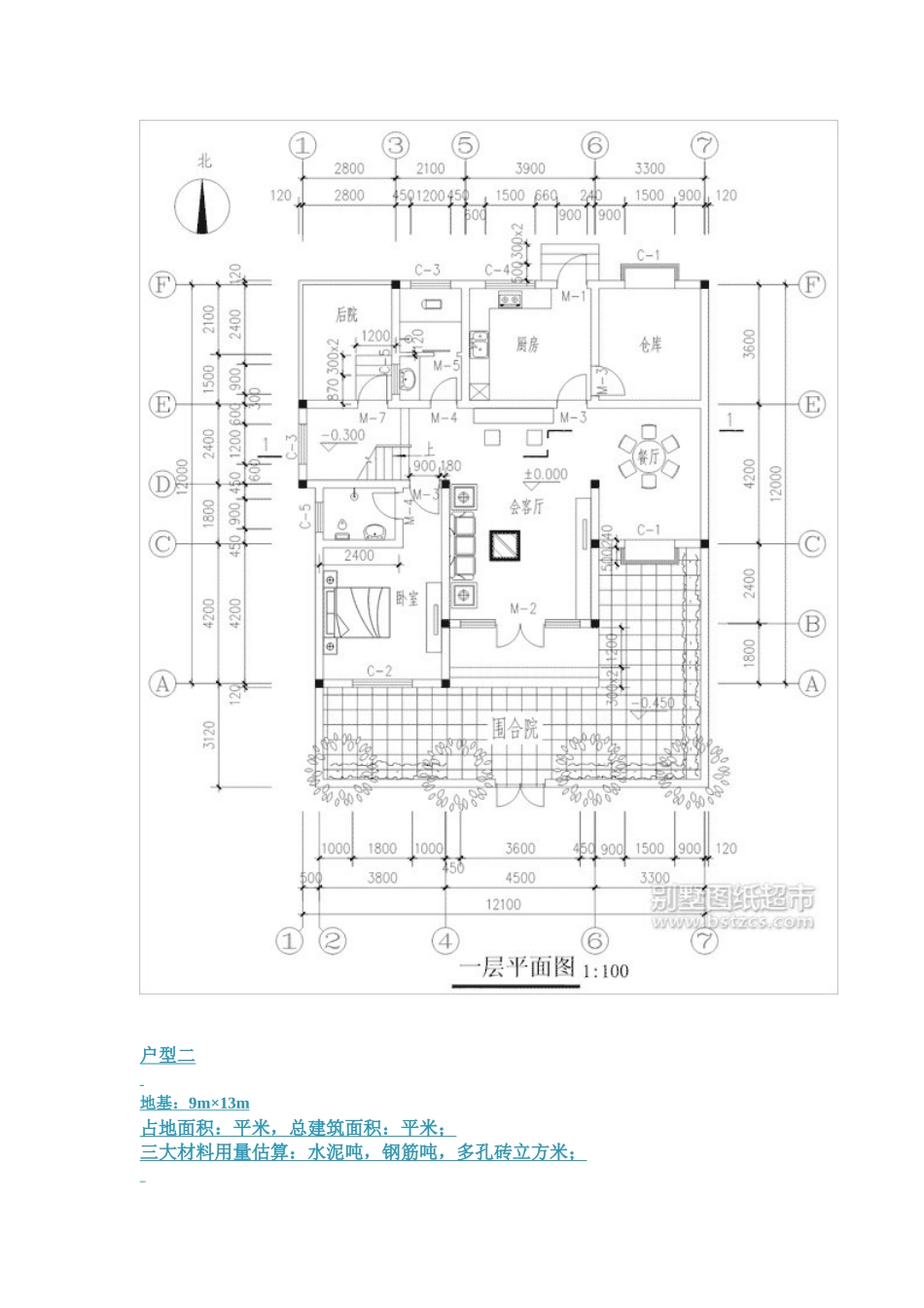
农村自建房设计图纸汇编-----解决您设计难题一、 新农村住宅户型 户型一:地基: 12m×12m 占地面积: 116 平米,总建筑面积: 213.53 平米; 户型二 地基: 9m × 13m 占地面积:平米,总建筑面积:平米;三大材料用量估算:水泥吨,钢筋吨,多孔砖立方米; 户型三 地基:9m×12m占地面积:平米,总建筑面积:平米;三大材料用量估算:水泥吨,钢筋吨,多孔砖立方米; 户型四: 地基:12m×10m占地面积:平米,总建筑面积:平米; 二、双拼户型家里有两兄弟需要建房的可以考虑双拼的,一来兄弟间能有个照应,二来可以节约建筑本钱。 户型一地基:24m×10m占地面积:178.46 平米,总建筑面积:284.2 平米; 户型二 地基:19m×12m占地面积:123 平米,总建筑面积:平米; 三、独栋别墅户型独栋别墅即独门独院,上有独立空间,下有私家花园领地,是私密性很强的独立式住宅,表现为上下左右前后都属于独立空间,一般房屋周围都有面积不等的绿地、院落。这一类型是别墅历史最悠久的一种,也是别墅建筑的终极形式。在城市里花 50 万买一百平米,在农村却可以建这样的别墅:户型一:地基:14m×15m占地面积:平米,总建筑面积:平米; 户型二: 地基:13m×16m占地面积:130 平方米,总建筑面积:310 平方米; 户型三: 地基:14m×13m占地面积:平米,总建筑面积:平米; 户型四: 地基: 8m×12m占地面积:平米,总建筑面积:平米; 四、精选小本钱户型假如感觉以上房屋建筑本钱太高,手头又没有足够的资金,可以考虑以下户型:户型一:地基:12m×9m占地面积:80.3 平米,总建筑面积:80.3 平米;三大材料用量估算:水泥 22.85 吨,钢筋 2.77 吨,多孔砖; 户型二: 地基:11m×9m占地面积:平米,总建筑面积:平米;三大材料用量估算:水泥吨,钢筋吨,多孔砖立方米; 户型三: 地基:11m×10m占地面积:平米,总建筑面积:平米;三大材料用量估算:水泥吨,钢筋吨,多孔砖立方米; 户型四: 地基:8m×12m占地面积:平米,总建筑面积:平米;三大材料用量估算:水泥吨,钢筋吨,多孔砖立方米; 户型五: 地基:8m×10m 占地面积:80 平米,总建筑面积:160 平米; 户型六:地基:8m×10m占地面积:平米,总建筑面积:平米。

1、当您付费下载文档后,您只拥有了使用权限,并不意味着购买了版权,文档只能用于自身使用,不得用于其他商业用途(如 [转卖]进行直接盈利或[编辑后售卖]进行间接盈利)。
2、本站所有内容均由合作方或网友上传,本站不对文档的完整性、权威性及其观点立场正确性做任何保证或承诺!文档内容仅供研究参考,付费前请自行鉴别。
3、如文档内容存在违规,或者侵犯商业秘密、侵犯著作权等,请点击“违规举报”。

碎片内容

自建单体别墅设计图纸

您可能关注的文档

人从众+ 关注
实名认证
内容提供者

欢迎光临小店,本店以公文和教育为主,希望符合您的需求。

确认删除?
VIP
微信客服
  • 扫码咨询
会员Q群
  • 会员专属群点击这里加入QQ群
客服邮箱
回到顶部