电脑桌面
添加小米粒文库到电脑桌面
安装后可以在桌面快捷访问

2025年全套安全图集Word格式

2025年全套安全图集Word格式_第1页
1/10
2025年全套安全图集Word格式_第2页
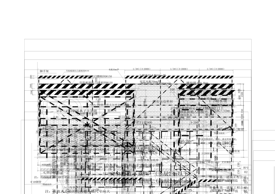
2/10
2025年全套安全图集Word格式_第3页
3/10
现场安全文明施工原则图集现场安全文明施工原则图集青岛建设集团置业有限企业青岛建设集团置业有限企业目 录目 录11、、木工棚、钢筋棚做法示意图 木工棚、钢筋棚做法示意图 1313、电梯井防护图、电梯井防护图22、、合灰机、搅拌机防护棚做法示意图 合灰机、搅拌机防护棚做法示意图 1414、脚手架搭设安全色踢脚板做法、脚手架搭设安全色踢脚板做法33、、安全通道示意图(多层安全通道示意图(多层 24m24m 如下) 如下) 1515、脚手架内平网设置、脚手架内平网设置44、、安全通道示意图(高层安全通道示意图(高层 24m24m 以上) 以上) 1616、脚手架外排阳角处做法示意图、脚手架外排阳角处做法示意图55、、配电箱防雨棚做法示意图Ⅰ 配电箱防雨棚做法示意图Ⅰ 1717、型钢悬挑双斜支撑系统示意图、型钢悬挑双斜支撑系统示意图66、、配电箱防雨棚做法示意图Ⅱ 配电箱防雨棚做法示意图Ⅱ 1818、落地式接料平台、落地式接料平台77、、总分箱护栏及地面硬化图 总分箱护栏及地面硬化图 1919、悬挑式钢平台、悬挑式钢平台88、、总分箱护栏及硬化地面尺寸图 总分箱护栏及硬化地面尺寸图 2020、接料平台防护门正立面图、接料平台防护门正立面图99、、楼梯、楼层和阳台临边防护示意图 楼梯、楼层和阳台临边防护示意图 2121、接料平台防护门侧面图、接料平台防护门侧面图1010、、屋面和楼层临边防护图 屋面和楼层临边防护图 2222、接料平台平面图、接料平台平面图1111、、基坑周围防护栏杆示意图 基坑周围防护栏杆示意图 2323、限重牌示意图、限重牌示意图1212、、洞口防护图 洞口防护图 2424、轮子锯钢丝网防护板示意图、轮子锯钢丝网防护板示意图维修通道操作场地8001400设备宽度垫板加底座立杆注:上层防护板必须有放雨措施,并且根据现场排水情况做顺水坡.10045°-60°45°-60°设备尺寸+700mm正立面 (单位:mm)¢48钢管斜撑木板50mm厚侧立面 (单位:mm)合灰机、搅拌机防护棚做法示意图竹胶板刷红白漆相间@1501/3*l(≯2000)1/3*l(≯2000)1/3*l(≯2000)安全防护标准图工 程 部 监 制青岛市第一建筑工程公司02图号开关箱1300~150020037006001500750750200安全通道示意图一(多层24m以下)脚手架根据坠落半径定(一般≥3000)安全通道1600100上铺单层木板50mm厚竹胶板刷红白漆相间@150≥2000¢48钢管斜撑密目网侧立面 (单位:mm)正立面 (单位:mm)155050厚垫板加底座立杆钢管刷红白漆相间@300150045°-60°安全防护标准...

1、当您付费下载文档后,您只拥有了使用权限,并不意味着购买了版权,文档只能用于自身使用,不得用于其他商业用途(如 [转卖]进行直接盈利或[编辑后售卖]进行间接盈利)。
2、本站所有内容均由合作方或网友上传,本站不对文档的完整性、权威性及其观点立场正确性做任何保证或承诺!文档内容仅供研究参考,付费前请自行鉴别。
3、如文档内容存在违规,或者侵犯商业秘密、侵犯著作权等,请点击“违规举报”。

碎片内容

2025年全套安全图集Word格式

您可能关注的文档

确认删除?
VIP
微信客服
  • 扫码咨询
会员Q群
  • 会员专属群点击这里加入QQ群
客服邮箱
回到顶部