电脑桌面
添加小米粒文库到电脑桌面
安装后可以在桌面快捷访问

型钢悬挑卸料平台计算书(品茗)

型钢悬挑卸料平台计算书(品茗)_第1页
1/13
型钢悬挑卸料平台计算书(品茗)_第2页
2/13
型钢悬挑卸料平台计算书(品茗)_第3页
3/13
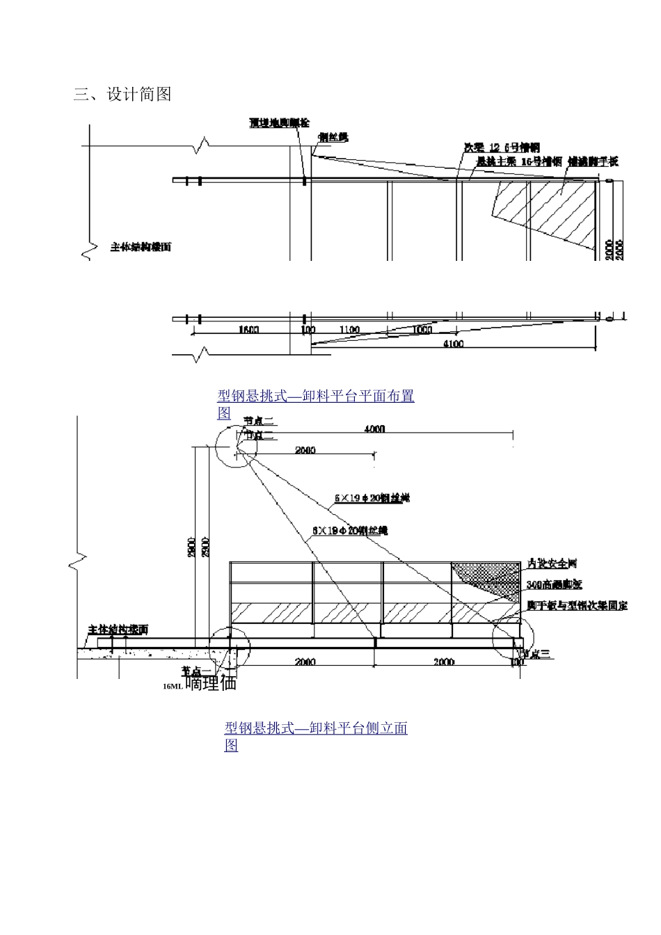
型钢悬挑卸料平台计算书计算依据:1、《建筑施工高处作业安全技术规范》JGJ80-20162、《钢结构设计规范》GB50017-2003、构造参数卸料平台名称卸料平平台卸料平台类型类型一:主梁垂直建筑外墙卸料平台支撑方式上拉钢丝绳平台长度 A(m)4.1平台宽度 B(m)2卸料平台与主体结构连接方式地脚螺栓考虑主梁内锚长度是主梁建筑物内锚长度 Lm(mm)1600主梁外锚固点到建筑物边缘的距离c(mm)100主梁间距 L1(m)2次梁间距 s(m)1次梁外伸长度 m(m)0内侧次梁离墙水平距离 a(m)1.1外侧钢丝绳离墙水平距离 a1(m)4外侧钢丝绳上下固定点垂直距离 hi(m)2.9内侧钢丝绳离墙水平距离 a2(m)2内侧钢丝绳上部上下固定点垂直距离h2(m)2.9外侧钢丝绳上下固定点水平距离 S1(m)4内侧钢丝绳上下固定点水平距离 S2(m)2计算内侧钢丝绳否钢丝绳夹个数47 + 卜 、匸/7二、荷载参数面板自重 Gk1(kN/m2)0.39次梁自重 Gk2(kN/m)0.124主梁自重 Gk3(kN/m)0.197栏杆、挡脚板类型栏杆、冲压钢脚手板挡板栏杆、挡脚板自重 Gk4(kN/m)0.15安全网设置设置密目安全网安全网自重 Gk5(kN/m)0.01施工活荷载 Qk1(kN/m2)2堆放荷载 Pk(kN)10堆放荷载作用面积 S(m2)2施工活荷载动力系数1.3三、设计简图型钢悬挑式 — 卸料平台平面布置 图16ML嘀理価型钢悬挑式 — 卸料平台侧立面 图节点惮图 一 地脚栓详團 节点一四、面板验算面板类型冲压钢脚手板面板厚度 t(mm)8截面抵抗矩 W(cm3)10.67抗弯强度设计值[f](N/mm2)205面板受力简图如下:IL.LWkN^iUI]]]]]]]]]]]]]]]]]]]].■—1血计算简图取单位宽度 1m 进行验算q=1.2xGkiXl+1.4x(1.3xQki+Pk/S)xl=1.2x0.39xl+1.4x(1.3x2+10/2)xl=11.108kN/mq=1.2xGk1x1=1.2x0.39x1=0.468kN/mT 静 k1q 活=1.4x(1.3xQk1+Pk/S)x1=1.4x(1.3x2+10/2)x1=10.64kN/m抗弯验算:M=0.1xqxs2+0.117xqxs2=0.1x0.468xl2+0.117xl0.64xl2=1.292kN・mmaxT 静 T 活o=Mmax/W=1.292x106/(10.67x103)=121.057N/mm2v[f]=205N/mm2面板强度满足要求!五、次梁验算U.WMtfnll.lQ&krVm次梁类型槽钢次梁型钢型号12.6 号槽钢截面惯性矩 Ix(cm4)391.47截面抵抗矩 Wx(cm3)62.14抗弯强度设计值[f](N/mm2)205弹性模量玖 N/mm2)206000次梁内力按以两侧主梁为支承点的简支梁计算:承载能力极限状态:q]=(1.2xGk]+1.4x1.3xQk1)xs+1.2xGk2=(1.2x0.39+1.4x1.3x2)x1+1.2x0.1237=4.256kN/mP]=1.4xPk=1.4x10=14kN正常使用极限状态:q2=(Gk1+Qk1)xs+Gk2=(0.39+2)x1+0.1237=2.51...

1、当您付费下载文档后,您只拥有了使用权限,并不意味着购买了版权,文档只能用于自身使用,不得用于其他商业用途(如 [转卖]进行直接盈利或[编辑后售卖]进行间接盈利)。
2、本站所有内容均由合作方或网友上传,本站不对文档的完整性、权威性及其观点立场正确性做任何保证或承诺!文档内容仅供研究参考,付费前请自行鉴别。
3、如文档内容存在违规,或者侵犯商业秘密、侵犯著作权等,请点击“违规举报”。

碎片内容

型钢悬挑卸料平台计算书(品茗)

wxg+ 关注
实名认证
内容提供者

该用户很懒,什么也没介绍

确认删除?
VIP
微信客服
  • 扫码咨询
会员Q群
  • 会员专属群点击这里加入QQ群
客服邮箱
回到顶部