电脑桌面
添加小米粒文库到电脑桌面
安装后可以在桌面快捷访问

人货电梯基础方案

人货电梯基础方案_第1页
1/6
人货电梯基础方案_第2页
2/6
人货电梯基础方案_第3页
3/6
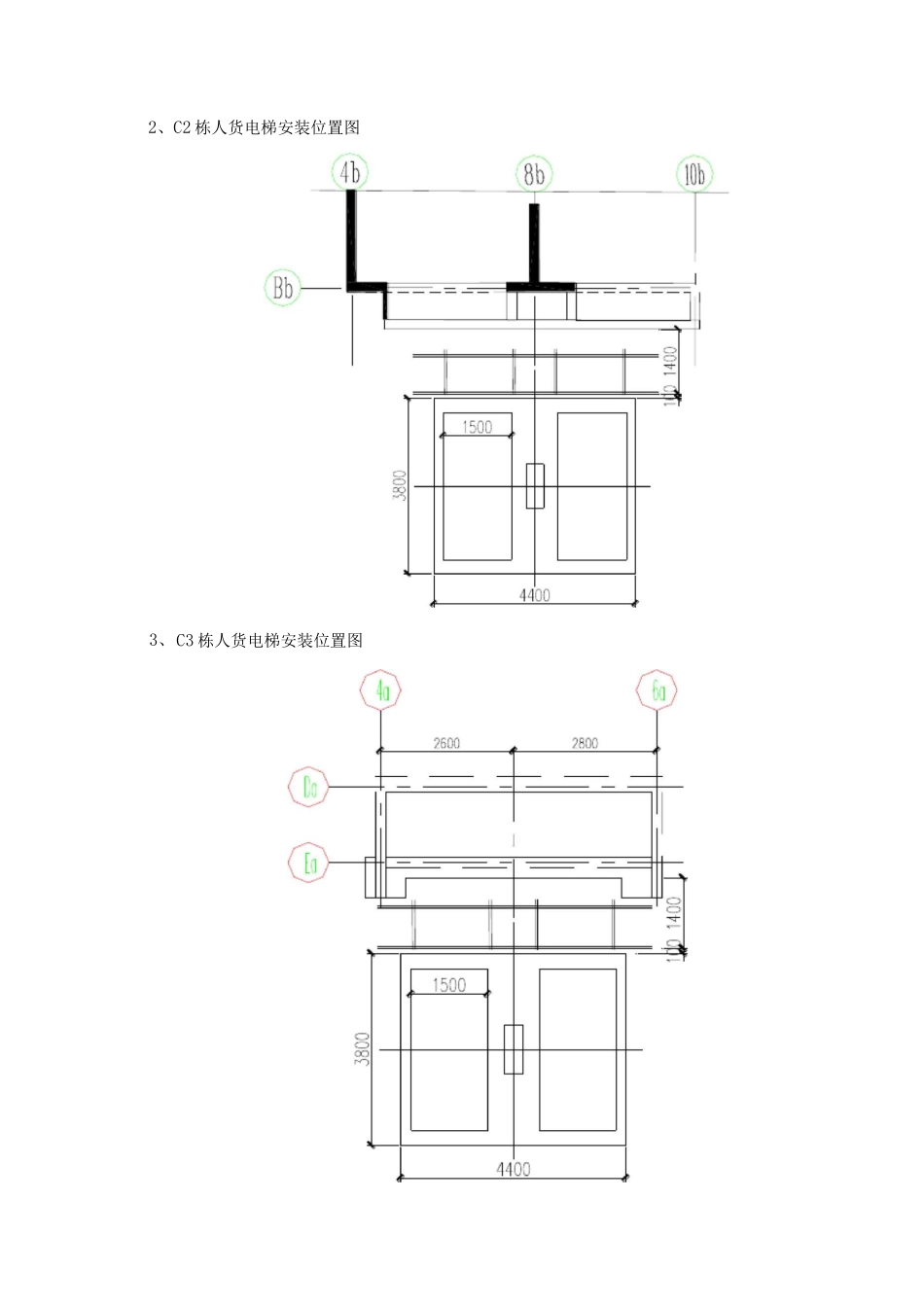
人货电梯基础设计方案工程概况工程名称工程地点建设单位设计单位监理单位施工单位层数(地上/地下)建筑面积92664m2建筑高度98.2m结构形式钢筋混凝土剪力墙各层层高地下一层 5.45m首层 5.95m二至三十二层 2.9m三十三层 2.95m为满足工程施工需要,本工程计划采纳计划采纳四台 SC2/2 型人货电梯,,电梯的安装高度为110m。结合本工程的建筑特点,根据《施工总平面布置图》,所有人货电梯的基础全部放置在地下室顶板上。二、编制依据4、人货电梯厂家提供的《使用说明书》5、《混凝土结构设计法律规范》(GB510-22)三、人货电梯基础设计所产生的压力不小于 0.15Mpa。本工程中人货电梯将放置于地下室顶板上,地下室顶板混凝土强度等级为 C30,当其强度达到 1%时,其承载力标准值为 30 MPa,显然地面承载力是满足要求的。由于地下室顶板能够提供足够的承载力,因此,电梯基础只要能够满足安装要求(固定基础底座)就可以了。电梯基础采纳 C30 砼,截面尺寸为 38 >44 >3mm,配筋为① 12@2 双层双向配置具体尺寸如下图所示:各栋楼的人货电梯基础定位详见下图:1、C1 栋人货电梯安装位置图2、C2 栋人货电梯安装位置图3、C3 栋人货电梯安装位置图4、C4 栋人货电梯安装位置图四、人货电梯基础施工1、承台放线、支模,根据法律规范要求绑扎承台钢筋,根据人货电梯使用说明书在承台内预埋基础底座和防雷装置,防雷接地电阻不应大于 4。°2、承台钢筋及防雷报甲方、监理验收后,开始对承台浇筑 C30 混凝土。混凝土浇筑时,必须注意保护基础底座的定位,以免发生偏移。3、混凝土浇筑必须一次完成,并要及时养护,养护 14 天,7 天后可以开始安装电梯标准节。基础表面要收平,平整度允许偏差 1/10。4、虽然地下室顶板的承载力远远大于人货电梯所产生的荷载,但为了防止电梯产生的冲击荷载造成混凝土的微裂缝,计划对人货电梯处的地下室顶板进行加固处理。钢管满堂架支撑加固范围图具体加固措施为:在人货电梯基础下方的地下室顶板增加支撑体系。支撑体系采纳满堂钢管架,立杆纵横间距 5mm,横杆步距 8mm 离地底板面 2mm 设扫地杆一道,立杆顶部采纳可调支座回顶,立杆底部垫木枋,如下图所示。地下室顶板11I111U11L4UI411*i1.地下室底板5、塔身中心在地下室用灰砂砖砌筑砖柱 380*960mm 进行加固。6、由于地库顶板需进行回填土,所以人货电梯四周需砌筑 8mm 高 240mm 厚砖砌体圈围,待后期人货电梯拆除后再对人货电梯基础区域进行回...

1、当您付费下载文档后,您只拥有了使用权限,并不意味着购买了版权,文档只能用于自身使用,不得用于其他商业用途(如 [转卖]进行直接盈利或[编辑后售卖]进行间接盈利)。
2、本站所有内容均由合作方或网友上传,本站不对文档的完整性、权威性及其观点立场正确性做任何保证或承诺!文档内容仅供研究参考,付费前请自行鉴别。
3、如文档内容存在违规,或者侵犯商业秘密、侵犯著作权等,请点击“违规举报”。

碎片内容

人货电梯基础方案

津创媒+ 关注
实名认证
内容提供者

欢迎交流文创,小店资料希望满足您的需要。

确认删除?
VIP
微信客服
  • 扫码咨询
会员Q群
  • 会员专属群点击这里加入QQ群
客服邮箱
回到顶部