电脑桌面
添加小米粒文库到电脑桌面
安装后可以在桌面快捷访问

人防地下室模板工程技术交底

人防地下室模板工程技术交底_第1页
1/10
人防地下室模板工程技术交底_第2页
2/10
人防地下室模板工程技术交底_第3页
3/10
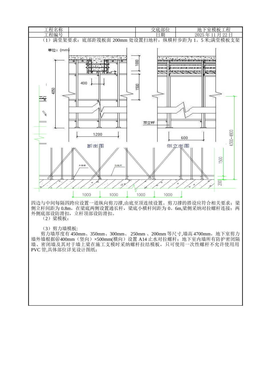
工程名称交底部位地下室模板工程工程编号日期2025 年 11 月 22 日交底内容:模板工程施工技术交底一、施工准备1)材料准备模板:15 厚覆模多层板;木方:40×80mm;钢管:A48mm×3.5mm,材质为 Q235 钢;对拉螺栓:Φ14 高强止水丝杆。垫板:150mm×150mm海绵条:若干2)主要机具锤子、扳手、圆盘锯、平刨、手电锯、电焊机、墨斗、白线、水准仪、水平尺、钢卷尺等.3)技术准备施工班组应仔细熟悉图纸,根据图纸对梁、板、柱等尺寸及编号设计出配板图,应标识出不同型号、尺寸单块模板平面布置,纵横龙骨规格、数量及排列尺寸;柱箍选用的形式及间距;支撑系统的竖向支撑、侧向支撑、横向拉接件的型号、间距等。对图纸中存在的问题做好记录并及时提出并解决。4)作业条件1、按工程结构图进行模板设计,确保强度、刚度及稳定性。2、墙、柱钢筋绑扎完毕,水电箱(线)盒、预埋件、门窗洞口预埋完毕,检查保护层厚度应满足要求,办完隐蔽工程验收手续。3、按图纸要求预留孔洞、预埋套管,所有孔洞均要先做好木盒子,木盒子外边尺寸即为孔洞尺寸,木盒子必需用铁钉钉牢;墙体预留洞口采纳定位撑,避开洞口处钢筋移位.4、为防止模板下口跑浆,在每次浇筑板面混凝土时,在墙板根部位置,一定要严格控制板面标高,确保一次收光找平.5、安装模板前应把模板板面清理洁净,必须将墙、柱内部垃圾清理洁净后方可合模。6、墙体模板表面必须平整、光滑,不得有硬台。7、轴线、控制线放设完毕,并经监理复核.8、材料、机具及人员已准备就绪.二、模板工程施工方法 1)模板总体方案为保证工程质量和施工进度,本工程在做好技术经济分析的基础上,加大模板的投入,以换取最佳经济效益和社会效益。本工程结构形式相对复杂,为保证工程质量和外观效果,梁板、墙、墙板等节点处需精心设计,严格要求,在消灭质量通病的基础上追求观感.2)模板体系的选择本工程顶板、梁底板采纳竹胶合板,后背 40mmX80mm 木方,间距 250mm;所有的模板拼缝均用采纳硬接缝.外墙外模板采纳散支散拼支模方案,外模板配置高度高出板顶标高 3~5cm,内模配置到比板底标高。3)模板施工工艺流程(修整模板→刷脱模剂)→放墙柱、门窗洞口边线、控制线→搭设满堂脚手架→支梁模板→铺设顶板→预检梁、顶板模板→支门窗洞口模板→加固门窗洞口模板→支一侧墙体模板→安装穿墙螺栓→支另一侧墙体模板→加固墙体模板→预检墙体模板→加固梁、顶板模板4)支模的总体要求如下:① 模板拼缝要不漏浆,...

1、当您付费下载文档后,您只拥有了使用权限,并不意味着购买了版权,文档只能用于自身使用,不得用于其他商业用途(如 [转卖]进行直接盈利或[编辑后售卖]进行间接盈利)。
2、本站所有内容均由合作方或网友上传,本站不对文档的完整性、权威性及其观点立场正确性做任何保证或承诺!文档内容仅供研究参考,付费前请自行鉴别。
3、如文档内容存在违规,或者侵犯商业秘密、侵犯著作权等,请点击“违规举报”。

碎片内容

人防地下室模板工程技术交底

您可能关注的文档

确认删除?
VIP
微信客服
  • 扫码咨询
会员Q群
  • 会员专属群点击这里加入QQ群
客服邮箱
回到顶部