电脑桌面
添加小米粒文库到电脑桌面
安装后可以在桌面快捷访问

智能电能表和能耗监测系统产品选型手册VIP免费

智能电能表和能耗监测系统产品选型手册_第1页
1/51
智能电能表和能耗监测系统产品选型手册_第2页
2/51
智能电能表和能耗监测系统产品选型手册_第3页
3/51
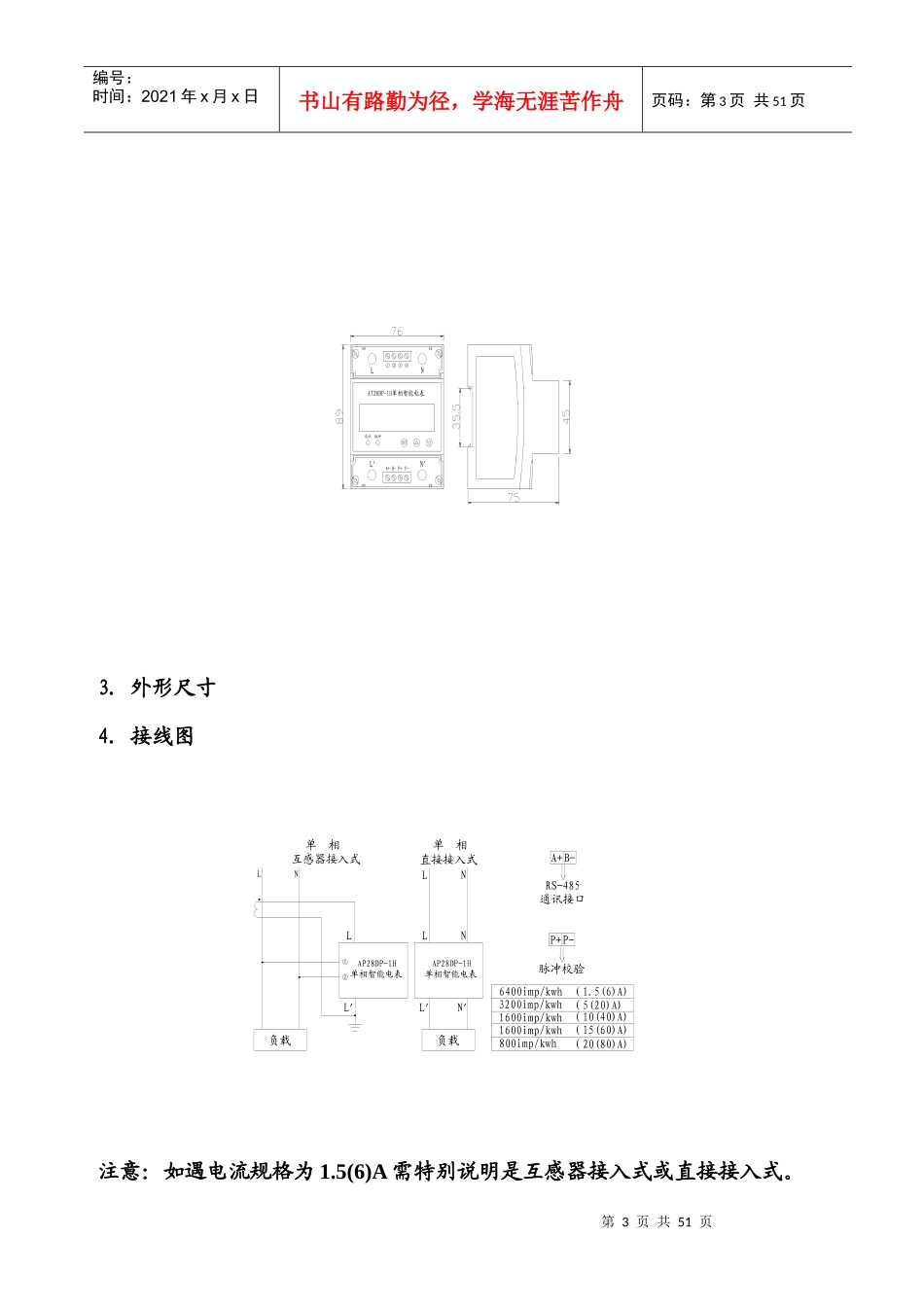
第1页共51页编号:时间:2021年x月x日书山有路勤为径,学海无涯苦作舟页码:第1页共51页一、AT28DP-1H单相导轨式智能电能表1.产品特点采用微电子技术和SMT表面焊接工艺,采用专用集成计量芯片,能精确计量正负两方向的有功电能,且以同一方向累计,具有防窃电功能;具有RS485通讯接口,可选择Modbus通讯协议和DLT645通讯协议;该智能电能表也可作为单相多功能电能表使用,具有体积小巧、精度高、可靠性好、安装方便等优点。AT28DP-1H-C内含大容量磁保持继电器,具有控制断送电功能,远程预付费、恶意负载识别功能(电脑和空调正常使用,热得快、电炉等自动禁止使用)等。2.主要技术参数2.1准确度:0.5级;2.2标定电流:单相1.5(6)A,2.5(10)A,5(20)A,10(40)A,15(60)A,20(80)A;2.3标称电压:AC220V;第2页共51页第1页共51页编号:时间:2021年x月x日书山有路勤为径,学海无涯苦作舟页码:第2页共51页2.4功耗:≤1W;显示方式:8位液晶显示;2.5工作电压范围:AC160-265V;2.6启动电流:互感器接入式0.2%Ib和直接接入式0.4%Ib;2.7工频对地耐压值:2kV/1min;2.8工作温度和湿度范围:-25~55℃,<90%(无凝露);2.9电压为1.9Un,通电4小时电表不损坏;2.10带有现场校验电表准确度的无源光电脉冲接口;2.11产品执行GB/T17215.321-2008和JJG596-1999电子式电能表检定规程;2.12选择单相多功能时,通过“▲”和“▼”按键还可查看电流、电压、有功功率、无功功率、视在功率、功率因数等电参数(可选功能);2.13一次电流80A及以下直接接入,80A以上通过电流互感器接入;2.14通过电表的一次线截面积≤35mm2。第3页共51页第2页共51页编号:时间:2021年x月x日书山有路勤为径,学海无涯苦作舟页码:第3页共51页3.外形尺寸4.接线图注意:如遇电流规格为1.5(6)A需特别说明是互感器接入式或直接接入式。3200imp/kwh(5(20)A)(20(80)A)(15(60)A)(10(40)A)(1.5(6)A)800imp/kwh6400imp/kwh1600imp/kwhA+B-RS-485通讯接口1600imp/kwh脉冲校验P-P+AP28DP-1H单相智能电表负载L'LAP28DP-1H单相智能电表单相21NLLNN'L'负载NL互感器接入式单相直接接入式AT28DP-1H单相智能电表通讯脉冲SETA+B-P+P-1234LNL'N'第4页共51页第3页共51页编号:时间:2021年x月x日书山有路勤为径,学海无涯苦作舟页码:第4页共51页二、AT28DP-3H三相导轨式智能电能表1.产品特点具有RS485通讯接口,可选择Modbus通讯协议和DLT645通讯协议;有功和无功电能均可计量2~21次谐波含量;该智能电能表也可作为三相多功能电能表使用,具有体积小巧、精度高、可靠性好、安装方便等优点。2.主要技术参数2.1准确度:0.5级;2.2标定电流:3×1.5(6)A,3×2.5(10)A,3×5(20)A,3×10(40)A,3×15(60)A,3×20(80)A;2.3标称电压:3×220V/380V;2.4功耗:≤1W;显示方式:8位液晶显示;2.5工作电压范围:75%Un~120%Un;2.6启动电流:互感器接入式0.2%Ib和直接接入式0.4%Ib;第5页共51页第4页共51页编号:时间:2021年x月x日书山有路勤为径,学海无涯苦作舟页码:第5页共51页2.7工频对地耐压值:2kV/1min;2.8工作温度和湿度范围:-25~55℃,<90%(无凝露);2.9电压为1.9Un,通电4小时电表不损坏;2.10带有现场校验电表准确度的无源光电脉冲接口;2.11产品执行GB/T17215.321-2008和JJG596-1999电子式电能表检定规程;2.12选择三相多功能时,通过“▲”和“▼”按键还可查看三相电流、三相电压、有功功率、无功功率、视在功率、功率因数等电参数(可选功能);2.13一次电流80A及以下直接接入,80A以上通过电流互感器接入;2.14通过电表的一次线截面积≤35mm2。3.外形尺寸4.接线图432156L1L2L3NL1'L2'L3'N'AT28DP-3H三相智能电能表SET通讯脉冲有功无功第6页共51页第5页共51页编号:时间:2021年x月x日书山有路勤为径,学海无涯苦作舟页码:第6页共51页注意:如遇电流规格为1.5(6)A需特别说明是互感器接入式或直接接入式。AC220V工作电源NL5643CBAL1'L2'L3'L1L2L3负载互感器接入式三相三线AP28DP-3H三相智能电表AP28DP-3H三相智能电表三相四线互感器接入式负载L3L2L1L3'L2'L1'ABCN3465第7页共51页第6页共51页编号:时间:2021年x月x日书山有路勤为径,学海无涯苦作舟页码:第7页共5...

1、当您付费下载文档后,您只拥有了使用权限,并不意味着购买了版权,文档只能用于自身使用,不得用于其他商业用途(如 [转卖]进行直接盈利或[编辑后售卖]进行间接盈利)。
2、本站所有内容均由合作方或网友上传,本站不对文档的完整性、权威性及其观点立场正确性做任何保证或承诺!文档内容仅供研究参考,付费前请自行鉴别。
3、如文档内容存在违规,或者侵犯商业秘密、侵犯著作权等,请点击“违规举报”。

碎片内容

智能电能表和能耗监测系统产品选型手册

您可能关注的文档

教育精品店+ 关注
实名认证
内容提供者

优良的服务

确认删除?
VIP
微信客服
  • 扫码咨询
会员Q群
  • 会员专属群点击这里加入QQ群
客服邮箱
回到顶部