电脑桌面
添加小米粒文库到电脑桌面
安装后可以在桌面快捷访问

专用家庭房屋设计VIP免费

专用家庭房屋设计_第1页
1/31
专用家庭房屋设计_第2页
2/31
专用家庭房屋设计_第3页
3/31
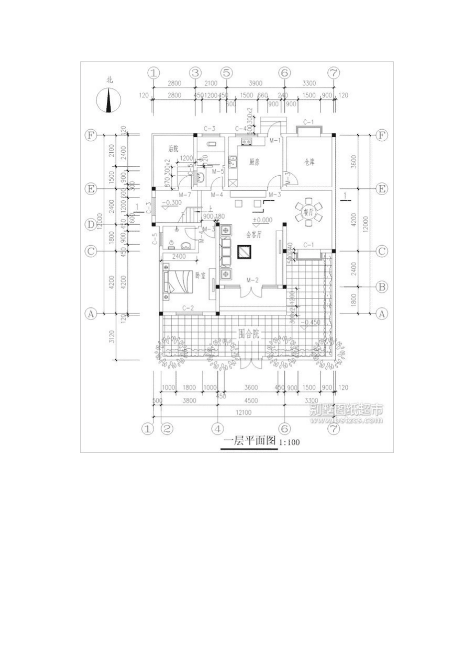
一、新农村住宅户型户型一:地基:12m×12m占地面积:116平米,总建筑面积:213.53平米;第3页共31页编号:时间:2021年x月x日书山有路勤为径,学海无涯苦作舟页码:第3页共31页户型二地基:9m×13m占地面积:76.60平米,总建筑面积:185.11平米;三大材料用量估算:水泥44.64吨,钢筋6.932吨,多孔砖85.643立方米;第4页共31页第3页共31页编号:时间:2021年x月x日书山有路勤为径,学海无涯苦作舟页码:第4页共31页户型三地基:9m×12m占地面积:75.1平米,总建筑面积:119.7平米;三大材料用量估算:水泥32.28吨,钢筋4.753吨,多孔砖74.179立第5页共31页第4页共31页编号:时间:2021年x月x日书山有路勤为径,学海无涯苦作舟页码:第5页共31页方米;第6页共31页第5页共31页编号:时间:2021年x月x日书山有路勤为径,学海无涯苦作舟页码:第6页共31页户型四:第7页共31页第6页共31页编号:时间:2021年x月x日书山有路勤为径,学海无涯苦作舟页码:第7页共31页地基:12m×10m占地面积:109.68平米,总建筑面积:287.82平米;第8页共31页第7页共31页编号:时间:2021年x月x日书山有路勤为径,学海无涯苦作舟页码:第8页共31页二、双拼户型家里有两兄弟需要建房的可以考虑双拼的,一来兄弟间能有个照应,二来可以节省建筑成本。第9页共31页第8页共31页编号:时间:2021年x月x日书山有路勤为径,学海无涯苦作舟页码:第9页共31页户型一地基:24m×10m占地面积:178.46平米,总建筑面积:284.2平米;第10页共31页第9页共31页编号:时间:2021年x月x日书山有路勤为径,学海无涯苦作舟页码:第10页共31页户型二地基:19m×12m占地面积:123平米,总建筑面积:213.2平米;第11页共31页第10页共31页编号:时间:2021年x月x日书山有路勤为径,学海无涯苦作舟页码:第11页共31页第12页共31页第11页共31页编号:时间:2021年x月x日书山有路勤为径,学海无涯苦作舟页码:第12页共31页三、独栋别墅户型独栋别墅即独门独院,上有独立空间,下有私家花园领地,是私密性很强的独立式住宅,表现为上下左右前后都属于独立空间,一般房屋周围都有面积不等的绿地、院落。这一类型是别墅历史最悠久的一种,也是别墅建筑的终极形式。在城市里花50万买一百平米,在农村却可以建这样的别墅:户型一:第13页共31页第12页共31页编号:时间:2021年x月x日书山有路勤为径,学海无涯苦作舟页码:第13页共31页地基:14m×15m占地面积:147.7平米,总建筑面积:366.4平米;第14页共31页第13页共31页编号:时间:2021年x月x日书山有路勤为径,学海无涯苦作舟页码:第14页共31页第15页共31页第14页共31页编号:时间:2021年x月x日书山有路勤为径,学海无涯苦作舟页码:第15页共31页户型二:地基:13m×16m占地面积:130平方米,总建筑面积:310平方米;第16页共31页第15页共31页编号:时间:2021年x月x日书山有路勤为径,学海无涯苦作舟页码:第16页共31页第17页共31页第16页共31页编号:时间:2021年x月x日书山有路勤为径,学海无涯苦作舟页码:第17页共31页户型三:地基:14m×13m占地面积:170.38平米,总建筑面积:412.72平米;第18页共31页第17页共31页编号:时间:2021年x月x日书山有路勤为径,学海无涯苦作舟页码:第18页共31页第19页共31页第18页共31页编号:时间:2021年x月x日书山有路勤为径,学海无涯苦作舟页码:第19页共31页户型四:地基:8m×12m占地面积:88.7平米,总建筑面积:220.9平米;第20页共31页第19页共31页编号:时间:2021年x月x日书山有路勤为径,学海无涯苦作舟页码:第20页共31页第21页共31页第20页共31页编号:时间:2021年x月x日书山有路勤为径,学海无涯苦作舟页码:第21页共31页四、精选小成本户型如果感觉以上房屋建筑成本太高,手头又没有足够的资金,可以考虑以下户型:户型一:地基:12m×9m占地面积:80.3平米,总建筑面积:80.3平米;三大材料用量估算:水泥22.85吨,钢筋2.77吨,多孔砖57.702立方米;第22页共31页第21页共31页编号:时间:2021年x月x日书山有路勤为径,学海无涯苦作舟页码:第22页共31页第23页共31页第22页共31页编号:时间:2021年x月x日书山有路勤为径,...

1、当您付费下载文档后,您只拥有了使用权限,并不意味着购买了版权,文档只能用于自身使用,不得用于其他商业用途(如 [转卖]进行直接盈利或[编辑后售卖]进行间接盈利)。
2、本站所有内容均由合作方或网友上传,本站不对文档的完整性、权威性及其观点立场正确性做任何保证或承诺!文档内容仅供研究参考,付费前请自行鉴别。
3、如文档内容存在违规,或者侵犯商业秘密、侵犯著作权等,请点击“违规举报”。

碎片内容

专用家庭房屋设计

您可能关注的文档

确认删除?
VIP
微信客服
  • 扫码咨询
会员Q群
  • 会员专属群点击这里加入QQ群
客服邮箱
回到顶部