电脑桌面
添加小米粒文库到电脑桌面
安装后可以在桌面快捷访问

超市、茶室装修方案VIP免费

超市、茶室装修方案_第1页
1/21
超市、茶室装修方案_第2页
2/21
超市、茶室装修方案_第3页
3/21
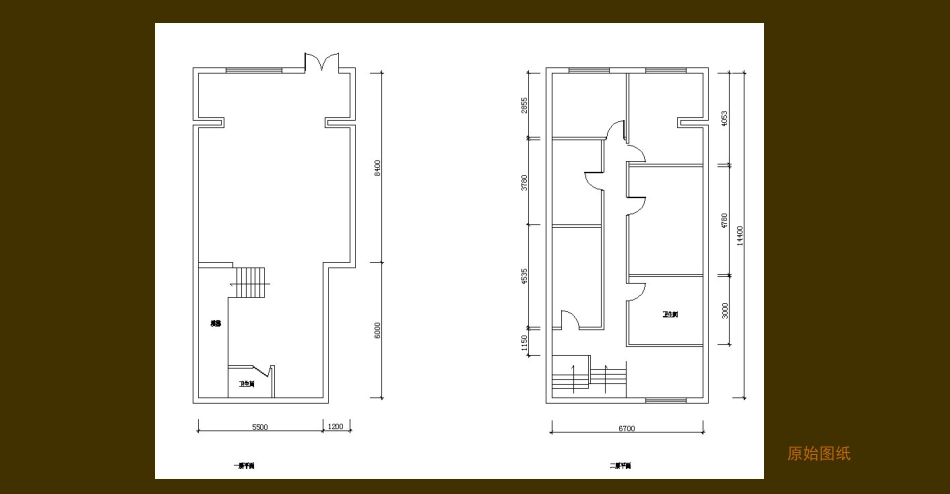
绿色产品超市、茶室空间设计方案(草案)唐山一帆广告装潢有限公司01平面分析原始图纸调整后的一层平面门厅自选购物区收银区储藏室临时就餐区调整后的二层平面走廊贵宾接待半开敞茶室储藏室卫生间02方案概念一层绿色产品超市外立面设计方案颜色会调整二层中式茶室(方案一)茶楼在唐代是茶馆,宋代繁荣起来,唐代是过路客商休息的地方,宋代就成了娱乐的地方,当今社会中,茶楼除了品茶休闲之外,一些重要的商务谈判,私密会谈一都在私密性较强的茶楼进行。本方案是传统风格的提现,崇尚庄重和优雅,多采用中国传统的木架构筑室内藻井、天棚、屏风、隔扇、瓦片等装饰,并运用对称的空间构图方式,笔墨庄重简练,空间气氛宁静、雅致而简朴。风水学中,“通”在建筑中非常重要,本案设计的走廊、雅室、半开放雅室,均可变换为“通透”,风水运转无阻。在半开放式雅室均已玻璃通透,内外一景。配饰中多采用瓷器、瓦片、桌椅采用仿制明代桌椅,打造一个纯粹的中式茶楼,配以相应的饮茶风俗令人有身临其境之感。03配饰概念、方向家具配饰方向家具配饰方向家具配饰方向THANKYOUFORWATCHING

1、当您付费下载文档后,您只拥有了使用权限,并不意味着购买了版权,文档只能用于自身使用,不得用于其他商业用途(如 [转卖]进行直接盈利或[编辑后售卖]进行间接盈利)。
2、本站所有内容均由合作方或网友上传,本站不对文档的完整性、权威性及其观点立场正确性做任何保证或承诺!文档内容仅供研究参考,付费前请自行鉴别。
3、如文档内容存在违规,或者侵犯商业秘密、侵犯著作权等,请点击“违规举报”。

碎片内容

超市、茶室装修方案

您可能关注的文档

确认删除?
VIP
微信客服
  • 扫码咨询
会员Q群
  • 会员专属群点击这里加入QQ群
客服邮箱
回到顶部