电脑桌面
添加小米粒文库到电脑桌面
安装后可以在桌面快捷访问

道路工程投标时必用的重点难点分析VIP免费

道路工程投标时必用的重点难点分析_第1页
1/26
道路工程投标时必用的重点难点分析_第2页
2/26
道路工程投标时必用的重点难点分析_第3页
3/26
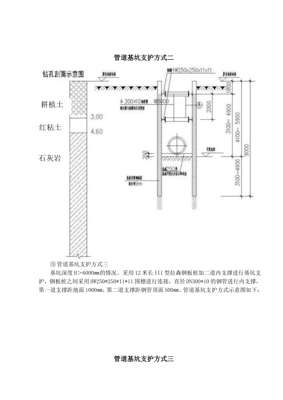
一、项目实施重点、难点1、部分路段雨污水管道埋设较深重一路雨水工程基坑开挖基本超过3米,其中左侧K0+880.179~K1+252路段管道埋深大于5米;污水工程管道埋深为5~7米之间。北纬二路雨水工程基坑开挖南侧K3+860~k4+180路段基坑开挖为5~7米之间,污水工程管道大部分超过5米。按照排水工程《城市室外工程规划规范》(GB50318-2006)等相关要求,基坑(槽)开挖超过5米则为深基坑开挖,需要做专项施工组织设计,并且要经过专家论证之后才可以实施。2、北纬二路非机动车道下含有跨度为L0=4.0米的排水渠(1)北纬二路雨水渠工程情况表如下:序号长度(m)跨径B×H(m)备注117504×2.52794×3.036274×3.5因为该排水渠的跨径较大,开挖基坑较深,工程量较大,是整个项目排水工程的重点分项分部之一,也是本项目施工的重点、难点。3、大型管道吊装施工重一路雨水工程左侧K0+880.179~K1+252路段管道内径较大,达d2400mm;北纬二路雨水工程:①北侧K1+425~K2+228管道内径在d1500和d1650;②南侧K2+228~K2+890管道内径在d1650;③南侧K2+890~K3+610管道内径在d1800;④南侧K3+610~K4+180管道内径在d2200;以上路段管径较大,在吊装施工中有一定困难,同时是是工程施工的难点之一。4、本工程的大部分施工时期经历崇左市雨季崇左市市降水量季节变化很大,全年降雨主要集中在汛期4-9月间,约占全年降雨量的80%左右。八、九月份受台风的影响,伴随有大量降雨。而本工程的土石方开挖、回填及排水工程基本在5~9月份之间,因此受阴雨天气的影响较大,雨季施工较为困难,所以雨季施工是本项目实施的难点。二、项目实施重点、难点及解决方案1、深基坑施工组织方案(1)深基坑开挖支护、支撑系统的结构设计根据岩土工程勘察报告,本工程的土层主要为耕土、红岩土以及石灰岩,在勘察钻探深度内无地下水,地质条件较好。但管道基坑深度较大,达3~7米,根据不同地段开挖深度以及地质的条件的不同。本工程拟采用如下几种不同的基坑支撑方式,具体选用根据现场实际情况而定。1)、支护、支撑结构选型①、管道基坑支护方式一基坑深度<3m,采用6米长III型拉森钢板桩加一道内支撑进行基坑支护,钢板桩之间采用HW250*250*11*11围檩进行连接,直径DN300*10的钢管进行内支撑,支撑距地面1000㎜。管道基坑支护方式示意图如下:管道基坑支护方式一②管道基坑支护方式二基坑深度<6000㎜,采用9米长III型拉森钢板桩加二道内支撑进行基坑支护,钢板桩之间采用HW250*250*11*11围檩进行连接,直径DN300*10的钢管进行内支撑。第一道支撑距地面1000㎜,第二道支撑距第二道支撑2000㎜。管道基坑支护方式示意图如下:耕植土红粘土石灰岩管道基坑支护方式二③管道基坑支护方式三基坑深度H>6000㎜的情况。采用12米长III型拉森钢板桩加二道内支撑进行基坑支护,钢板桩之间采用HW250*250*11*11围檩进行连接,直径DN300*10的钢管进行内支撑,第一道支撑距地面1000㎜,第二道支撑距钢管顶面500㎜。管道基坑支护方式示意图如下:管道基坑支护方式三红粘土石灰岩耕植土(2)、本工程投入的拉森钢板桩的参数本工程投入的拉森钢板桩采用III型拉森钢板桩,宽400mm,高170mm,厚15.5mm,理论重量68Kg/m,要求拉森钢板桩无穿孔,修边调直后方可使用。拉森钢板桩之间用HW250*250*11*11围檩进行连接,围檩与每根拉森钢板桩之间空隙需打入木楔抵紧。转角需设置专用构件,采用φ300×10钢管进行内支撑,内支撑水平间距为4.0m,管道安装需调整对撑间距并及时回顶。(3)、基坑监测要求1)、监测内容①基坑周边沉降及位移监测监测点和控制点均采用钢筋水泥制作,设置稳固。采用J2光学经纬仪或全站仪观测水平位移,采用精密水准仪观测垂直位移。基坑开挖期间每开挖一层观测2次或每天观测2次,时间为上午开工前,下午收工后。②土体侧向变形监测沿基坑周边每20m布设一个测斜孔,测斜孔采用专用PVC管,管内正交的两组导向槽,埋入深度以进入弱风化岩为宜。测斜孔埋置时角保其中一组导向槽垂直于基坑边线,测斜孔与钻孔壁间的空隙密实填砂并用水泥密封。基坑开挖过程中每开挖支护一层观测一次。③地下水位监测观测孔成孔口径φ90,深15米,全长置入...

1、当您付费下载文档后,您只拥有了使用权限,并不意味着购买了版权,文档只能用于自身使用,不得用于其他商业用途(如 [转卖]进行直接盈利或[编辑后售卖]进行间接盈利)。
2、本站所有内容均由合作方或网友上传,本站不对文档的完整性、权威性及其观点立场正确性做任何保证或承诺!文档内容仅供研究参考,付费前请自行鉴别。
3、如文档内容存在违规,或者侵犯商业秘密、侵犯著作权等,请点击“违规举报”。

碎片内容

道路工程投标时必用的重点难点分析

您可能关注的文档

确认删除?
VIP
微信客服
  • 扫码咨询
会员Q群
  • 会员专属群点击这里加入QQ群
客服邮箱
回到顶部