电脑桌面
添加小米粒文库到电脑桌面
安装后可以在桌面快捷访问

硬质悬挑水平防护方案VIP免费

硬质悬挑水平防护方案_第1页
1/9
硬质悬挑水平防护方案_第2页
2/9
硬质悬挑水平防护方案_第3页
3/9
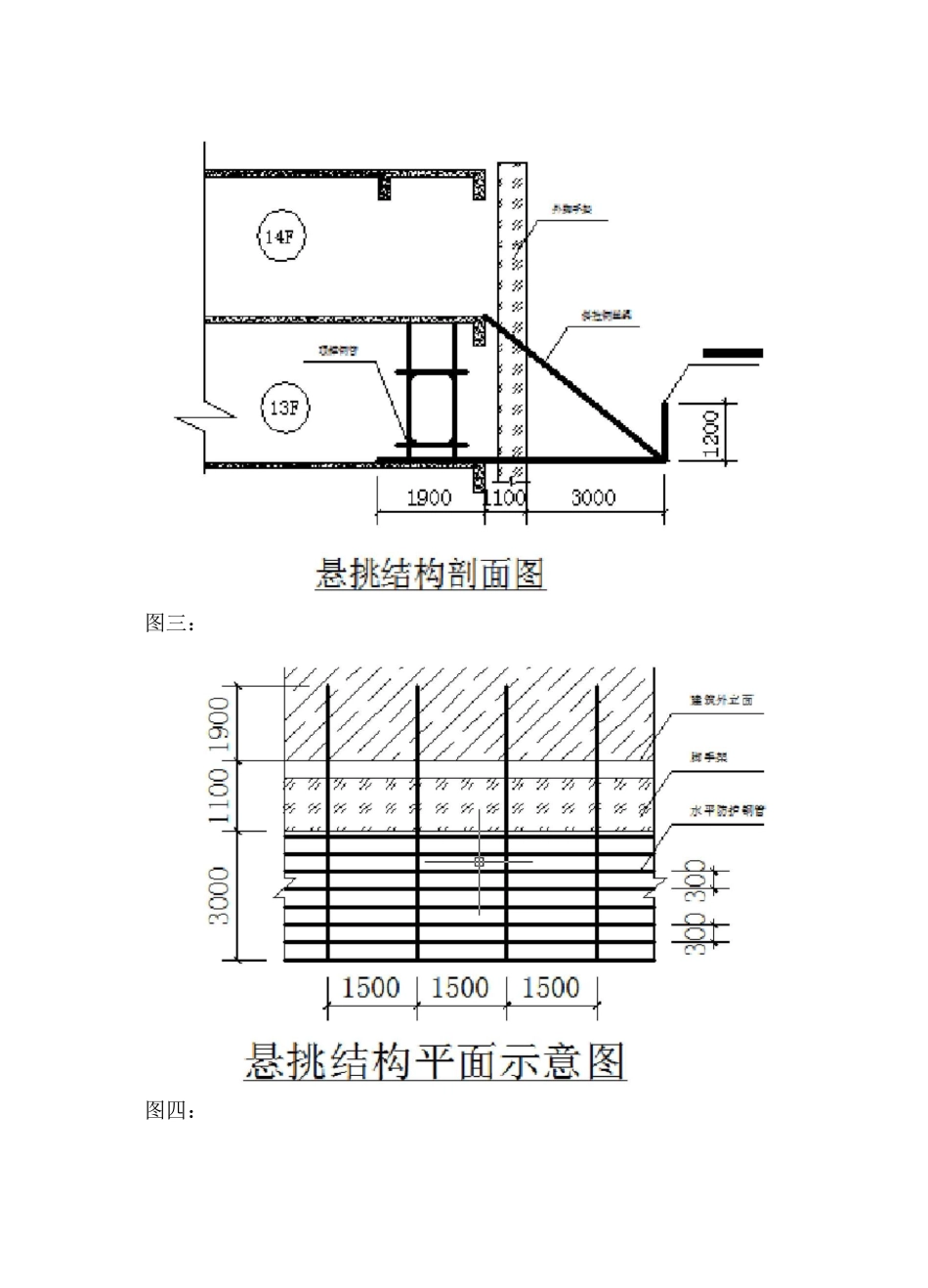
悬挑硬质防护施工方案一、工程概况xxxxxxx工程由地下两层、地上三栋超高层主楼组成,其中5#楼为43层、建筑高度133.1m;6#楼为44层、建筑高度为134.0m。本工程北侧为施工主要通道,且临xx,西侧为二期工程,为保证施工安全,避免因高空坠物造成人员意外伤害,拟在本工程5#楼、6#楼北侧搭设悬挑硬质水平防护挑网。二、编制依据1、xxxxxxx工程项目施工组织设计2、xxxxxxx工程项目施工图纸3、建筑施工安全检查标准4、建筑施工高处作业安全技术规范5、建筑施工扣件式钢管脚手架安全技术规范(JGJ130-2011)6、建筑施工手册7、钢结构设计规范(GB50017-2003)三、施工部署根据施工现场情况,在5号楼、6号楼的13层以及28层北侧及东西侧山墙处搭设一道水平硬挑防护,外挑长度3000。详见下图一:1、材料准备搭设挑防护的主梁采用①48*2.7钢管,长度6米。次梁采用①48*2.7钢管,用扣件固定,钢丝绳采用直径14的钢丝绳。次梁上铺设钢丝网片和密目网。主梁锚固采用钢管顶撑,并与相邻锚固连接形成整体。钢丝绳拉环为直径20圆钢,根据计算,拉环的实际拉力远小于极限承载力,所以两根斜拉钢丝绳可共用一个拉环。所有材料必须有材质合格证明,钢管不得有裂纹及变形。材料进场必须经过监理单位验收合格后方可投入使用。3、机械准备使用的机械主要有塔机、施工电梯、钢筋弯曲机、截断机、扳手、力矩扳手、焊机等。4、人员准备架工进场后必须先进行安全教育,必须持证上岗,搭设过程中注意人员固定,不得随意更换。4、其他准备搭设前要做好预留预埋工作,尤其是钢管穿剪力墙的位置,要注意预留套筒的保护,防止钢管不能穿过。四、悬挑硬防护做法1、悬挑做法利用6m的钢管从楼面悬挑出4.1m,钢管通过顶撑钢管与主体结构的板面或梁固定,主梁钢管间距1.5m,主梁钢管上铺上水平钢管作为次梁,次梁间距0.3m,用扣件将钢管与钢管卡紧,钢管上满铺密目式安全网和钢丝网片,如下图二、图三。在悬挑钢梁的端部设置不低于1.2m的栏杆,下口设200高挡脚板,如下图四所示。图二:图三:图四:2、悬挑钢管与主体结构的固定根据现场实际,采用顶撑钢管体系,顶撑钢管立在楼面,下垫模板,上部用顶托回顶天花楼面,并用木方楔紧,并用扫地杆水平钢管以及扫天杆连接成整体,形成顶撑体系,悬挑钢管用扣件固定在顶撑体系上。3、钢丝绳安装钢丝绳采用花篮螺栓连接,钢丝绳与钢管拉结点位于端头100mm处,与楼层拉结处预埋钢筋连接。4、防护搭设4.1搭设程序放线定位墙面开孔主梁铺设、固定钢丝绳卸载水平横杆搭设立面防护搭设钢丝网片铺设踢脚板、密目网安装检查验收4.2搭设方法按照1500的间距在楼板上进行放样。主梁间距1500,建筑物内锚固1900,悬挑4100,主梁端部离第一个顶撑距离200。主梁与顶撑体系之间用扣件固定。钢丝绳吊点位置在钢管主梁端部100处,钢丝绳吊点处在钢管上加设扣件固定,防止钢丝绳滑动。钢丝绳连接大样如上述第3条。钢管主梁上水平钢管按间距300设置钢管次梁,钢管与钢管用扣件固定。立面防护架管的搭设:立面防护高度为1200,下部200高满铺踢脚板,刷黄黑相间油漆,钢管刷红白相间油漆。满铺密目网。水平钢管次梁上满铺钢丝网片,上面在铺一层密目网,防止小颗粒建渣下掉。5、断口处搭设防护在施工电梯处断开,安装挑防护的楼层不涉及塔吊附着。五、搭设时安全注意事项(1)搭设人员必须佩带安全带,并正确使用,高挂低用。(2)搭设悬挑硬防护时,必须对钢管主梁采取可靠固定后,方可进行其它步骤的施工。(3)钢管与卡环必须用木楔固定牢固。(4)搭设大角的硬防护时,应在搭设完一半时采取钢丝绳斜拉卸荷后,再搭设剩余的一半。(5)硬防护搭设完成后,应对每根悬挑钢管做一道钢丝绳斜拉,做为安全储备。(6)本防护作为楼层的水平硬防护,严禁在上面堆载及施工作业。六、检查与验收1、防护搭设完成后,施工班组要进行自检,看是否按照方案搭设。然后报项目部验收,由项目部验收后再邀请监理单位验收,监理单位验收合格后方可使用。验收标准参照《建筑施工高处作业安全技术规范》和《建筑施工扣件式钢管脚手架安全技术规范》相关条款。2、挑防护的搭设应严格按照方案进行,主梁布置遇到结构上不能按1...

1、当您付费下载文档后,您只拥有了使用权限,并不意味着购买了版权,文档只能用于自身使用,不得用于其他商业用途(如 [转卖]进行直接盈利或[编辑后售卖]进行间接盈利)。
2、本站所有内容均由合作方或网友上传,本站不对文档的完整性、权威性及其观点立场正确性做任何保证或承诺!文档内容仅供研究参考,付费前请自行鉴别。
3、如文档内容存在违规,或者侵犯商业秘密、侵犯著作权等,请点击“违规举报”。

碎片内容

硬质悬挑水平防护方案

您可能关注的文档

确认删除?
VIP
微信客服
  • 扫码咨询
会员Q群
  • 会员专属群点击这里加入QQ群
客服邮箱
回到顶部