电脑桌面
添加小米粒文库到电脑桌面
安装后可以在桌面快捷访问

屋面排水及节点设计VIP免费

屋面排水及节点设计_第1页
1/12
屋面排水及节点设计_第2页
2/12
屋面排水及节点设计_第3页
3/12
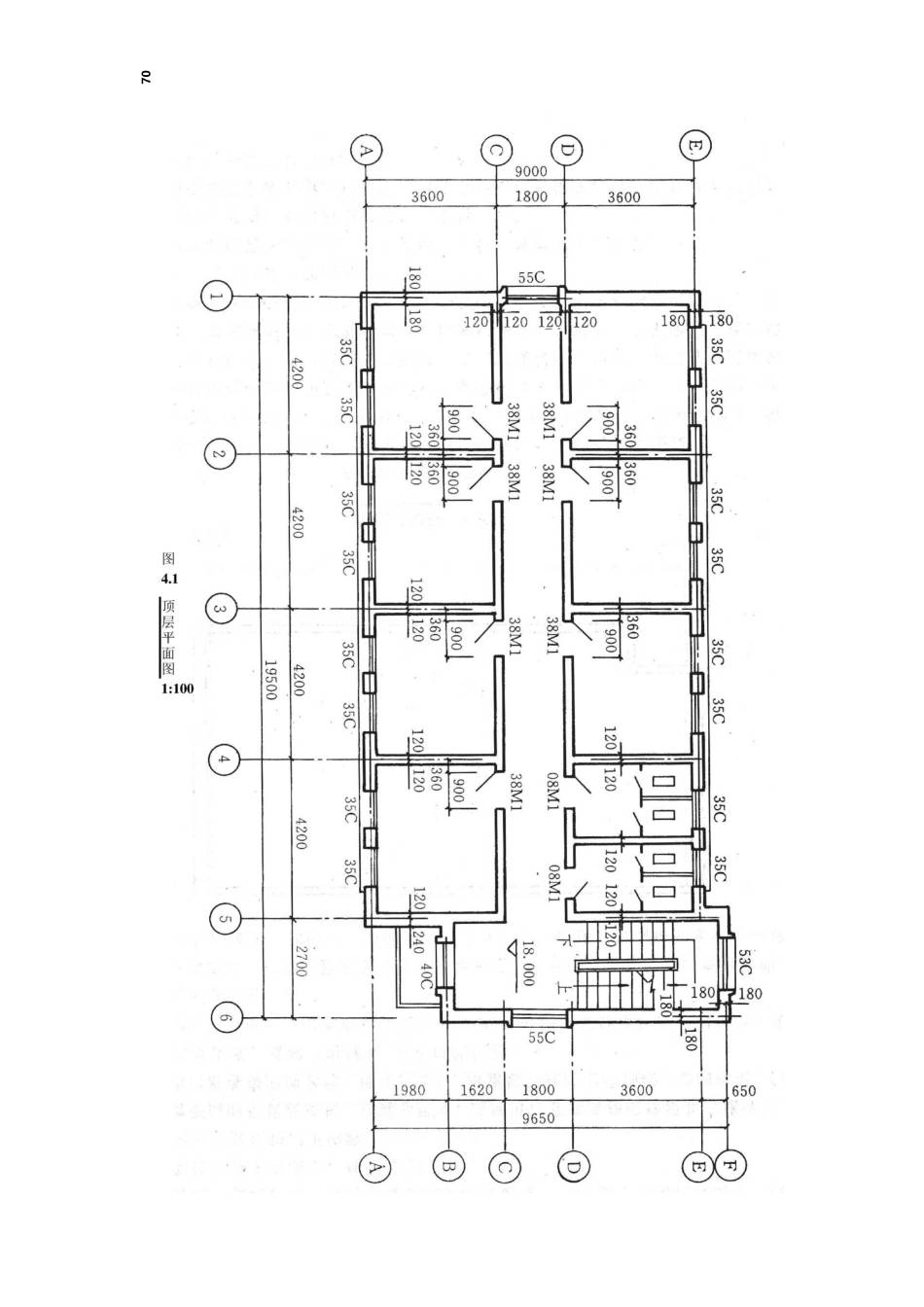
684屋面排水及节点设计学习目标掌握屋顶的排水方式和要求、坡度的形成方式。掌握屋面防水的种类、构造层次和细部构造做法。熟悉屋面排水设计的方法和步骤。熟悉屋顶排水平面图和节点详图的识读,增强图纸表达能力。学习重点屋顶的排水方式的选择和平屋顶排水方案的设计。屋面柔性防水、刚性防水的构造层次和细部构造做法。屋顶排水平面图和节点详图的主要内容和尺寸标注。4.1设计任务书4.1.1设计题目及设计条件办公楼屋面排水设计办公楼为六层砖混结构,楼板均为钢筋混凝土现浇板。建筑顶层平面图如图4.1所示。底层地面标高为土0.000,室外标高为一0.600m,顶层楼面标高为18.000m,屋面标高为21.600m。外墙厚度为360mm,内墙厚度为240mm。定位轴线与墙体中线相互重合。下部各层门窗及入口的洞口平面位置与顶层门窗洞口的平面位置相同屋面为不上人屋面。办公楼所在地年降雨量为1250mm,每小时最大降雨量为100mm。设计此办公楼的屋面排水。4.1.2设计内容和深度及图纸要求用3号图纸一张,绘制该办公楼屋顶排水平面图和屋顶节点详图。1.屋顶排水平面图(比例1:100或1:200)绘制出屋面构造的基本平面形状并用定位尺寸明确表示出其平面位置;绘制出建筑的分水线、檐沟(天沟)轮廓线或女儿墙的轮廓线,并标注其位置;绘制出雨水口的位置;标注出屋面各坡面的坡度方向和坡度值;刚性防水屋面绘制出分仓缝的设置位置;标注出详图索引号。屋顶排水平面图的尺寸标注:第一道尺寸线为细部尺寸线,标注出雨水口、分6970一71(a)四坡屋面寸,注明檐沟饰面层的作法和防水层的收头构造作法。当采用女儿墙外排水或内排水时,表示清楚女儿墙压顶构造、泛水构造、屋顶各层构造,标注出女儿墙的高度泛水高度等尺寸。泛水节点详图:画出竖直墙体与屋面相交处的连接构造,表示清楚屋面各层构造和泛水构造,注明构造作法,标注泛水高度等有关尺寸。水落口节点详图:表示清楚雨水口的形式、水落口处的防水处理,注明细部作法,标注雨水口等有关尺寸。分格缝构造:又称分仓缝,当采用刚性防水屋面时,表示清楚分格缝的宽度、缝内嵌填材料、缝口表面卷材铺盖构造及相应尺寸,表示清楚屋面各层构造。屋面变形缝构造:当建筑有设置变形缝时,要绘制屋面变形缝构造。表示清楚屋面变形缝处构造做法和尺寸。根据变形缝设置的位置不同有两种情况:等高屋面的变形缝和高低跨处的屋面变形缝。4.2设计方法、步骤和要点提示4.2.1设计方法和步骤4.2.1.1确定屋面坡度的形成方法和坡度大小屋面坡度的形成方法有材料找坡和结构找坡。结构找坡适用于屋面进深较大(>18m)的建筑。民用建筑的进深一般不大,所以一般均采用材料找坡。屋面坡度可做成四坡屋面(图4.2(a))或双坡屋面(图4.2(b))。四坡屋面沿屋面四周设置檐沟。双坡屋面沿屋顶纵向两侧设置檐沟。一般情况下,临街建筑平屋顶屋面宽度小于12m时,可设单侧找坡(图4.2(c))。屋面的排水坡度应根据屋顶结构形式、屋面基层类别、防水构造形式,材料性能及当地气候等条件确定,并应符合表4.1的规定。表4.1屋面的排水坡度屋面类别屋面排水坡度(%)卷材防水、刚性防水的平屋面2~5平瓦20〜50波形瓦10〜50油毡瓦三20网架、悬索结构金属板三4压型钢板5~35种植土屋面1~3(b)双坡屋面图4.2屋面坡度形式(c)单坡屋面724.2.1.2确定排水方式屋面排水方式分为有组织排水和无组织排水两类。在年降雨量小于或等于900mm的地区,檐口高度大于10m时,或年降雨量大于900mm的地区,当檐口高度大于8m时,应采用有组织排水。在年降雨量小于或等于900mm的地区,檐口高度不大于10m时,或年降雨量大于900mm的地区,当檐口高度不大于8m时,可采用无组织排水。有组织排水通常有外排水和内排水之分。内排水(图4.3(d))多用于多跨房屋、高层建筑以及寒冷地区水落管易发生冰冻堵塞的建筑。其他建筑宜优先考虑采用外排水方式。外排水方式通常有檐沟外排水(图4.3(a))、女儿墙外排水(图4.3(c))和女儿墙檐沟外排水(图4.3(b))几种方案。(a)檐沟外排水(b)女儿墙檐沟外排水(c)女儿墙外排水(d)内排水图4.3有组织排水方案4.2.1.3划分排水区域排水区域划分应尽可能规整,面积大小应相当,以保证每个水落...

1、当您付费下载文档后,您只拥有了使用权限,并不意味着购买了版权,文档只能用于自身使用,不得用于其他商业用途(如 [转卖]进行直接盈利或[编辑后售卖]进行间接盈利)。
2、本站所有内容均由合作方或网友上传,本站不对文档的完整性、权威性及其观点立场正确性做任何保证或承诺!文档内容仅供研究参考,付费前请自行鉴别。
3、如文档内容存在违规,或者侵犯商业秘密、侵犯著作权等,请点击“违规举报”。

碎片内容

屋面排水及节点设计

确认删除?
VIP
微信客服
  • 扫码咨询
会员Q群
  • 会员专属群点击这里加入QQ群
客服邮箱
回到顶部