电脑桌面
添加小米粒文库到电脑桌面
安装后可以在桌面快捷访问

六数控钻说明书VIP免费

六数控钻说明书_第1页
1/39
六数控钻说明书_第2页
2/39
六数控钻说明书_第3页
3/39
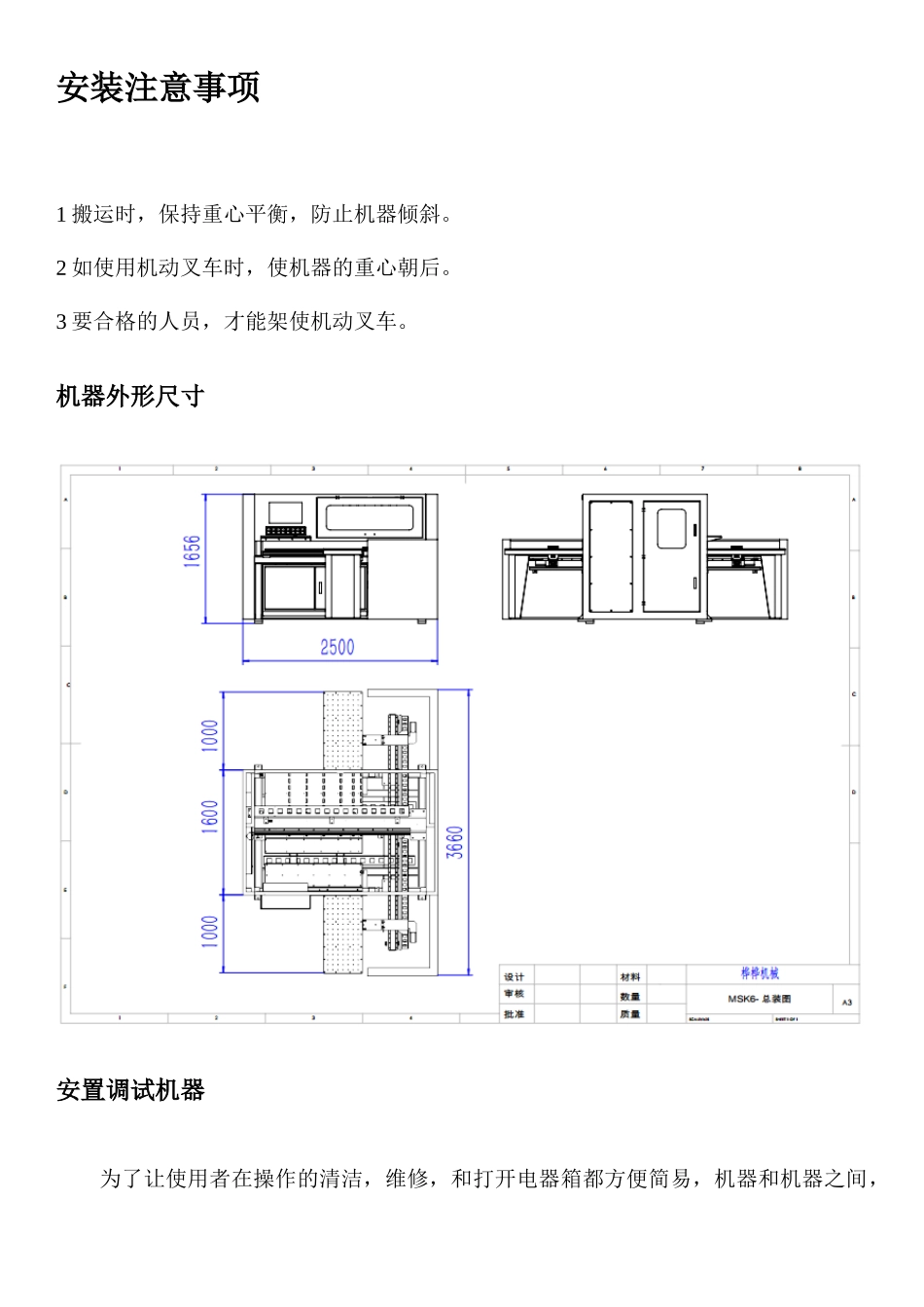
使用手册全自动六面钻铣加工中心SKS-690目录1、 安装注意事项··································3-42、 面板按钮开关·································· 53、 安全注意事项·································· 64、 作业指导·································· ··· 75、 操作指导····································· 86、 M 代码······································· 97、 组合键 ······································ 108、 代码操作说明·································· 109、 代码操作说明·································· 1010、 常见故障处理·································· 11-1611、 连续扫描加工使用方法··························· 16-1812、 ROM 软件更新 ································ 18-2313、 VGA 切换····································· 2414、 机台坐标系···································· 2515、 电路图········································ 26-3516、 配件清单······································ 3617、 产品保修卡···································· 3718、 合格证······································· 38页··············································· 39未经培训使用的人员禁止操作此设备 操作主机手须详细的阅读此说明书安装注意事项1 搬运时,保持重心平衡,防止机器倾斜。2 如使用机动叉车时,使机器的重心朝后。3 要合格的人员,才能架使机动叉车。机器外形尺寸安置调试...

1、当您付费下载文档后,您只拥有了使用权限,并不意味着购买了版权,文档只能用于自身使用,不得用于其他商业用途(如 [转卖]进行直接盈利或[编辑后售卖]进行间接盈利)。
2、本站所有内容均由合作方或网友上传,本站不对文档的完整性、权威性及其观点立场正确性做任何保证或承诺!文档内容仅供研究参考,付费前请自行鉴别。
3、如文档内容存在违规,或者侵犯商业秘密、侵犯著作权等,请点击“违规举报”。

碎片内容

六数控钻说明书

您可能关注的文档

确认删除?
VIP
微信客服
  • 扫码咨询
会员Q群
  • 会员专属群点击这里加入QQ群
客服邮箱
回到顶部