电脑桌面
添加小米粒文库到电脑桌面
安装后可以在桌面快捷访问

围挡彩钢板施工方案VIP免费

围挡彩钢板施工方案_第1页
1/4
围挡彩钢板施工方案_第2页
2/4
围挡彩钢板施工方案_第3页
3/4
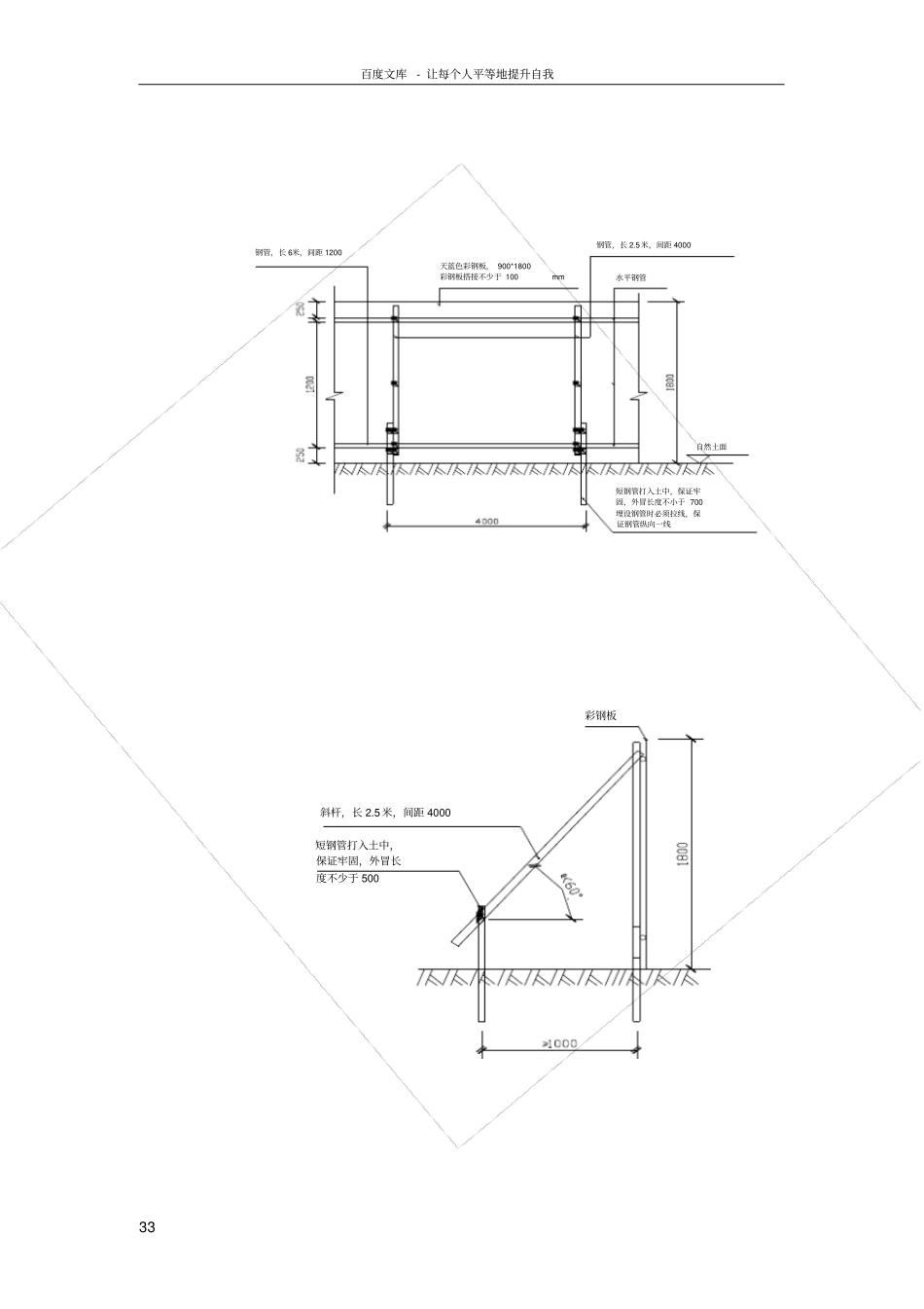
百度文库- 让每个人平等地提升自我11 围挡方案一、 工程概况:因本工程座落在山坡与小碧河之间,为保障安全、文明施工,现场周边沿线搭设彩钢瓦, 全长约 2000 多米,前期平场阶段未处理好周边关系和征地范围的情况下,按照2013 年 11 月 21 日贵阳市“两严一降”的要求,在施工阶段完善临时围挡,我方根据施工现场安全文明要求和有关会议布置,决定采取钢管搭设彩钢封闭,作为施工场阶段临时围挡,确保工程安全施工顺利进行。二、 围挡材料选用架子采用¢ 48 钢管脚手架搭设,挡板采用彩钢瓦。三、 搭设要求及搭设范围详见附图。四、 材料搬运因本工程目前无施工道路,材料在公路边下车后, 由人工搬运至搭设点。五、 施工方案:1、围墙定位依据业主下发的施工平面总图,对临时围挡进行安装定位。确定线路后,请建设方予以确认, 与现场不符部位及时进行调整。2、围挡标准围挡围栏面材主要采用彩钢板:骨材采用脚手架钢管骨架,百度文库- 让每个人平等地提升自我22 钢管强度必须符合相关标准规定。围挡规格为每节长米,高米。围栏之间采用钢管扣件连接的骨架立柱进行连接,骨架立柱高米。原材料彩钢板厚度为0.426mm. 原材料钢管表面涂有防锈漆。架管采用直径Ф 48mm 壁厚钢管,绑扎采用用直角扣件、十字扣件、回转扣件和对接扣件连接。3、围栏的固定围栏固定采用骨架底部用钢管打入土层固定。在每骨架柱位置,加钢管斜撑, 并在 1 米内用短钢管打入土层固定,与钢管斜撑连接,围栏间连接牢固保证正常施工过程中不发生倾斜。1、临时围墙采用彩钢板、钢管搭设,钢管间距4 米,用短钢管打入土中,确保牢固,外冒长度不小于700,上部立杆与其连接。上下位置设立水平钢管,下部离地250、上部 250 位置。2、每一立杆背后用斜钢管支撑,斜钢管与立杆形成60 度角,具体见下图:3、彩钢板高米,颜色统一为蓝色,蓝色朝外。采用绑扎丝固定在水平杆上,每块彩钢板连接处无缝隙。百度文库- 让每个人平等地提升自我33 钢管,长 2.5米,间距 4000短钢管打入土中,保证牢固,外冒长度不小于 700埋设钢管时必须拉线,保证钢管纵向一线水平钢管天蓝色彩钢板, 900*1800彩钢板搭接不少于 100mm自然土面钢管,长 6米,间距 1200彩钢板短钢管打入土中,保证牢固,外冒长度不少于 500斜杆,长 2.5 米,间距 4000百度文库- 让每个人平等地提升自我44 六、围挡的维护围挡的安全作用的发挥以及良好的外部形象的体现关键在于...

1、当您付费下载文档后,您只拥有了使用权限,并不意味着购买了版权,文档只能用于自身使用,不得用于其他商业用途(如 [转卖]进行直接盈利或[编辑后售卖]进行间接盈利)。
2、本站所有内容均由合作方或网友上传,本站不对文档的完整性、权威性及其观点立场正确性做任何保证或承诺!文档内容仅供研究参考,付费前请自行鉴别。
3、如文档内容存在违规,或者侵犯商业秘密、侵犯著作权等,请点击“违规举报”。

碎片内容

围挡彩钢板施工方案

您可能关注的文档

确认删除?
VIP
微信客服
  • 扫码咨询
会员Q群
  • 会员专属群点击这里加入QQ群
客服邮箱
回到顶部