电脑桌面
添加小米粒文库到电脑桌面
安装后可以在桌面快捷访问

屋面排水及节点设计VIP免费

屋面排水及节点设计_第1页
1/7
屋面排水及节点设计_第2页
2/7
屋面排水及节点设计_第3页
3/7
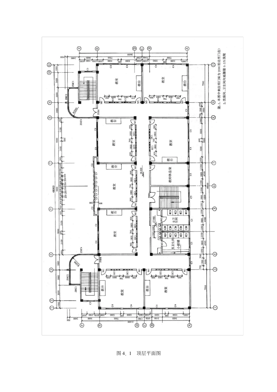
屋面排水及节点设计 4.1 目的要求 屋面排水及节点设计是屋面设计的重要组成部分,通过该构造设计,使学生了解平屋面的差不多排水方式和要求,把握屋面防水的的种类和细部构造的具体做法。 4.2 设计任务书 4.2.1 设计题目及设计条件 某中学教学楼屋面排水设计 某中学教学楼为六层钢筋混凝土框架结构,楼板均为现浇板。建筑顶层平面图如图4.1所示。底层地面标高为±0.000,室外标高为-0.600m,顶层地面标高为18.000m,屋面标高为21.600m。所有墙体厚度为200mm,定位轴线、墙体中线以及柱子中线相互重合。下部各层门窗及入口的洞口平面位置与顶层门窗洞口的平面位置相同。屋面为不上人屋面,无专门的使用要求,防水层采纳卷材防水。教学楼所在地年降雨量为950mm,每小时最大降雨量为l00mm。设计此教学楼的屋面排水。 4.2.2 设计内容和深度及图纸要求 用3 号图纸一张,绘制该中学教学楼屋顶平面图和屋顶节点详图。 1.屋顶平面图(比例1:200) 绘制出屋面构造的差不多平面形状并用定位尺寸明确表示出其平面位置;绘制出建筑的分水线、檐沟轮廓线、檐口边线或女儿墙的轮廓线,并标注其位置;绘制出雨水口的位置;标注出屋面各坡面的坡度方向和坡度值;标注出详图索引号。 屋顶平面图的尺寸线通常标注三道:第一道尺寸线为细部尺寸线,标注出雨水口、分水线(包括檐沟分水线)和定位轴线相互之间的距离、屋顶最外侧轮廓线与外墙定位轴线的距离;第二道尺寸线为定位轴线尺寸线,标注出定位轴线相互之间的距离、外墙的定位轴线与屋顶最外轮廓线的距离;第三道尺寸线标注出屋顶最外轮廓线间的距离。 2,屋顶节点详图 内容包括檐口节点详图、泛水节点详图和雨水口节点详图。详图用断面图形式表示。与详图无关的其他部分用折段线断开。详图的尺寸应标注在图样之外。详图中要标注详图符号和比例。 檐口节点详图:当采纳檐沟外排水时,表示清晰檐沟板的形式、屋顶各层构造、檐El处的防水处理,以及檐沟板与屋面板、墙、圈梁或梁的相互关系,标注檐沟尺寸,注明檐沟饰面层的作法和防水层的收头构造作法。当采纳女儿墙外排水或内排水时,表示清晰女儿墙压顶构造、泛水构造、屋顶各层构造,标注出女儿墙的高度、泛水高度等尺寸。 泛水节点详图:画出竖直墙体与屋面相接出的连接构造,表示清晰屋面各层构造和泛水构造,注明构造作法,标注泛水高度等有关尺寸。 雨水口节点详图:表示清晰雨水口的形式、雨水口处的防水处理,注明细部作法,标注雨...

1、当您付费下载文档后,您只拥有了使用权限,并不意味着购买了版权,文档只能用于自身使用,不得用于其他商业用途(如 [转卖]进行直接盈利或[编辑后售卖]进行间接盈利)。
2、本站所有内容均由合作方或网友上传,本站不对文档的完整性、权威性及其观点立场正确性做任何保证或承诺!文档内容仅供研究参考,付费前请自行鉴别。
3、如文档内容存在违规,或者侵犯商业秘密、侵犯著作权等,请点击“违规举报”。

碎片内容

屋面排水及节点设计

确认删除?
VIP
微信客服
  • 扫码咨询
会员Q群
  • 会员专属群点击这里加入QQ群
客服邮箱
回到顶部