电脑桌面
添加小米粒文库到电脑桌面
安装后可以在桌面快捷访问

图解钢结构各个构件和做法VIP免费

图解钢结构各个构件和做法_第1页
1/34
图解钢结构各个构件和做法_第2页
2/34
图解钢结构各个构件和做法_第3页
3/34
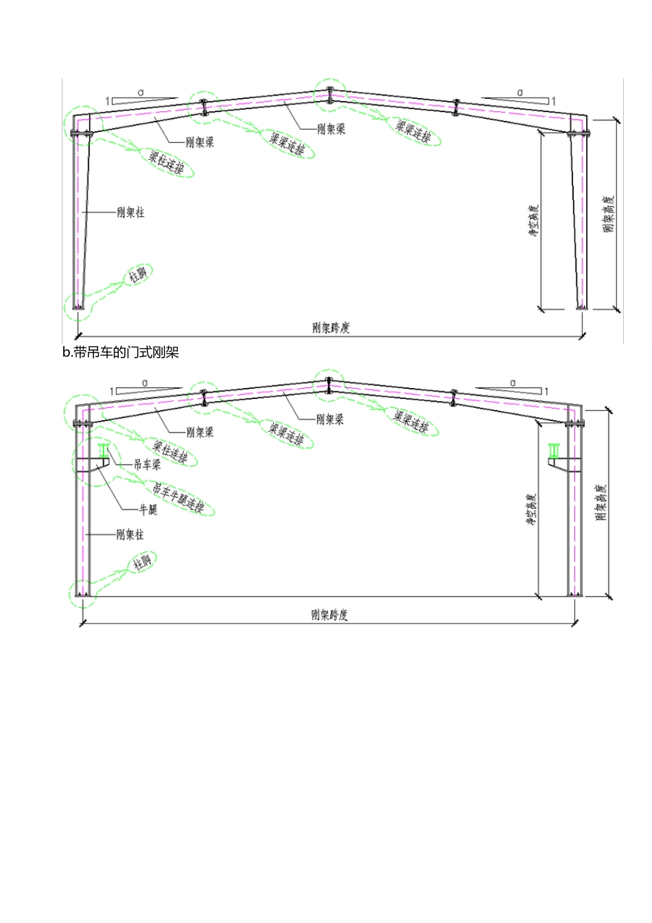
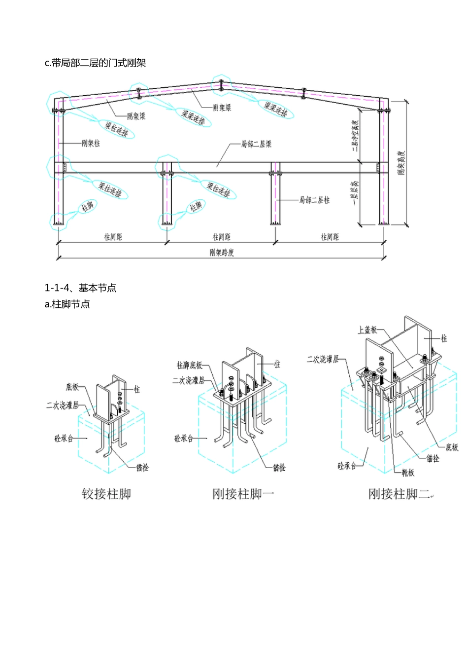
必 须 收 藏 :图 解 钢 结 构 各 个构 件和做法 1、 建 筑 体 系 1-1、 门 式 刚 架 体 系 1-1-1、 基 本 构 件 图 1-1-2、 说 明 力学原理:门 式 刚 架 结 构 以 柱 、 梁 组 成 的 横 向 刚 架 为 主 受 力 结 构 ,刚 架 为 平面受 力 体 系 。为 保证纵向 稳定,设置柱 间支撑和屋面支撑。 刚架:刚 架 柱 和梁 均采用截面 H 型钢制作,各种荷载通过柱 和梁 传给基 础。 支撑、系杆:刚 性支撑采用热轧型钢制作,一般为 角钢。柔性支撑为 圆钢。系 杆为 受 压圆钢管,与支撑组 成 受 力 封闭体 系 。屋面檩条、墙梁:一般为 C 型钢、 Z 型钢。承受 屋面板和墙面板上传递来的 力 ,并将该力 传递给柱 和梁 。1-1-3、 门 式 刚 架 的 基 本 形式 a.典型门 式 刚 架 b.带 吊 车 的 门 式 刚架c.带 局 部 二层 的 门 式 刚 架 1-1-4、 基 本 节 点 a.柱 脚 节 点 b.梁 、 柱 节 点 ■局 部 二层节 点 参照多层框架体系。1-1-5、 刚架衍生形式■ 吊 车 和 局 部 二 层 可 在 衍 生 形 式 刚 架 中 布 置 。 ■山 墙 刚 架 其 本 质 也 是 多 连 跨 刚 架 ,不过中 间柱与刚 架 柱比截面旋转了 90 度。 1-2、多 层 框架 体系1-2-1、框架 图示1-2-2、 说 明 力学模型: a.纯 刚 接 框 架 : 纵 横 两 个 方 向 均 采 用 刚 接 的 框 架 。 b.刚 接 -支 撑 框 架 : 横 向 采 用 刚 接 ,纵 向 采 用 铰 接 ,并 在 纵 向 设 置 支 撑 ,以 传 递 水 平 力 。 c.支 撑 式 框 架 : 纵 横 向 均 采 用 铰 接 ,两 向 均 设 置 支 撑 传 递 水 平 力 。 d.有 时 为 保 证 足 够 的 刚 度 ,在 刚 接 框 架 中 亦 设 置 支 撑 。 框架柱:框 架 柱 可 采 用 H 型 截 面 、 箱 形 截 面 、 十 字 形 截 面 、 圆 管 形 截 面 等 。 所 有 上 部 结 构 的力 都 通 过 框 架 柱 传 递 给 基 础 。 框架梁:框 架 梁 一 般 采 用 H 型 截 面 。 楼 盖 和 屋 盖...

1、当您付费下载文档后,您只拥有了使用权限,并不意味着购买了版权,文档只能用于自身使用,不得用于其他商业用途(如 [转卖]进行直接盈利或[编辑后售卖]进行间接盈利)。
2、本站所有内容均由合作方或网友上传,本站不对文档的完整性、权威性及其观点立场正确性做任何保证或承诺!文档内容仅供研究参考,付费前请自行鉴别。
3、如文档内容存在违规,或者侵犯商业秘密、侵犯著作权等,请点击“违规举报”。

碎片内容

图解钢结构各个构件和做法

您可能关注的文档

确认删除?
VIP
微信客服
  • 扫码咨询
会员Q群
  • 会员专属群点击这里加入QQ群
客服邮箱
回到顶部