电脑桌面
添加小米粒文库到电脑桌面
安装后可以在桌面快捷访问

地下室人防工程机电安装最全图文详解(附安装图集)VIP专享VIP免费

地下室人防工程机电安装最全图文详解(附安装图集)_第1页
1/16
地下室人防工程机电安装最全图文详解(附安装图集)_第2页
2/16
地下室人防工程机电安装最全图文详解(附安装图集)_第3页
3/16
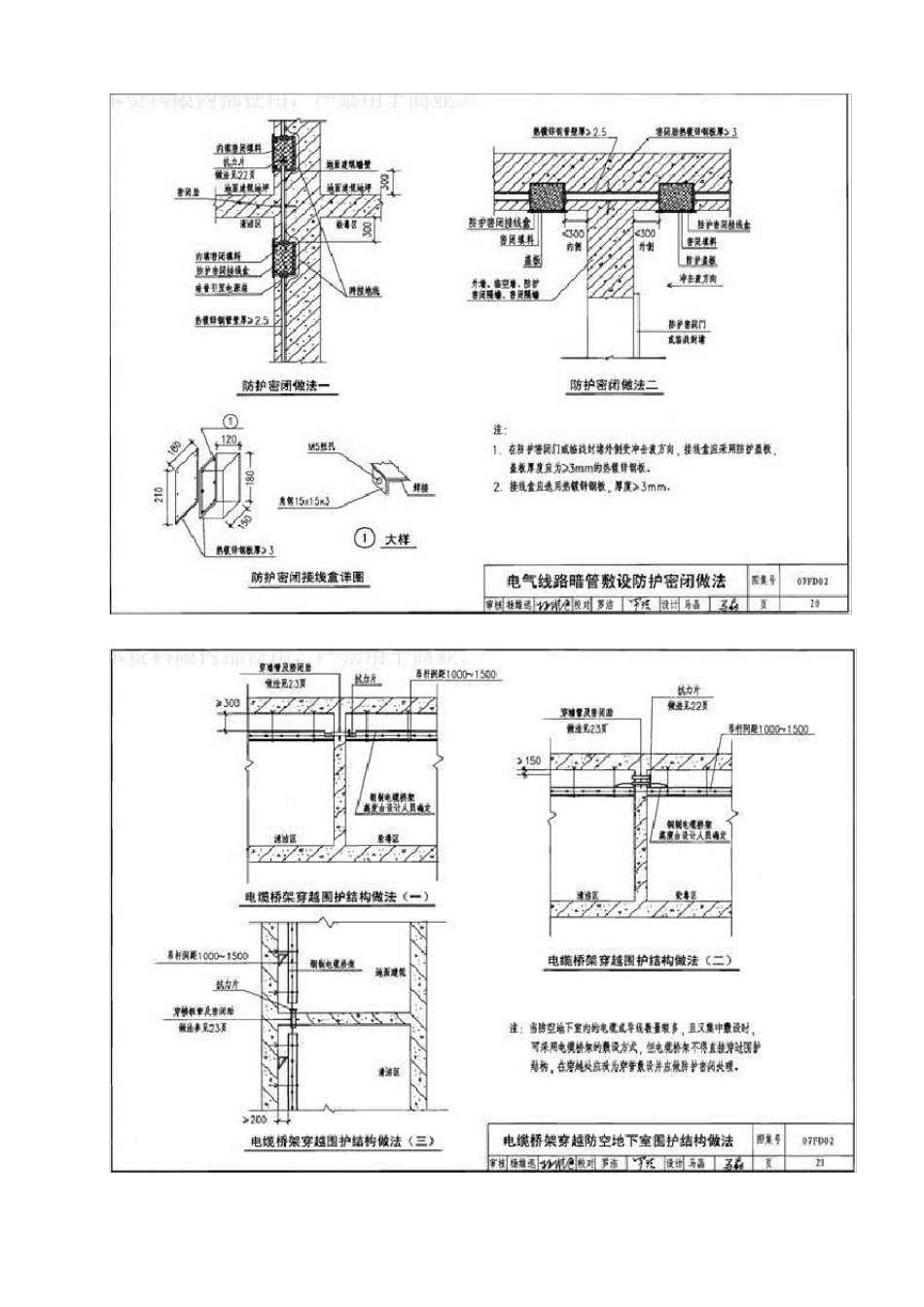
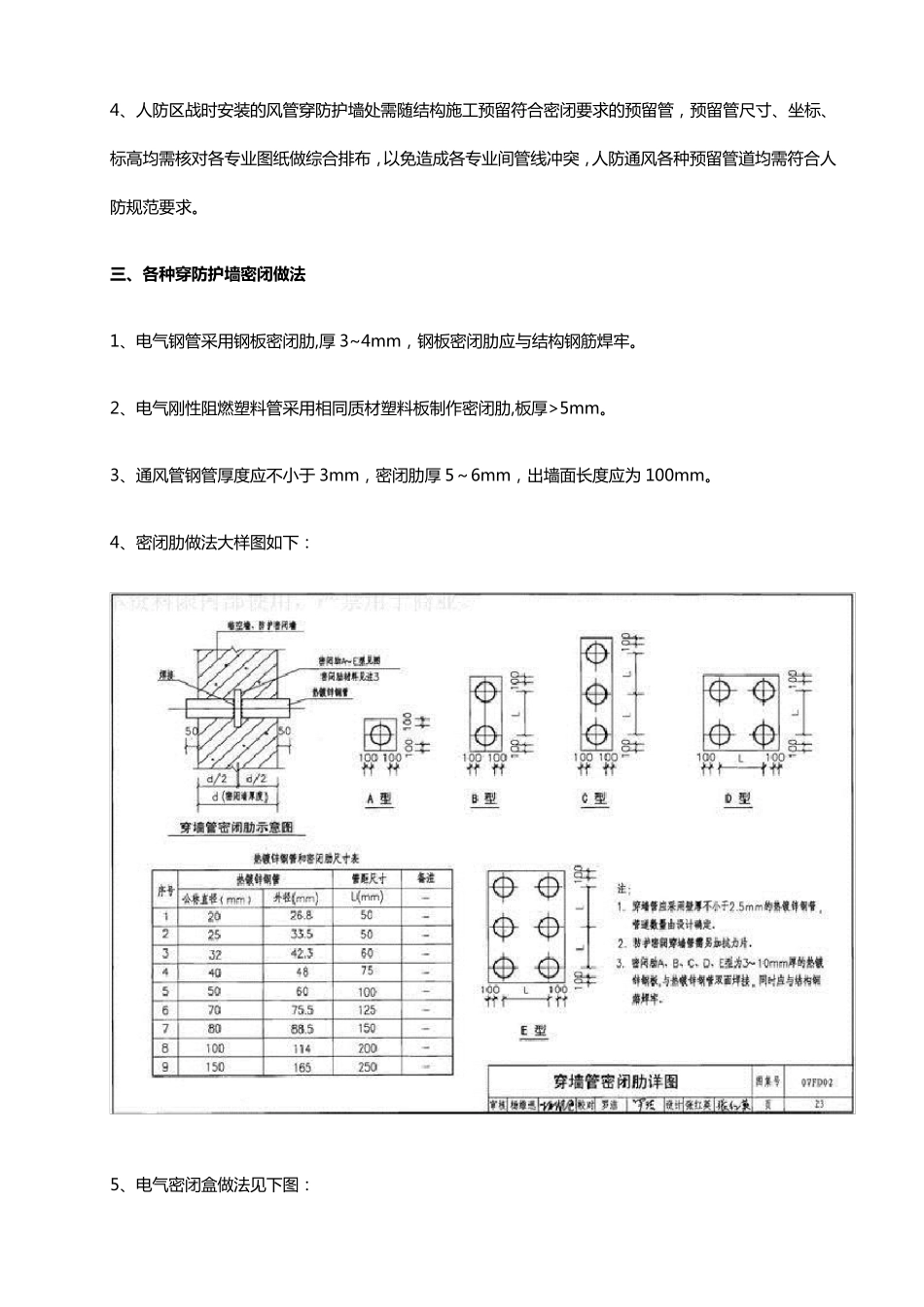
地下室人防工程机电安装最全图文详解(附安装图集) 一 、人防区预留预埋一 般要求 1、人防预留预埋的内容:人防区内各专业的预留预埋线管和套管。 2、各人员出入口和连通口的防护密闭门门框墙、密闭门门框墙上均在平时预埋几根备用管,管径为 65mm,管壁厚度不小于 2.5mm 的热镀锌钢管。 3、各种穿越外墙、临空墙、防护密闭隔墙和密闭隔墙的电缆管线作好预埋,预留备用管,并作好防护密闭或密闭处理。 4、由地下室配电房各引一路低压电缆至各人防区配电箱,相邻地块战时区域电站引来的人防电源作为战时备用电源。战时电源临战时需在 3 天转换时限内完成调试,平时做好电源回路的预埋管工作。 5、各种设备安装的预留孔洞。 二、人防施工注意事项 1、所有穿越人防区防护密闭隔墙、密闭隔墙及顶板的压力管道均需预留防护密闭套管,防护套管做法参照图集 07FS02(人防水),重力排水不得穿越人防区隔墙及顶板。 2、人防防爆地漏安装应符合 07FS02(人防水)规 定 。防爆地漏安装需要 注 意 建 筑 后 浇 层 厚度,控 制好地漏安装标 高 ,安装完毕 后 地漏盖 需取 下另 行 存 放 ,地漏内采 用编 织 袋 内装锯 木 屑 填 塞 饱 满 密实 ,以防堵 塞 。待 建 筑 地面 完成后 再 安装地漏盖 。 3、人防区暗 装电气 管路均采 用壁厚不小于 2.5mm 的热镀锌钢管,穿过 人防隔墙及顶板的电气 管线,需按 照 05SFD10(人防电)规 定 做防护密闭处理,明 配管需预留穿人防隔墙及顶板的密闭套管,密闭套管做法详05SFD10(人防电)。并需注 意 战时如 信 号 管、检 测 管等 穿防护墙的备用预留管。 4、人防区战时安装的风管穿防护墙处需随结构施工预留符合密闭要求的预留管,预留管尺寸、坐标、标高均需核对各专业图纸做综合排布,以免造成各专业间管线冲突,人防通风各种预留管道均需符合人防规范要求。 三 、各种穿防护墙密闭做法 1、电气钢管采用钢板密闭肋,厚 3~4mm,钢板密闭肋应与结构钢筋焊牢。 2、电气刚性阻燃塑料管采用相同质材塑料板制作密闭肋,板厚>5mm。 3、通风管钢管厚度应不小于 3mm,密闭肋厚 5~6mm,出墙面长度应为 100mm。 4、密闭肋做法大样图如下: 5、电气密闭盒做法见下图: 6、人防工程密闭套管预留预埋: 穿过人防护结构给水引入管,排水出户管、通气管、供油管、消防给水管,在其穿墙和楼板处应预埋防护密闭套管; 给 水 管 , ...

1、当您付费下载文档后,您只拥有了使用权限,并不意味着购买了版权,文档只能用于自身使用,不得用于其他商业用途(如 [转卖]进行直接盈利或[编辑后售卖]进行间接盈利)。
2、本站所有内容均由合作方或网友上传,本站不对文档的完整性、权威性及其观点立场正确性做任何保证或承诺!文档内容仅供研究参考,付费前请自行鉴别。
3、如文档内容存在违规,或者侵犯商业秘密、侵犯著作权等,请点击“违规举报”。

碎片内容

地下室人防工程机电安装最全图文详解(附安装图集)

确认删除?
VIP
微信客服
  • 扫码咨询
会员Q群
  • 会员专属群点击这里加入QQ群
客服邮箱
回到顶部