电脑桌面
添加小米粒文库到电脑桌面
安装后可以在桌面快捷访问

084固定式钢梯及平台安全要求第一部分:钢直梯(GB4053.12009)VIP免费

084固定式钢梯及平台安全要求第一部分:钢直梯(GB4053.12009)_第1页
1/8
084固定式钢梯及平台安全要求第一部分:钢直梯(GB4053.12009)_第2页
2/8
084固定式钢梯及平台安全要求第一部分:钢直梯(GB4053.12009)_第3页
3/8
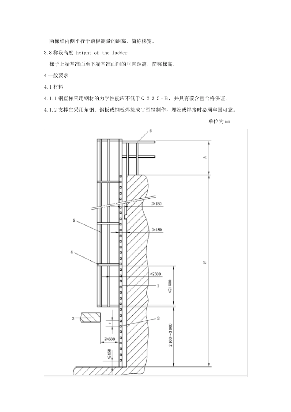
固 定 式 钢 梯 及 平 台 安 全 要 求 第 一 部 分 : 钢 直 梯 1 范 围 本 部 分 规 定 了 固 定 式 钢 直 梯 的 设 计 、 制 造 和 安 装 方 面 的 基 本 安 全 要 求 。 本 部 分 适 用 于 工 业 企 业 内 工 作 场 所 中 使 用 的 固 定 式 钢 直 梯 ( 另 有 标 准 规 定 的 除 外 ) 。 2 规 范 性 引 用 文 件 下 列 文 件 中 的 条 款 通 过 GB4053 的 本 部 分 的 引 用 而 成 为 本 部 分 的 条 款 。 凡 是 注 日 期 的 引 用文 件 , 其 随 后 所 有 的 修 改 单 ( 不 包 括 勘 误 的 内 容 ) 或 修 订 版 均 不 适 用 于 本 部 分 , 然 而 , 鼓励 根 据 本 部 分 达 成 协 议 的 各 方 研 究 是 否 可 使 用 这 些 文 件 的 最 新 版 本 。凡 是 不 注 日 期 的 引 用 文件 , 其 最 新 版 本 适 用 于 本 部 分 。 GB4053.3 固 定 式 钢 梯 及 平 台 安 全 要 求 第 3 部 分 : 工 业 防 护 栏 杆 及 钢 平 台 GB50057 建 筑 物 防 雷 设 计 规 范 GB50205 钢 结 构 工 程 施 工 质 量 验 收 规 范 3 术 语 和 定 义 下 列 术 语 和 定 义 适 用 于 本 部 分 。 3.1 固 定 式 钢 直 梯 fixed steel ladder 永 久性 安 装 在建 筑 物 或 设 备上,与水平 面 成 75°~90°倾角主要 构 件 为 钢 材 制 造 的直 梯 ( 见图1) 。 3.2 梯 梁( 梯 框) stile(rail) 用 来安 装 踏棍或 其 它横向承载件 的 梯 子侧边构 件 。 3.3 踏棍 rung 供 使 用 者 上下 梯 时 脚 踩 踏的 梯 子构 件 。 3.4 护 笼 ( 安 全 护 笼 ) cage( cage guard) 安 装 在梯 梁或 固 定 结 构 上, 封 闭 梯 子周 围 攀 登 空 间 防 止 人 员 坠 落 的 框架 结 构 。 3.5 支 撑 support 用 来将 钢 直 梯 固 定 在建 筑 物 或 设 备上的 构 件 。 3.6 直 梯 ) 扶 手 handrail 钢 直 梯 顶 端 供 攀 登 者 手 握 的 构 件 。 3.7 内 侧净 宽 度 inside clear...

1、当您付费下载文档后,您只拥有了使用权限,并不意味着购买了版权,文档只能用于自身使用,不得用于其他商业用途(如 [转卖]进行直接盈利或[编辑后售卖]进行间接盈利)。
2、本站所有内容均由合作方或网友上传,本站不对文档的完整性、权威性及其观点立场正确性做任何保证或承诺!文档内容仅供研究参考,付费前请自行鉴别。
3、如文档内容存在违规,或者侵犯商业秘密、侵犯著作权等,请点击“违规举报”。

碎片内容

084固定式钢梯及平台安全要求第一部分:钢直梯(GB4053.12009)

小辰3+ 关注
实名认证
内容提供者

出售各种资料和文档

确认删除?
VIP
微信客服
  • 扫码咨询
会员Q群
  • 会员专属群点击这里加入QQ群
客服邮箱
回到顶部