电脑桌面
添加小米粒文库到电脑桌面
安装后可以在桌面快捷访问

小户型平面设计方案VIP免费

小户型平面设计方案_第1页
1/19
小户型平面设计方案_第2页
2/19
小户型平面设计方案_第3页
3/19
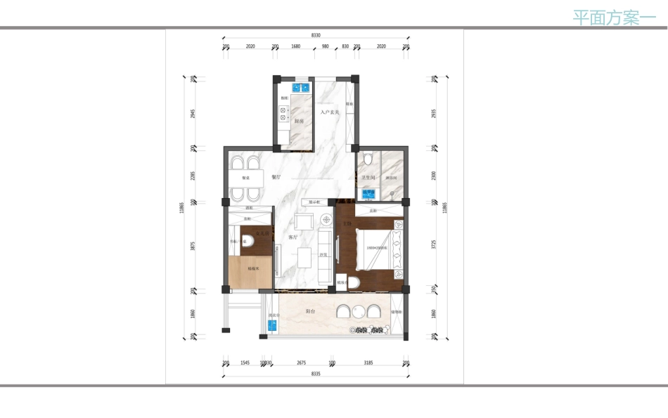
平面方案一平面方案一将入户右手边这一块空间利用起来做为厨房,充分利用好这块空间。厨房平面方案一入户左手边做满整面墙的鞋柜,与厨房中间的隔墙上做正衣镜,功能更加丰富,而且鞋柜的储物空间很多。入户平面方案一客厅原先的隔墙往客厅这边稍微移了一部分,在沙发旁边做了一个展示柜,增加储物空间,也会形成客厅的单独性和整体性。客厅平面方案一现在的餐厅和女儿房的中间直接做成酒柜,充分利用空间,让餐厅更加舒适,功能性也增加了。餐厅平面方案一女儿房是原先厨房扩大一些,有窗户,采光也得到满足,女儿房采用榻榻米的方式来做床,让空间得到充分利用起来,也会让女儿房更加整体性。女儿房平面方案一卫生间采用干湿分区的做法,会更加舒适一些。主卧平面方案一主卧采用1800*2000的床,并且在电视墙的一段放置梳妆台,功能得到满足。主卧平面方案一阳台部分一边做为洗衣台一边做为储物柜,让功能更加多,生活也会更加舒适,再放上一组休闲桌椅,周末在阳台上晒晒太阳喝喝茶很舒服。阳台平面方案二平面方案二入户入户左手边做满整面墙的鞋柜,与厨房中间的隔墙上做正衣镜,功能更加丰富,而且鞋柜的储物空间很多。平面方案二储物间入户右手边隔出来单独做一个储物间来使用,家里的一些杂物都可以放进去。平面方案二餐厅餐厅和厨房中间的隔墙直接做为酒柜,功能更加满足。平面方案二厨房将厨房外面的位置现浇隔板出去,做为生活烫阳台,洗衣这些功能直接放在生活阳台,功能分区更加明确。平面方案二客厅客厅空间变小,划分一部分空间给女儿房,但客厅的舒适性和功能性都会保证。平面方案二女儿房女儿房将一部分客厅空间和外面阳台的空间,和客厅这边墙上部分做半透明玻璃来满足客厅这边的采光问题,让客厅采光得到保证,采用榻榻米的方式做为床,更加整体性。平面方案二主卧主卧将阳台部分做为衣帽间,靠近窗户这边的柜子做为矮柜,不阻碍采光和通风,让主卧的功能更加好,更加舒适。平面方案二卫生间卫生间采用干湿分区的做法,会更加舒适一些。

1、当您付费下载文档后,您只拥有了使用权限,并不意味着购买了版权,文档只能用于自身使用,不得用于其他商业用途(如 [转卖]进行直接盈利或[编辑后售卖]进行间接盈利)。
2、本站所有内容均由合作方或网友上传,本站不对文档的完整性、权威性及其观点立场正确性做任何保证或承诺!文档内容仅供研究参考,付费前请自行鉴别。
3、如文档内容存在违规,或者侵犯商业秘密、侵犯著作权等,请点击“违规举报”。

碎片内容

小户型平面设计方案

确认删除?
VIP
微信客服
  • 扫码咨询
会员Q群
  • 会员专属群点击这里加入QQ群
客服邮箱
回到顶部