电脑桌面
添加小米粒文库到电脑桌面
安装后可以在桌面快捷访问

典型设备配管VIP免费

典型设备配管_第1页
1/87
典型设备配管_第2页
2/87
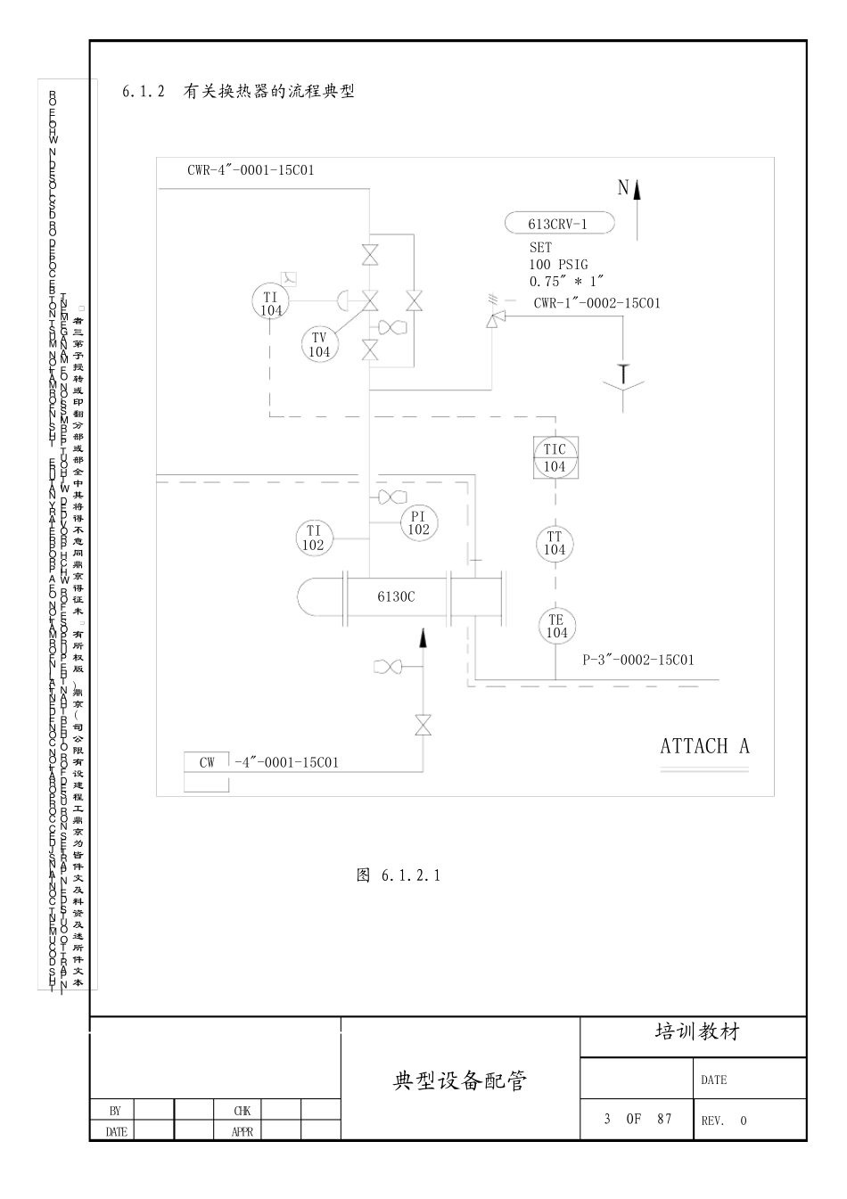
典型设备配管_第3页
3/87
THIS DOCUMENT CONTAINS JDEC CORPORATION CONFIDENTIAL INFORMATION OF A PROPRIETARY NATURE. THIS INFORMATION MUST NOT BE COPIED OR DISCLOSED IN WHOLE ORIN PART TO OUTSIDE IN PARTIES NOR USED FOR OTHER THAN THE PURPOSE FOR WHICH PROVIDED WITHOUT PERMISSION OF MANAGEMENT. 本文件所述及资料及文件皆为京鼎工程建设有限公司 (京鼎) 版权所有未征得京鼎同意不得将其中全部或部分翻印或转授予第三者 培训教材 DATE BY CHK DATE APPR 典型设备配管 1 OF 87 REV. 0 典型设备配管 本章共分以下几个专题 1换热器的配管 2塔的配管 3泵的配管 4管廊的配管 5管区的配管 6加热炉的配管 THIS DOCUMENT CONTAINS JDEC CORPORATION CONFIDENTIAL INFORMATION OF A PROPRIETARY NATURE. THIS INFORMATION MUST NOT BE COPIED OR DISCLOSED IN WHOLE ORIN PART TO OUTSIDE IN PARTIES NOR USED FOR OTHER THAN THE PURPOSE FOR WHICH PROVIDED WITHOUT PERMISSION OF MANAGEMENT. 本文件所述及资料及文件皆为京鼎工程建设有限公司 (京鼎) 版权所有未征得京鼎同意不得将其中全部或部分翻印或转授予第三者 培训教材 DATE BY CHK DATE APPR 典型设备配管 2 OF 87 REV. 0 6.1 换热器的配管 6.1.1 换热器的分类 1 AKV CHANNEL END - A. SHELL - K. COVER - U 2 一般配管图所需表示的内容设备大致外形ANCHOR BOLT, FOUNDATION NOZZLE定位 TUBE & SHELL TYPE EXCHANGERS 123 图 6.1.1 REMOVABLE CHANNEL AND COVERBONNET(INTEGRAL COVER)INTEGRAL WITH TUBE SHEET REMOVABLE COVERSPECIAL HIGH PRESSURE CLOSURESONE PASS SHELL 2 PASS SHELLWITH LONGITUDINAL BAFFLESPLIT FLOWDOUBLE SPLIT FLOWDIVIDE FLOWKETTLE TYPE REBOILER FIXED TUBE SHEETLIKE 'A' STATIONARY HEAD FIXED TUBE SHEETLIKE 'B' STATIONARY HEAD FIXED TUBE SHEETLIKE 'C' STATIONARY HEADOUTSIDE PACKEDFLOATING HEAD FLOATIING HEADWITH BACKING DEVICEPULL-THROUGHFLOATING HEADU TUBE BUNDLESTATIONARY HEAD TYPESSHELL TYPESREAD HEAD TYPESTHIS DOCUMENT CONTAINS JDEC CORPORATION CONFIDENTIAL INFORMATION OF A PROPRIETARY NATURE. THIS ...

1、当您付费下载文档后,您只拥有了使用权限,并不意味着购买了版权,文档只能用于自身使用,不得用于其他商业用途(如 [转卖]进行直接盈利或[编辑后售卖]进行间接盈利)。
2、本站所有内容均由合作方或网友上传,本站不对文档的完整性、权威性及其观点立场正确性做任何保证或承诺!文档内容仅供研究参考,付费前请自行鉴别。
3、如文档内容存在违规,或者侵犯商业秘密、侵犯著作权等,请点击“违规举报”。

碎片内容

典型设备配管

确认删除?
VIP
微信客服
  • 扫码咨询
会员Q群
  • 会员专属群点击这里加入QQ群
客服邮箱
回到顶部