电脑桌面
添加小米粒文库到电脑桌面
安装后可以在桌面快捷访问

墙体构造设计VIP免费

墙体构造设计_第1页
1/9
墙体构造设计_第2页
2/9
墙体构造设计_第3页
3/9
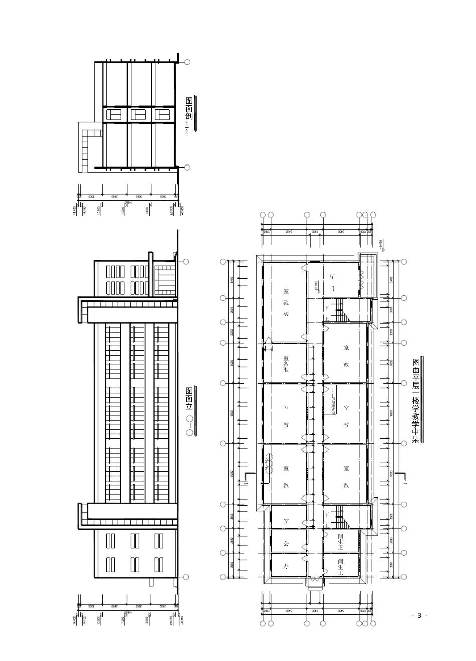
- 1 - 墙体构造设计 一、目的要求: 通过本设计掌握:①墙段与洞口的尺寸如何确定;②墙身的剖面组成及构造方式。 二、设计条件 1、根据某中学教学楼平、立、剖面图进行设计,见图题目所示。(也可根据不同的地区自选) 2、采用砖墙承重,砖块尺寸240×115×53,内墙厚均为240mm,外墙365mm,勒脚材料与砖墙同。若需加设大梁承重,支承大梁的砖墙可加壁柱。 3、采用预制钢筋混凝土楼板、大梁、过梁。 4、采用木门窗,窗洞大小按窗地比计算(教室窗地比为1/4,其他用房为1/6-1/8)。 5、内外墙均做抹灰饰面。 6、楼地面做法学生自定。 7、室内地坪标高为±0.000,室外标高自定。 三、设计内容和深度 本设计用3#图纸一张。完成下列内容: 1、底层局部平面图1:50 (1)画出纵横定位轴线和轴线圈,定义轴线号。 (2)标注轴线尺寸、洞口尺寸、内部墙段尺寸。 (3)按采光要求及立面设计的美观要求开设窗洞口。 (4)在外墙处标示散水,标注散水宽度及坡度。设有明沟或 暗 沟的应 同时 标注。 (5)画出门扇 (开启 方向 一般 按内门内开、外门外开)。 (6)标注室内外地面标高。 (7)选择 一处窗洞口进行详 图设计并 标注详 图引 出符 号。 (8)标注图名 及比例 。 2、墙身剖面节 点 详 图1:10 (1)按平面图上 详 图索 引 位置 画三个 节 点 详 图(墙脚及散水、窗台 、过梁、圈梁),布 图时要求按顺 序 将 1、2、3 节 点 布 置 在一条垂 直 线上 。 (2)标注各 点 控 制标高(防 潮 层、窗台 顶 面、过梁底、楼层、地坪等 )。 (3)画出定位轴线及轴线圈。 (4)按构造层次 表 示内外抹灰、踢 脚板、楼板、地坪、窗框 等 处的关 系 ,如画窗台 板、窗套 、贴 脸 板等 构件。 (5)按制图规 范 表 示材料符 号并 标注各 节 点 处材料、尺度及做法。 (6)标注散水(明沟、暗 沟)和窗台 等 处尺度、坡度、排 水方向 。 (7)标注详 图名 及比例 。 四 、设计参 考 资 料 1、门、窗洞口参 考 尺寸: 窗洞宽:600、1000、1200、1500、1800、2100、2400、3000、3300 窗洞高:700、1000、1200、1500、1800、2100、2400、3000 门洞宽:700、800、900、1000、1200、1500、1800、2400、3000、3300 门洞高:2000、2400、2700、3000 2、钢筋混凝土楼板、大梁和过梁的断 面尺寸,见图预制楼板、大梁、过梁参 考 尺寸所示...

1、当您付费下载文档后,您只拥有了使用权限,并不意味着购买了版权,文档只能用于自身使用,不得用于其他商业用途(如 [转卖]进行直接盈利或[编辑后售卖]进行间接盈利)。
2、本站所有内容均由合作方或网友上传,本站不对文档的完整性、权威性及其观点立场正确性做任何保证或承诺!文档内容仅供研究参考,付费前请自行鉴别。
3、如文档内容存在违规,或者侵犯商业秘密、侵犯著作权等,请点击“违规举报”。

碎片内容

墙体构造设计

确认删除?
VIP
微信客服
  • 扫码咨询
会员Q群
  • 会员专属群点击这里加入QQ群
客服邮箱
回到顶部