电脑桌面
添加小米粒文库到电脑桌面
安装后可以在桌面快捷访问

幕墙优化建议报告VIP专享VIP免费

幕墙优化建议报告_第1页
1/16
幕墙优化建议报告_第2页
2/16
幕墙优化建议报告_第3页
3/16
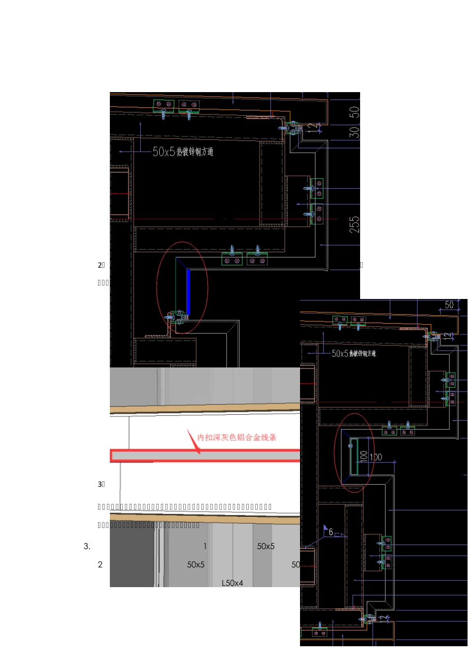
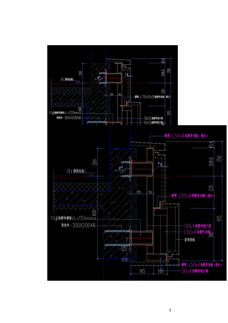
1 一、成本优化方面: 1. 70x50x5 镀锌钢管立柱需提供计算书,以便我司复核校对,同时提资未明确幕墙地面粗糙度,我司暂按 B 类地区验算,南北面大面区可优化为 80*40x4,墙角区的可采用 80*60x4(90x50x4米重相同,截面特性更好); 2. 凹槽段深灰色铝单板做法建议考虑如下方案: 1、 铝板厚度调整为2.5m m ; 2 2、100mm 段深灰色铝板与银白色铝板一体加工,铝板喷涂做双色板,节约一道横向通长横梁:L50x5 热镀锌角钢(通长); 3、 凹槽段深灰色铝板建议仅通过外扣深灰色铝合金线条来实现效果,层间银白色铝板一体加工,凹槽部位水平无胶缝,节约一道横向通长横梁横梁:L50x5 热镀锌角钢(通长); 3. 层间铝板造型龙骨优化建议:1、内侧主龙骨 50x5 热镀锌钢方通建议采用 50x4 热镀锌钢方通;2、外侧铝板外凸造型的 50x5 热镀锌钢方通建议采用 50x4 热镀角钢;3、横梁:L75x50x5 热镀锌角钢(通长)建议采用横梁:L50x4 热镀锌角钢(通长); 3 提资设计 优化建议 4. 分户墙部位栏杆玻璃内侧背衬板固定角码与铆钉外露,此做法美观性较差,建议玻璃采用磨砂处理,同时 2 m m 背衬板应明确是单面喷涂还是双面喷涂; 4 5. JD15/16 节点设计层间提高立柱采用 2 块埋件连接,考虑实际构造需要,此类位置可采用一块埋件,如下图: 5 提资设计 优化建议 6. JD32/33,窗侧面铝板,JD02 造型铝板厚度建议调整为 2.5m m ; 6 7. DT14 玻璃幕墙与铝板交接部位建议取消竖向铝合金装饰线条(同时铝合金线条存在安装困难问题),铝板与玻璃入槽交接,外侧造型铝合金型材外扣,减少一道铝合金立柱和竖向铝合金线条; 提资设计 7 优化建议 8. 10 号槽钢连接件建议调整为 100x63x7 镀锌钢角码,米重更轻,对应埋板规格也可相对调为250*200*8; 8 9. 栏杆分格宽度约为 1.2 米,跨中部位预埋板可以考虑取消或简化为膨胀螺栓; 10. 铝板雨蓬加强筋建议采用普通铝合金加强筋及焊接铆钉连接即可; 11. DT10 玻璃幕墙底部收口节点镀锌钢板建议直接与混泥土垫层固定,底部铝板龙骨 90x50x5 钢管可调整为 L50X4 镀锌角钢; 9 12. 100*15m m 栏杆钢板立柱立柱可优化为 12m m ; 10 二、合理性、安全性方面: 1. 南面飘窗部位铝板与阳台玻璃栏杆交接处高于阳台翻边的 400m m高铝板端头如何处理需明确; 2. 深灰色铝板交接处铝板安装节点需明确; 1 1 3. JD38 ...

1、当您付费下载文档后,您只拥有了使用权限,并不意味着购买了版权,文档只能用于自身使用,不得用于其他商业用途(如 [转卖]进行直接盈利或[编辑后售卖]进行间接盈利)。
2、本站所有内容均由合作方或网友上传,本站不对文档的完整性、权威性及其观点立场正确性做任何保证或承诺!文档内容仅供研究参考,付费前请自行鉴别。
3、如文档内容存在违规,或者侵犯商业秘密、侵犯著作权等,请点击“违规举报”。

碎片内容

幕墙优化建议报告

小辰5+ 关注
实名认证
内容提供者

出售各种资料和文档

确认删除?
VIP
微信客服
  • 扫码咨询
会员Q群
  • 会员专属群点击这里加入QQ群
客服邮箱
回到顶部