电脑桌面
添加小米粒文库到电脑桌面
安装后可以在桌面快捷访问

关于图纸-图纸规范-很实用VIP免费

关于图纸-图纸规范-很实用_第1页
1/14
关于图纸-图纸规范-很实用_第2页
2/14
关于图纸-图纸规范-很实用_第3页
3/14
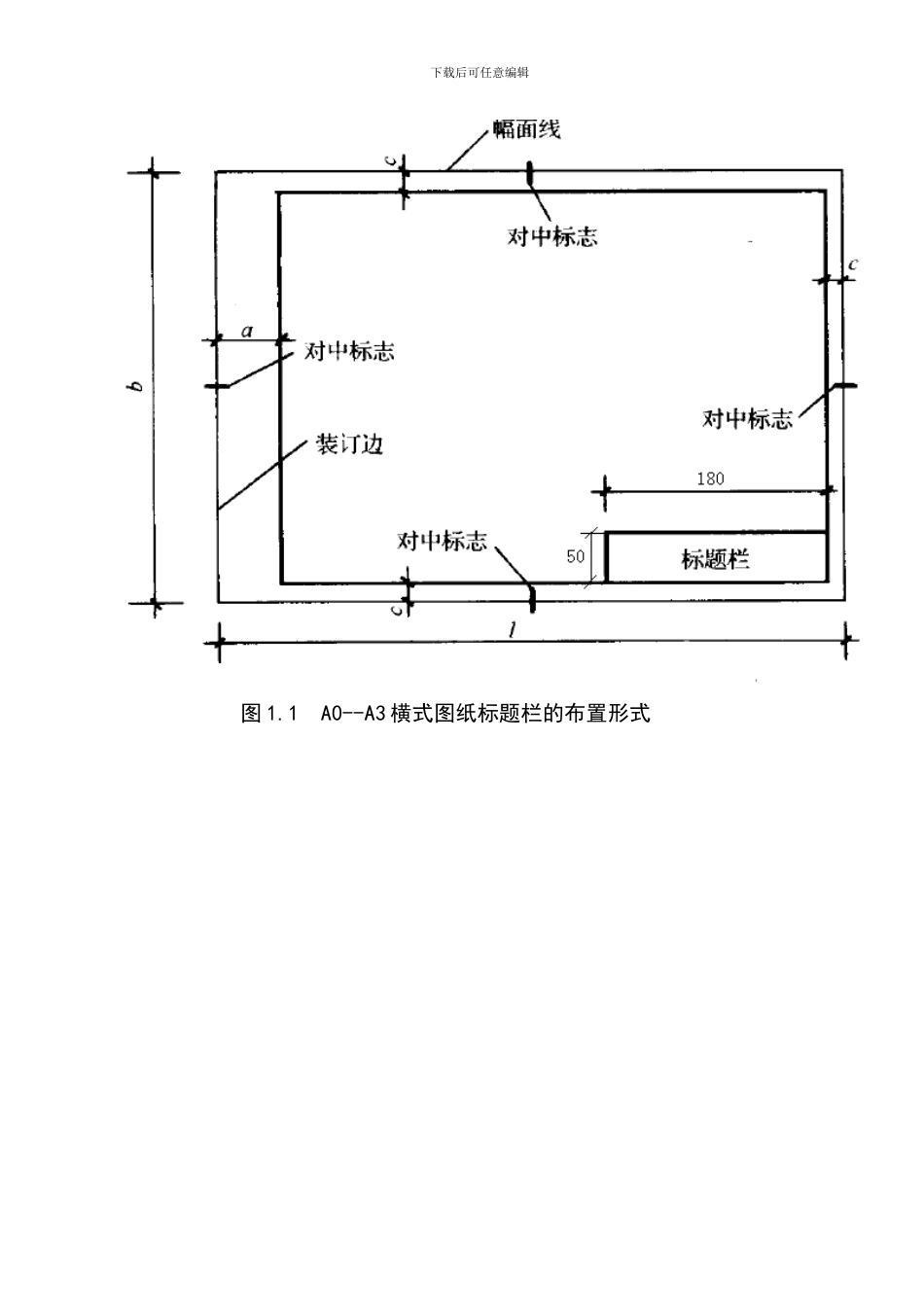
下载后可任意编辑1 图纸幅面规格与图纸编排顺序 1.1图 纸 幅 面 1.1.1 图纸幅面及图框尺寸,应符合表 1.1、1.2 规定及图 1.1~图1. 3 的格式。表 1.1 幅面及图框尺寸(mm)幅面代号 尺寸代号 A0 A1 A2 A3 A4 b×l 841×1189 594×841 420×594 297×420 210×297 c 10 5 a 25 1.1.2 需要微缩复制的图纸,其一个边上应附有一段准确米制尺度,四个边上均附有对中标志,米制尺度的总长应为 100mm,分格应为 10mm。对中标志应画在图纸各边长的中点处,线宽应为 0.35mm,伸入框内应为5mm。图纸的短边一般不应加长,长边可加长,但应符合表 1.2 规定。表 1.2 图纸长边加长尺寸(mm)幅面尺寸 短边尺寸长边尺寸 长边加长后尺寸 A0 8411189 1486 1635 1783 1932 2080 2230 2378 A1 594841 1051 1261 1471 1682 1892 2102 A2 420594 743 891 1041 1189 1338 1486 1635 A2 420594 1783 1932 2080 A3 297420 630 841 1051 1261 1471 1682 1892 注:有特别需要的图纸,可采纳b×l为841mm×891mm与1189mm×1261mm的幅面。 1.1.3 图纸以短边作为垂直边称为横式,以短边作为水平边称为立式。一般 A0~A3 图纸宜横式使用;必要时,也可立式使用。 1.1.4 一个工程设计中,每个专业所使用的图纸,一般不宜多于两种幅面,不含目录及表格所采纳的 A4 幅面。1.2 标题栏与会签栏 1.2.1 图纸的标题栏及装订边的位置,应符合下列规定: 1 、横式使用的图纸,应按图 1.1 的形式布置。下载后可任意编辑 图 1.1 A0--A3 横式图纸标题栏的布置形式下载后可任意编辑2、 立式使用的图纸,应按图 1. 2、图 1.3 的形式布置。图 1.2 A0--A3 竖式图纸标题栏的布置形式下载后可任意编辑图 1.3 A4 竖式图纸标题栏的布置形式1.2.2 标题栏详见各图纸 CAD 图解。1.3 图纸编排顺序1.3.1 工程图纸应按专业顺序编排。安设报告一般为周边关系图、总图[(11)HDLY-02JFC 总 01]、工艺流程图[(11)HDLY-02JFC 艺 02]、设备布置图[(11)HDLY-02JFC 设 03]、消防设施平面布置图[(11)HDLY-02JFC 消 04]、防雷联合接地干线图[(11)HDLY-02JFC 防 05]、爆炸危险区域划分图[(11)HDLY-02JFC 爆 06]、可燃气体报警器布置图[(11)HDLY-02JFC 警 07]。 1.3.2 各专业的图纸,应该按图纸内容的主次关系、逻辑关系,有序排列。2 图 纸2.1.0 周边关系和建设单位...

1、当您付费下载文档后,您只拥有了使用权限,并不意味着购买了版权,文档只能用于自身使用,不得用于其他商业用途(如 [转卖]进行直接盈利或[编辑后售卖]进行间接盈利)。
2、本站所有内容均由合作方或网友上传,本站不对文档的完整性、权威性及其观点立场正确性做任何保证或承诺!文档内容仅供研究参考,付费前请自行鉴别。
3、如文档内容存在违规,或者侵犯商业秘密、侵犯著作权等,请点击“违规举报”。

碎片内容

关于图纸-图纸规范-很实用

确认删除?
VIP
微信客服
  • 扫码咨询
会员Q群
  • 会员专属群点击这里加入QQ群
客服邮箱
回到顶部