电脑桌面
添加小米粒文库到电脑桌面
安装后可以在桌面快捷访问

外幕墙落地脚手架施工方案VIP免费

外幕墙落地脚手架施工方案_第1页
1/16
外幕墙落地脚手架施工方案_第2页
2/16
外幕墙落地脚手架施工方案_第3页
3/16
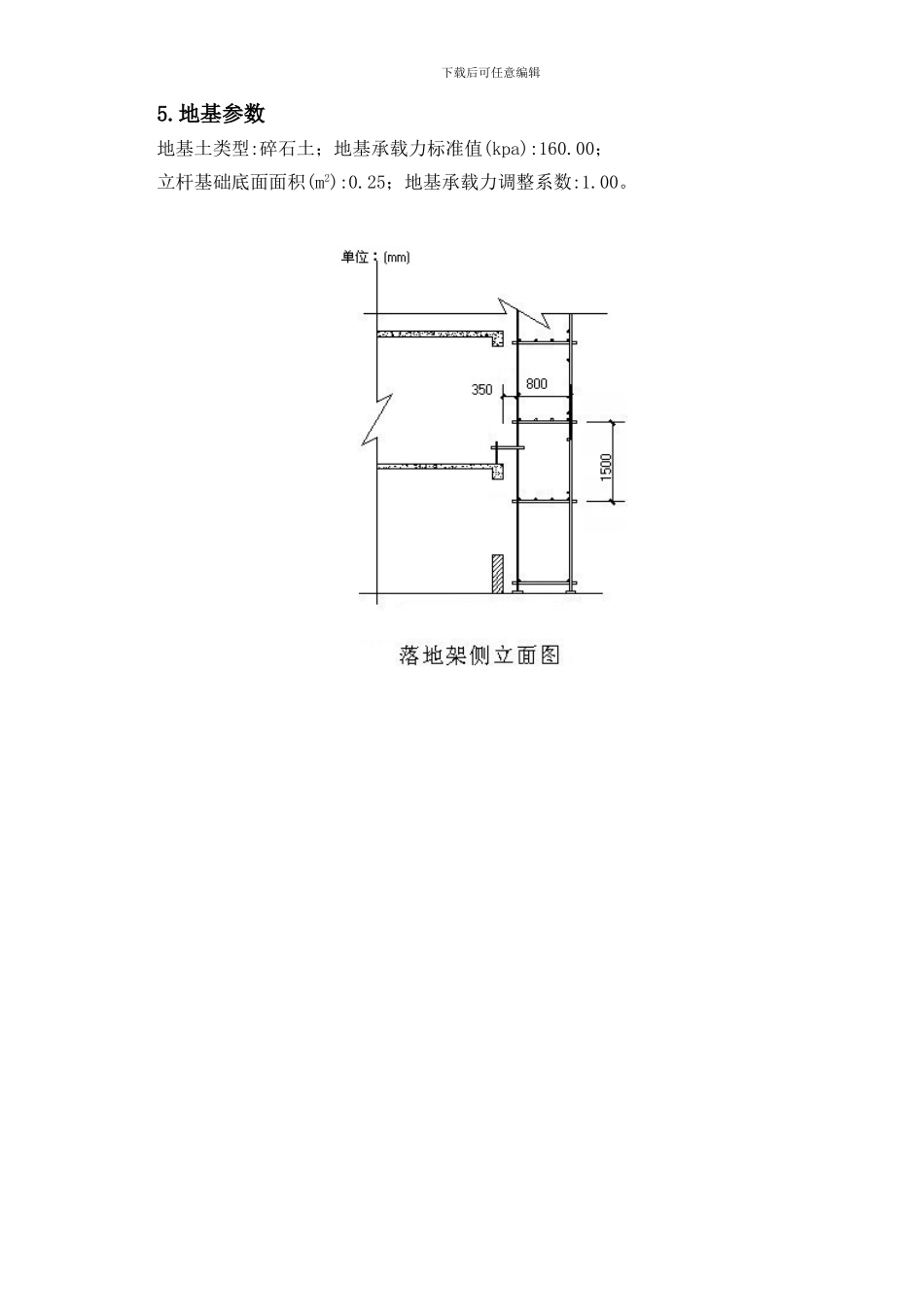
下载后可任意编辑外幕墙落地脚手架施工方案一、工程概况工程名称:苏州红星美凯龙家居生活广场园区店项目工程工程地点:娄葑北区扬华路北、扬帆路东、扬青路南勘察单位:苏州市城市建筑设计院有限责任公司设计单位:苏州苏园建筑设计有限公司建设单位:苏州工业园区中翔美通仓储销售有限公司监理单位:苏州联信工程管理咨有限公司施工单位:江苏省建筑工程集团有限公司本工程位于娄葑北区扬华路北、扬帆路东、扬青路南处,为新建带一层地下车库的 5 层商场。北面为扬青路,与博洛尼隔道相望,南侧临靠东明装饰城,西面紧靠主干道——312 国道,东侧靠近捷普绿點企业厂区,独特的地理优势,超强的人文氛围,使其建成后将成工业园区又一道靓丽的风景线。拟建本工程占地面积约 54335.5 平方米,建筑面积约为 162110 平方米(其中地下车库 40980 平方米),场地东西长 333.9 米、南北宽约 150.5 米,场地平面形状呈平行四边形,建筑物平面为长方形,桩筏基础,框剪结构,5 层带一层地下车库,檐高 29.2 米,地下室层高 5.2 米,标准层高 5.1 米,外墙主要为幕墙及花岗石装修,内墙为涂料,顶棚为涂料及石膏板吊顶,地面主要为细石砼、大理石、玻化砖地面等。二、施工准备及施工条件1、 熟悉建筑工程施工图,了解建筑物构造形式。2、 清除脚手架搭设四周的障碍物,分层夯实基础,并做好排水措施。3、 对脚手架搭拆施工班组进行安全、技术交底,交底双方均应签字。4、 脚手架必须检查验收合格后方能使用。三、主要材料要求1、 钢管应符合 GB/700 标准,表面应光滑,不得有折叠、裂缝、搭焊等缺陷存在,不得有超过壁厚允许偏差值的划道、刮伤、焊缝错位、烧伤结疤等缺陷存在,钢管表面锈蚀的深度<0.50mm,钢管弯曲<12mm。脚手架钢管严禁用电焊或氧焊切割,严禁打孔。剪刀撑漆成黑黄警戒色。2、 扣件质量应符合《钢管脚手架扣件》(JGJ22-85)均规定对重复使用的扣件应及时检查,有裂缝、变形的扣件严禁使用。滑丝的螺栓必须更换,垫圈必须齐全,表面应涂油漆防腐,扣件螺栓拧紧,扭力矩达 65N.M 时,铸铁扣件不得发生破坏。下载后可任意编辑四、主要机具要求 主要机具应有扳手、力矩扳手、工具袋套、水准仪、经纬仪、水平尺、线锤等。五、脚手架计算书扣件式钢管落地脚手架的计算依据《建筑施工扣件式钢管脚手架安全技术法律规范》(JGJ130-2001)、《建筑地基基础设计法律规范》(GB 50007-2024)、《建筑结构荷载法律规范》...

1、当您付费下载文档后,您只拥有了使用权限,并不意味着购买了版权,文档只能用于自身使用,不得用于其他商业用途(如 [转卖]进行直接盈利或[编辑后售卖]进行间接盈利)。
2、本站所有内容均由合作方或网友上传,本站不对文档的完整性、权威性及其观点立场正确性做任何保证或承诺!文档内容仅供研究参考,付费前请自行鉴别。
3、如文档内容存在违规,或者侵犯商业秘密、侵犯著作权等,请点击“违规举报”。

碎片内容

外幕墙落地脚手架施工方案

办公文档专营+ 关注
实名认证
内容提供者

大量办公文档,欢迎选择

确认删除?
VIP
微信客服
  • 扫码咨询
会员Q群
  • 会员专属群点击这里加入QQ群
客服邮箱
回到顶部