电脑桌面
添加小米粒文库到电脑桌面
安装后可以在桌面快捷访问

建筑设计新农村超漂亮户型图模板

建筑设计新农村超漂亮户型图模板_第1页
1/74
建筑设计新农村超漂亮户型图模板_第2页
2/74
建筑设计新农村超漂亮户型图模板_第3页
3/74
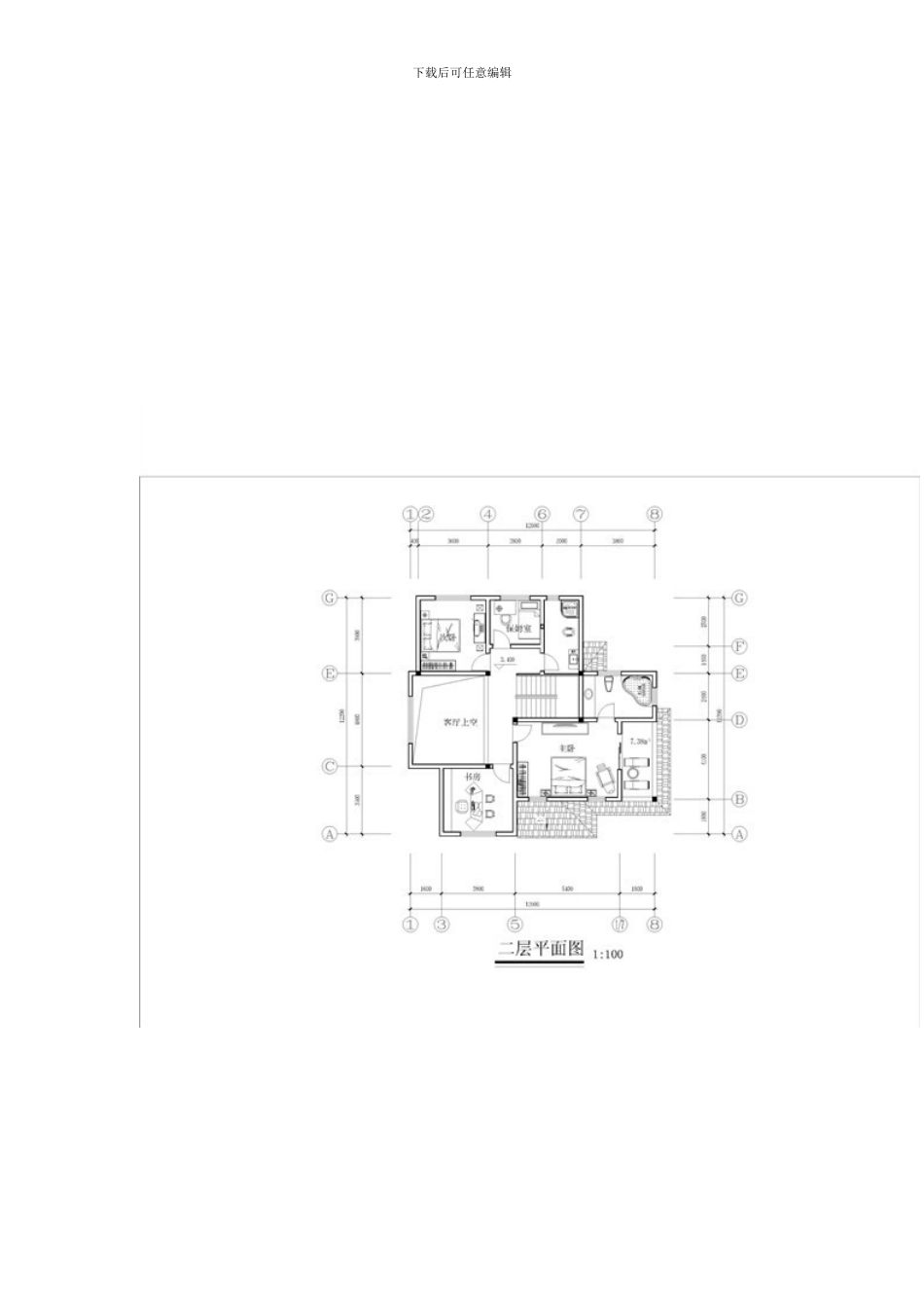
下载后可任意编辑现在跟大家介绍几款新农村户型图, 在农村有地的, 手头上有二十万要建房的( 不含精装修) , 基本上下面的户型是能够建造的。哈哈。 实现从农村包围城市, 农村的豪宅是第一步! 户型参考造价 1、 毛胚房 砖混 400-1000/㎡, 框架 600-1600/㎡ 2、 毛胚房+精装修 砖混 1200-3000 元/㎡, 框架 1500-4000 元/㎡ 当然精装修只是说根据一般的好的装修, 奢华的装修就不是这个价格了, 以上价格 不包括前后花园栽花种草等费用。 下面的户型, 一般只给了建筑图, 没有结构图, 假如施工时候不清楚配筋, 能够留言询问。一般框架结构, 基础好的, 能够采纳天然地基, 不好的, 就要做整板基础或桩基础, 一般板宜采纳双层配筋, 现浇, 屋面板可不用抗渗混凝土, 也能够不做防水, 但屋面板要做好一点, 瓦要盖好点。 以下的户型只是本人收集的一部分, 我收集了几十种户型, 压缩包有 20M, 有相当一部分有 CAD 图, 不过很多都是建筑图, 配筋自己要考虑。 下载后可任意编辑一、 独栋别墅户型 农村的暴发户, 链子很粗的新贵, 能够考虑这样的户型。大气! 户型一 提高幸福指数的关键 下载后可任意编辑下载后可任意编辑下载后可任意编辑下载后可任意编辑下载后可任意编辑下载后可任意编辑下载后可任意编辑下载后可任意编辑下载后可任意编辑 下载后可任意编辑 户型二 一座豪宅旺三代( (*^__^*) 嘻嘻……, 这么像房产公司的广告? ! ) 下载后可任意编辑下载后可任意编辑下载后可任意编辑下载后可任意编辑下载后可任意编辑下载后可任意编辑二、 家族户型 下载后可任意编辑 家中人丁兴旺的, 能够考虑这种联排户型。要是前面有口池塘, 凉风习习, 池塘的知了叽叽喳喳叫着, 能够给后代一个不错的童年想象。 下载后可任意编辑 三、 让城里人留口水的户型( 独栋别墅型) 下载后可任意编辑 不用说了, 在城市里花 50 万买一百平米, 在农村能够建一座这样的别墅, 再买一台车, 那就是真正的优质生活。鸟语花香, 莺飞燕舞, 卧听风雨声, 蟀嗡入梦来, 怀抱娇妻, 多美的意境啊! 当然这个户型的外立面还是有可改进的地方, 比如采纳圆拱窗比矩形窗好看一点。下载后可任意编辑 四、 有用经济型下载后可任意编辑 不用说, 这样的户型实在经济, 农村的施工人员看一眼图纸就能鼓捣出来, 不用请专门的施工人员, 呵呵。摘菜东篱下, 悠然问犬吠, 这时一种怡然的生活态度! 这种平屋顶造价...

1、当您付费下载文档后,您只拥有了使用权限,并不意味着购买了版权,文档只能用于自身使用,不得用于其他商业用途(如 [转卖]进行直接盈利或[编辑后售卖]进行间接盈利)。
2、本站所有内容均由合作方或网友上传,本站不对文档的完整性、权威性及其观点立场正确性做任何保证或承诺!文档内容仅供研究参考,付费前请自行鉴别。
3、如文档内容存在违规,或者侵犯商业秘密、侵犯著作权等,请点击“违规举报”。

碎片内容

建筑设计新农村超漂亮户型图模板

确认删除?
VIP
微信客服
  • 扫码咨询
会员Q群
  • 会员专属群点击这里加入QQ群
客服邮箱
回到顶部