电脑桌面
添加小米粒文库到电脑桌面
安装后可以在桌面快捷访问

TC6013塔式起重机使用说明书

TC6013塔式起重机使用说明书_第1页
1/45
TC6013塔式起重机使用说明书_第2页
2/45
TC6013塔式起重机使用说明书_第3页
3/45
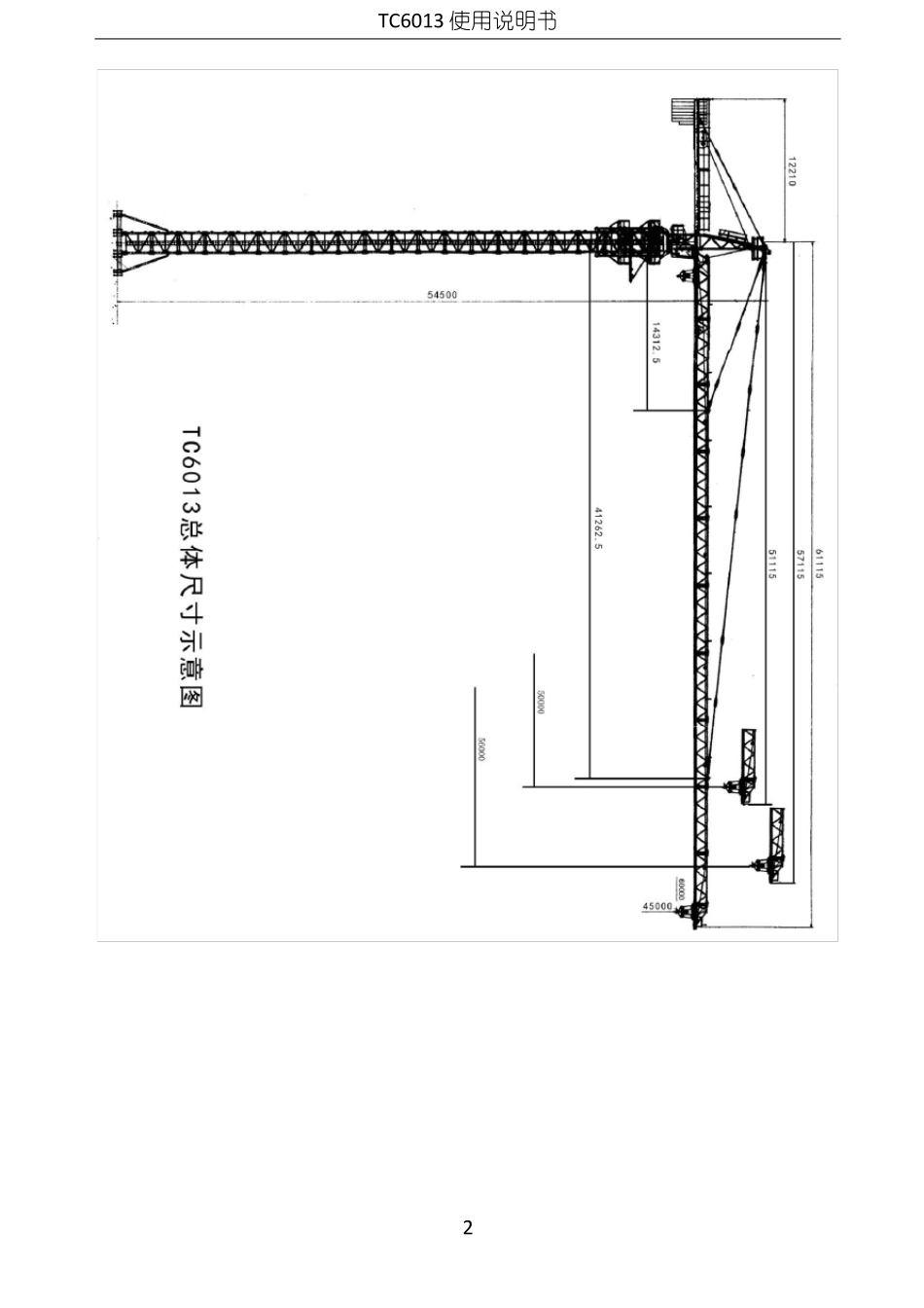
TC6013 使用说明书 TC6013 塔式起重机使用说明书目录1、 概述……………………………………………………………………………………42、 起重机技术性能………………………………………………………………………42.1 整机外形图……………………………………………………………………… 42.2 起重性能表……………………………………………………………………… 42.3 起重特性曲线…………………………………………………………………… 52.4 技术性能表……………………………………………………………………… 62.5 主要技术数据…………………………………………………………………… 63、起重机构造简述………………………………………………………………………83.1 总体布置………………………………………………………………………… 83.2 金属结构部分…………………………………………………………………… 83.3 工作机构………………………………………………………………………… 133.4 绕绳系统………………………………………………………………………… 154、起重机的安装…………………………………………………………………………164.1 组装注意事项…………………………………………………………………… 164.2 地基基础………………………………………………………………………… 174.3 接地装置………………………………………………………………………… 174.4 塔机组装………………………………………………………………………… 175、安全保护装置及调试…………………………………………………………………256、起重机的拆卸…………………………………………………………………………266.1 拆卸注意事项…………………………………………………………………… 266.2 拆卸后的注意事项……………………………………………………………… 277、起重机的使用…………………………………………………………………………287.1 投入使用前的工作……………………………………………………………… 287.2 安全操作规程…………………………………………………………………… 297.3 维修及保养……………………………………………………………………… 307.4 主要故障及排除方法…………………………………………………………… 328、附图、附表……………………………………………………...

1、当您付费下载文档后,您只拥有了使用权限,并不意味着购买了版权,文档只能用于自身使用,不得用于其他商业用途(如 [转卖]进行直接盈利或[编辑后售卖]进行间接盈利)。
2、本站所有内容均由合作方或网友上传,本站不对文档的完整性、权威性及其观点立场正确性做任何保证或承诺!文档内容仅供研究参考,付费前请自行鉴别。
3、如文档内容存在违规,或者侵犯商业秘密、侵犯著作权等,请点击“违规举报”。

碎片内容

TC6013塔式起重机使用说明书

您可能关注的文档

确认删除?
VIP
微信客服
  • 扫码咨询
会员Q群
  • 会员专属群点击这里加入QQ群
客服邮箱
回到顶部