电脑桌面
添加小米粒文库到电脑桌面
安装后可以在桌面快捷访问

屋面排水与节点设计说明

屋面排水与节点设计说明_第1页
1/10
屋面排水与节点设计说明_第2页
2/10
屋面排水与节点设计说明_第3页
3/10
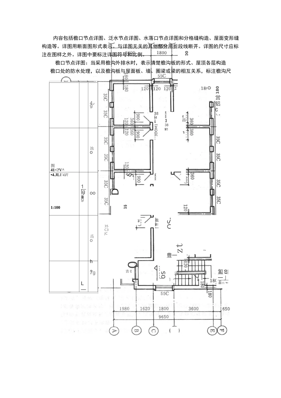
4 屋面排水及节点设计学习目标1. 掌握屋顶的排水方式和要求、坡度的形成方式。2. 掌握屋面防水的种类、构造层次和细部构造做法。3. 熟悉屋面排水设计的方法和步骤。4. 熟悉屋顶排水平面图和节点详图的识读,增强图纸表达能力。学习重点1. 屋顶的排水方式的选择和平屋顶排水方案的设计。2. 屋面柔性防水、刚性防水的构造层次和细部构造做法3. 屋顶排水平面图和节点详图的主要内容和尺寸标注。4.1 设计任务书4.1.1设计题目及设计条件办公楼屋面排水设计办公楼为六层砖混结构,楼板均为钢筋混凝土现浇板。建筑顶层平面图如图 4.1所示。底层地面标高为士 0.000,室外标高为一 0.600m,顶层楼面标高为 18.000m,屋面标高为 21.600m。外墙厚度为 360mm,内墙厚度为 240mm。定位轴线与墙体中线相互重合。下部各层门窗及入口的洞口平面位置与顶层门窗洞口的平面位置相同。屋面为不上人屋面。办公楼所在地年降雨量为 1250mm,每小时最大降雨量为 100mm。设计此办公楼的屋面排水。4.1.2设计内容和深度及图纸要求用 3 号图纸一张,绘制该办公楼屋顶排水平面图和屋顶节点详图。1.屋顶排水平面图(比例 1:100 或 1:200)绘制出屋面构造的基本平面形状并用定位尺寸明确表示出其平面位置;绘制出建筑的分水线、檐沟(天沟)轮廓线或女儿墙的轮廓线,并标注其位置;绘制出雨水口的位置;标注出屋面各坡面的坡度方向和坡度值;刚性防水屋面绘制出分仓缝的设置位置;标注出详图索引号。屋顶排水平面图的尺寸标注:第一道尺寸线为细部尺寸线,标注出雨水口、分水线(包括檐沟分水线)和定位轴线相互之间的距离、屋顶最外侧轮廓线与外墙定位轴线的距离;第二道尺寸线为定位轴线尺寸,屋顶排水平面图可以只标注建筑物首尾两端的定位轴线以及转角处的定位轴线。2.屋顶节点详图内容包括檐口节点详图、泛水节点详图、水落口节点详图和分格缝构造、屋面变形缝构造等。详图用断面图形式表示。与详图无关的其他部分用折段线断开。详图的尺寸应标注在图样之外。详图中要标注详图符号和比例。檐口节点详图:当采用檐沟外排水时,表示清楚檐沟板的形式、屋顶各层构造檐口处的防水处理,以及檐沟板与屋面板、墙、圈梁或梁的相互关系,标注檐沟尺og8180営铝Cg吕1±3OCIML9£1§003OC1M】38M138M13DOM1§D4zg图41

1、当您付费下载文档后,您只拥有了使用权限,并不意味着购买了版权,文档只能用于自身使用,不得用于其他商业用途(如 [转卖]进行直接盈利或[编辑后售卖]进行间接盈利)。
2、本站所有内容均由合作方或网友上传,本站不对文档的完整性、权威性及其观点立场正确性做任何保证或承诺!文档内容仅供研究参考,付费前请自行鉴别。
3、如文档内容存在违规,或者侵犯商业秘密、侵犯著作权等,请点击“违规举报”。

碎片内容

屋面排水与节点设计说明

确认删除?
微信客服
  • 扫码咨询
会员Q群
  • 会员专属群点击这里加入QQ群