电脑桌面
添加小米粒文库到电脑桌面
安装后可以在桌面快捷访问

防水施工技术交底

防水施工技术交底_第1页
1/17
防水施工技术交底_第2页
2/17
防水施工技术交底_第3页
3/17
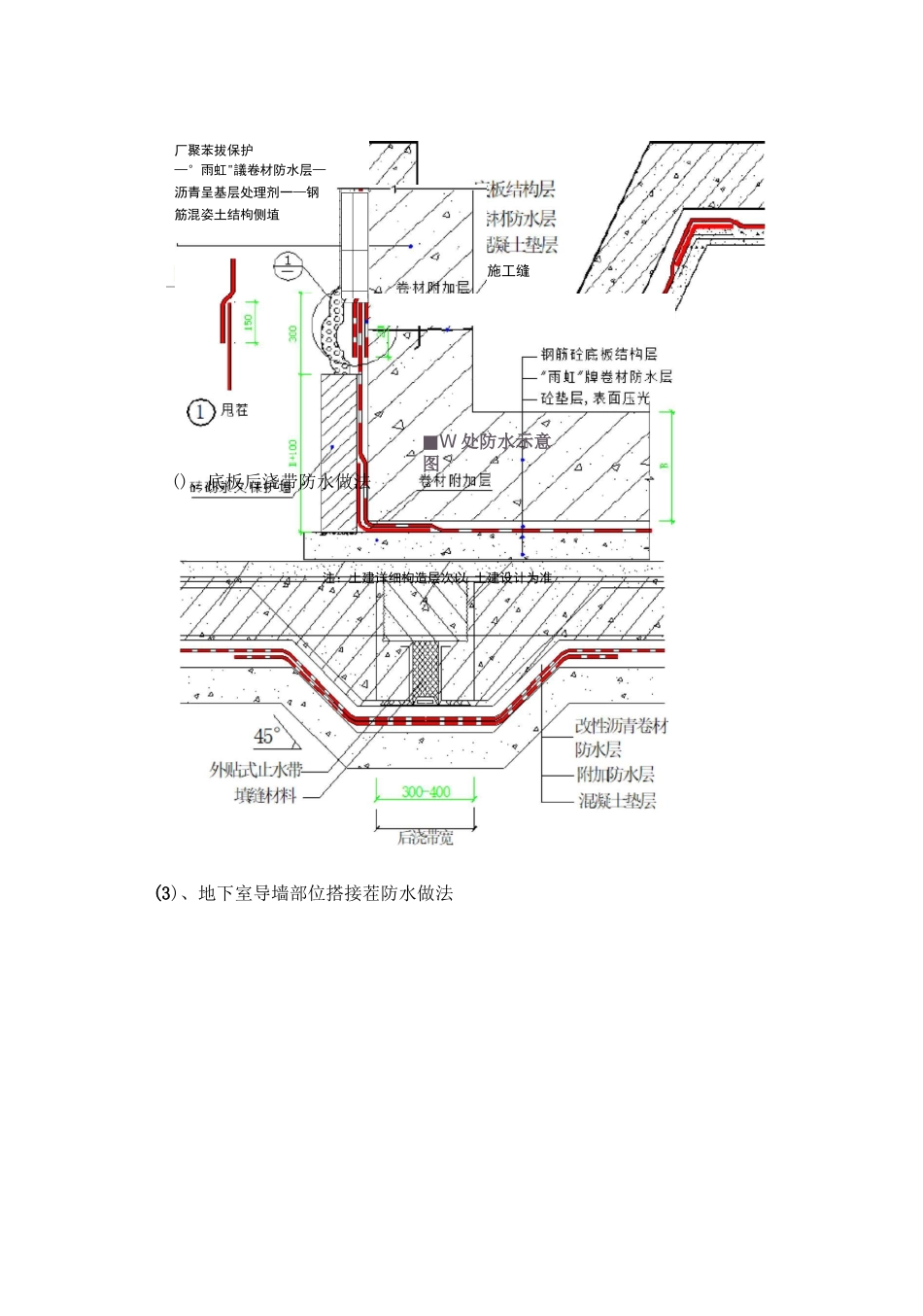
中国建筑项目管理表格分项工程施工技术交底-表格编号2017-WG-39交底内容一、防水设计构造做法及细部节点做法根据本工程防水原设计条件,同时严格遵循相关国家和地方规范及标准,并结合我公司多年行业经验,针对本工程各防水施工部位,确定合理适用的防水材料及以下相适应的防水配套体系:、地下室底板防水构造做法:本工程设计地下室底板采用“雨虹”牌厚改性沥青防水卷材(砂面)。具体做法如下图所示:、侧墙防水防水构造做法本工程侧墙部位防水设防等级为一级,采用“雨虹”牌 1.5mm 聚合物水泥防水涂料+1・5mm 厚湿铺高分子自粘防水卷材,采用外防外贴法。二八寻实蒔懈护层1. 5 诵湿幅分子自瞬 水卷材1.5nn 聚帥 7K 泥防 7K 涂 料平层^^勾层、地下室顶板防水构造做法:地下室顶板部位防水设防等级为一级。种植顶板采用“雨虹”牌 1.5mm 厚湿铺高分子自粘防水卷材+4mmARC-701 耐根穿刺防水卷材。保护层隔离层4ininARC -701 耐根穿刺防 水卷材1.5nini 厚湿铺高分子自粘 防水卷材找平层找坡层顶板结构层说明:由于厚自粘防水卷材为无胎卷材,与耐根穿刺卷材热熔存在漏水隐患,建议改成非固化沥青防水涂料耐根穿刺防水卷材;、细部节点防水做法:(1)、地下室底板基坑防水做法在基坑等变截面处的阴阳角转折处设置附加增强层,附加层宽度宜 3OO-5OOmm,如下示意图所示:种植顶板■W 处防水示意图()、底板后浇带防水做法(3)、地下室导墙部位搭接茬防水做法厂聚苯拔保护—°雨虹"議卷材防水层—沥青呈基层处理剂一—钢筋混姿土结枸侧埴施工缝注:土建详细枸造层次以.土建设计为准(4)、桩头防水做法:一] , c 产、 ,, ■ -/.'/4■y■/'/- /../ .// 仃 站剜方榭料厂尉■i-合」切 200*^(1O日伞01住筮処帥方水做法3 料”, 爲酸 . 7 ; 词十 ^. 改曲猜綁分三漪斜魁封,酿 ran1.aim 聚^zramm钢筋混凝 I-水泥圧力板附加层聚合物水泥防水涂料防水卷材(8)、地下室顶板与侧墙交接处防水卷材做法/'|/A/.y 曲/ 7/(1)主材准备:4mm 厚 SBSIIPYPE 改性沥青防水卷材(沙面)、1.5mmSAM-921II 罗朗膜防水卷材、聚合物防水涂料(2)配套辅材准备:沥青基层处理剂、沥青基密封膏、收口压条及螺钉,收口密封膏。2・1・2 机具准备(1) 基层清理:铲子、小平铲、吹灰器、扫帚;(2) 卷材铺贴:弹线盒、剪刀、壁纸刀;(3) 卷材热熔施工:喷灯、压辊。(4) 其它机具足量配备。2・1・3 其他准备(1) 在转角、阴阳角、平立...

1、当您付费下载文档后,您只拥有了使用权限,并不意味着购买了版权,文档只能用于自身使用,不得用于其他商业用途(如 [转卖]进行直接盈利或[编辑后售卖]进行间接盈利)。
2、本站所有内容均由合作方或网友上传,本站不对文档的完整性、权威性及其观点立场正确性做任何保证或承诺!文档内容仅供研究参考,付费前请自行鉴别。
3、如文档内容存在违规,或者侵犯商业秘密、侵犯著作权等,请点击“违规举报”。

碎片内容

防水施工技术交底

您可能关注的文档

确认删除?
VIP
微信客服
  • 扫码咨询
会员Q群
  • 会员专属群点击这里加入QQ群
客服邮箱
回到顶部