电脑桌面
添加小米粒文库到电脑桌面
安装后可以在桌面快捷访问

抗震支架设计

抗震支架设计_第1页
1/4
抗震支架设计_第2页
2/4
抗震支架设计_第3页
3/4
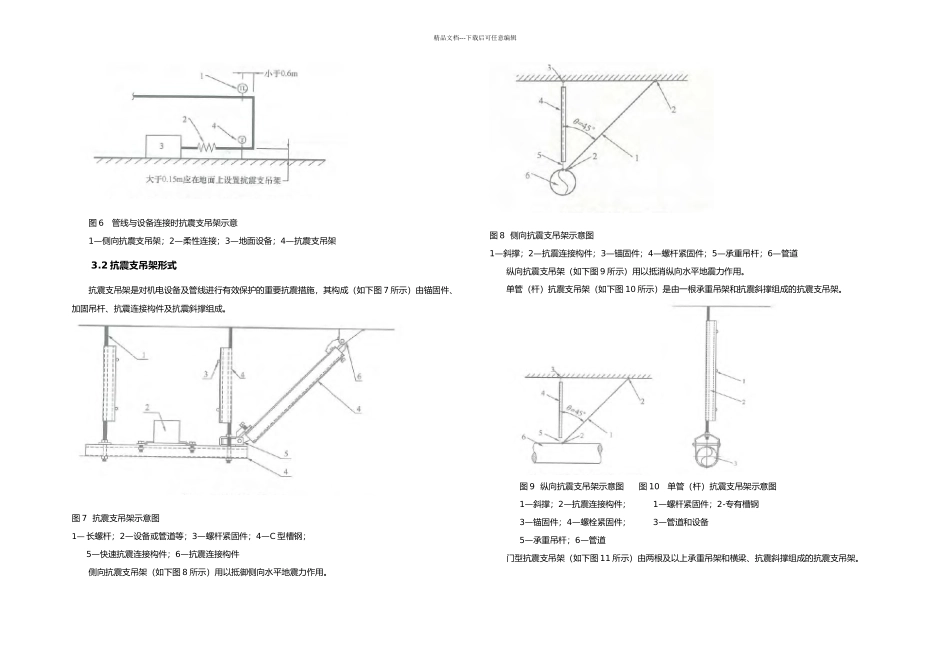
精品文档---下载后可任意编辑一、引言为贯彻执行《中华人民共和国建筑法》和《中华人民共和国防震减灾法》,实行以“预防为主”的方针,使建筑给排水、供暖、通风、空调、燃气、热力、电力、通讯、消防等机电工程经抗震设防后,减轻地震破坏,防止次生灾害,避开人员伤亡,减少经济损失,做到安全可靠、技术先进、经济合理、维护管理方便,制定了中华人民共和国国家标准《建筑机电工程抗震设计法律规范》GB 50981-2024,并于 2024 年 8 月 1 日开始实施。该法律规范明确表明抗震设防烈度为 6 度及 6 度以上地区的建筑机电工程必须进行抗震设计。也就明确表示抗震设防烈度为 6 度及 6 度以上地区的建筑机电工程必须按设计要求制作及安装抗震支架。二、术语抗震设防烈度 seismic fortification intensity地震烈度是指地面及房屋等建筑物受地震破坏的程度。抗震设防烈度 seismic fortification intensity。一般情况下取基本烈度。但还须根据建筑物所在城市的大小,建筑物的类别、高度以及当地的抗震设防小区规划进行确定。按国家规定的权限批准作为一个地区抗震设防的地震烈度称为抗震设防烈度。一般情况下,抗震设防烈度可采纳中国地震参数区划图的地震基本烈度,也可取 50 年内超越概率 10%的地震烈度。地震作用(earthquake action)指由地运动引起的结构动态作用,分水平地震作用和竖向地震作用。设计时根据其超越概率,可视为可变作用或偶然作用。抗震支吊架 Seismic Restraint与建筑结构体牢固连接,以地震力为主要荷载的抗震支撑设施。由锚固件、加固吊杆、抗震连接构件及抗震斜撑组成。三、抗震支吊架3.1 抗震支吊架安装要求与建筑结构体牢固连接,以地震力为主要荷载的抗震支撑设施。由锚固件、加固吊杆、抗震连接构件及抗震斜撑组成。在地震中应对建筑机电工程设施给予可靠保护,承受来自任意水平方向的地震作用力。水平地震力应按额定负荷时的重力荷载计算。干管的侧向抗震支撑应计入未设抗震支撑支管道的纵向水平地震力。水平管线侧向及纵向抗震支吊架间距应按下式计算:l=loαEk∗K式中:l—水平管线侧向及纵向抗震支吊架间距 (m);lo—抗震支吊架的最大间距(m),可按下表 1 的规定确定;αEk-水平地震力综合系数,该系数小于 1.0 时按 1.0 取值; K—抗震斜撑角度调整系数。当斜撑;当斜撑垂直长度与水平长度比小于或等于 1.50 时,调整系数取 1.67;当斜撑垂直长度与水平长度比小于或等于 ...

1、当您付费下载文档后,您只拥有了使用权限,并不意味着购买了版权,文档只能用于自身使用,不得用于其他商业用途(如 [转卖]进行直接盈利或[编辑后售卖]进行间接盈利)。
2、本站所有内容均由合作方或网友上传,本站不对文档的完整性、权威性及其观点立场正确性做任何保证或承诺!文档内容仅供研究参考,付费前请自行鉴别。
3、如文档内容存在违规,或者侵犯商业秘密、侵犯著作权等,请点击“违规举报”。

碎片内容

抗震支架设计

您可能关注的文档

确认删除?
VIP
微信客服
  • 扫码咨询
会员Q群
  • 会员专属群点击这里加入QQ群
客服邮箱
回到顶部