电脑桌面
添加小米粒文库到电脑桌面
安装后可以在桌面快捷访问

地铁工程围挡图集VIP免费

地铁工程围挡图集_第1页
1/7
地铁工程围挡图集_第2页
2/7
地铁工程围挡图集_第3页
3/7
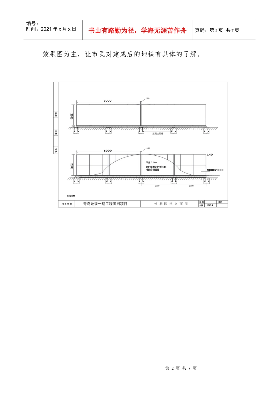
第1页共7页编号:时间:2021年x月x日书山有路勤为径,学海无涯苦作舟页码:第1页共7页地铁施工现场彩色喷塑钢板围挡技术要求青岛市地铁工程施工围挡采用喷绘板式围挡,主要由挡板方管立柱、墙体基础三部分焊接组合成连续围挡墙(见围挡整体效果图)。一、围挡结构(详见设计图)1、挡板:规格尺寸:高2000mm*5000mm钢架:L40*3mm焊接板面:镀锌板0.5mm画面:灯箱布喷绘整体组合时将挡板两侧焊接在方管立柱上。2、方管立柱:规格尺寸:100mm*100mm*2.6mm高:2200mm方钢立柱底板厚:200mm*200mm*5mm方钢立柱内侧加固:L40*3mm3、墙体基础墙体砌砖后水泥抹面,高度不小于200mm;软地面基础为400mm*400mm*400mm混凝土浇灌。二、围挡画面(详见画面效果图)围挡画面制作:采用灯箱布喷绘不小于500线,画面四周打扣,用铁丝将画面平整地拉固在看板背部。画面内容:主要由两部分构成,①文字画面,以宣传地铁建设及公益广告为主(附宣传效果图)②图片画面,以地铁站第2页共7页第1页共7页编号:时间:2021年x月x日书山有路勤为径,学海无涯苦作舟页码:第2页共7页效果图为主,让市民对建成后的地铁有具体的了解。第3页共7页第2页共7页编号:时间:2021年x月x日书山有路勤为径,学海无涯苦作舟页码:第3页共7页第4页共7页第3页共7页编号:时间:2021年x月x日书山有路勤为径,学海无涯苦作舟页码:第4页共7页第5页共7页第4页共7页编号:时间:2021年x月x日书山有路勤为径,学海无涯苦作舟页码:第5页共7页第6页共7页第5页共7页编号:时间:2021年x月x日书山有路勤为径,学海无涯苦作舟页码:第6页共7页第7页共7页第6页共7页编号:时间:2021年x月x日书山有路勤为径,学海无涯苦作舟页码:第7页共7页

1、当您付费下载文档后,您只拥有了使用权限,并不意味着购买了版权,文档只能用于自身使用,不得用于其他商业用途(如 [转卖]进行直接盈利或[编辑后售卖]进行间接盈利)。
2、本站所有内容均由合作方或网友上传,本站不对文档的完整性、权威性及其观点立场正确性做任何保证或承诺!文档内容仅供研究参考,付费前请自行鉴别。
3、如文档内容存在违规,或者侵犯商业秘密、侵犯著作权等,请点击“违规举报”。

碎片内容

地铁工程围挡图集

确认删除?
VIP
微信客服
  • 扫码咨询
会员Q群
  • 会员专属群点击这里加入QQ群
客服邮箱
回到顶部