电脑桌面
添加小米粒文库到电脑桌面
安装后可以在桌面快捷访问

高压开关安装交底记录VIP免费

高压开关安装交底记录_第1页
1/7
高压开关安装交底记录_第2页
2/7
高压开关安装交底记录_第3页
3/7
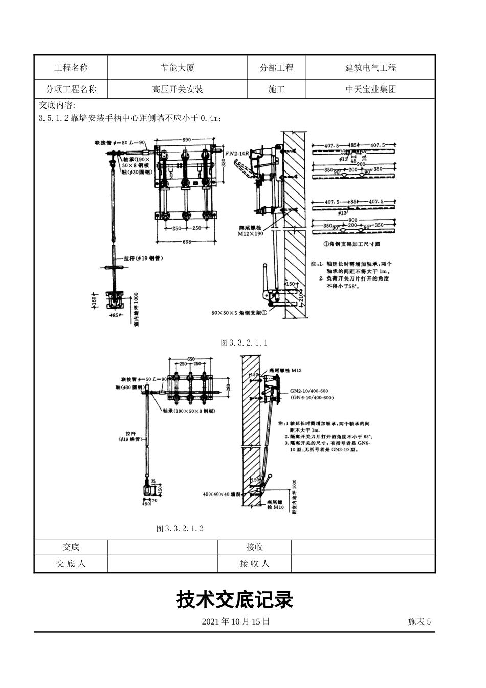
技术交底记录2021年10月15日施表5工程名称节能大厦分部工程建筑电气工程分项工程名称高压开关安装施工中天宝业集团交底内容:1、根据:?建筑工程施工质量验收统一?GB50300-2001?建筑电气工程施工质量验收?GB50303-20022、施工准备2.1设备及材料要求:2.1.1高压开关设备规格、型、电压等级应符合设计要求2.1.2设备应装有铭牌注明消费厂家及规格、型并有合格证及技术。2.1.3设备附件齐全外观检查完好瓷件无破损及裂纹。2.1.4安装用的材料均应有合格证材料规格型符合设计要求型钢无明显锈蚀。除地脚螺栓外其它紧固螺栓及垫圈均应采用镀锌件。2.2主要机具:2.2.1安装机具:电锤、电钻、型钢切断机、电焊机、气焊工具。2.2.2一般工具:电工工具、手锤、扳手、程度尺、尺类、线坠、高凳。2.3作业条件:2.3.1土建工程根本施工完毕、墙面、屋顶喷浆刷漆完毕无漏水。门窗玻璃安齐门加锁。2.3.2预留、预埋件符合设计要求。2.3.3与高压开关有关的电气设备〔如开关柜、变压器〕安装完毕检验合格。2.3.4施工图纸及技术资料齐全并有可靠的平安、消防措施。2.3.5安装场地清理干净有适度照明必须时脚手架搭设平安可靠。3、操作工艺3.1工艺流程:设备开箱点件→型钢支架制作安装→设备安装→操作机构安装调整→引线安装→设备及支架接地〔接零〕→耐压试验→送电运行验收交底接收交底人接收人技术交底记录2021年10月15日施表5工程名称节能大厦分部工程建筑电气工程分项工程名称高压开关安装施工中天宝业集团交底内容:3.2设备开箱点件:3.2.1设备开箱点件应由安装、供货、建立等共同进展。并做好详细记录。3.2.2按照设备及技术资料核对设备规格型是否符合设计要求附件是否齐全并有合格证。3.2.3设备外观检查:框架是否锈蚀有无开焊或变形绝缘瓷件有无坏损和裂纹拉撑绝缘子两头螺栓是否结实。接线端子及载流局部应清洁且接触良好触头镀银层无脱落。3.2.4消弧件齐全无变形及坏损。3.2.5负荷开关测量无断丝。3.3型钢支架制作安装:3.3.1高压开关安装固定方式一般有三种:3.3.1.1采用混凝土灌注燕尾螺栓靠墙直接安装;3.3.1.2采用预埋钢板安装安装时先加工一套与设备框架尺寸一样的型钢支架将支架焊在预埋钢板上然后安装设备;3.3.1.3采用穿墙螺栓安装。不采用那种方式安装均应提早进展安装用附件的加工及安装。3.3.2操作机构支架制作安装一般有两种:3.3.2.1靠墙安装〔图3.3.2.1.1、3.3.2.1.2、3.3.2.1.3〕;3.3.2.2侧墙安装〔图3.3.2.2.1、3.3.2.2.2〕。3.4.1设备安装位置应符合图纸尺寸为了二次引线方便可参考被控设备实际位置将平面位置做适当调整。但安装高度必须符合图纸要求。3.4.2设备安装时应平正、垂直安装后设备底座受力均匀不得变型。固定结实。3.4.3靠墙安装的负荷开关为防止连杆臂触墙可将底座垫高。3.5操作机构安装与调整:3.5.1操作机构的安装位置应符合以下要求:3.5.1.1固定轴距地面高度1m;交底接收交底人接收人技术交底记录2021年10月15日施表5工程名称节能大厦分部工程建筑电气工程分项工程名称高压开关安装施工中天宝业集团交底内容:3.5.1.2靠墙安装手柄中心距侧墙不应小于0.4m;图3.3.2.1.1图3.3.2.1.2交底接收交底人接收人技术交底记录2021年10月15日施表5工程名称节能大厦分部工程建筑电气工程分项工程名称高压开关安装施工中天宝业集团交底内容:图3.3.2.2.1图3.3.2.2.2交底接收交底人接收人技术交底记录2021年10月15日施表5工程名称节能大厦分部工程建筑电气工程分项工程名称高压开关安装施工中天宝业集团交底内容:3.5.1.3侧墙安装手柄中心距侧墙不应小于0.3m。手柄与带电局部间隔不应小于1.2m。3.5.2操作机构应调整灵敏可靠拉合位置正确。带电动跳闸或辅助开关的操作机构。应动作可靠位置准确。3.5.3天关片与固定触头应对准插入深度应满足开关要求接触严两侧压力均匀。3.5.4开关片与固定触头之间的垂直间隔及片转动角度不应小于表3.5.4的规定。开关片与固定触头之间的垂直间隔及片转动角度表3.5.4名称型额定电压〔kV〕拉开角度〔度〕拉开间隔〔mm〕户内高压隔分开关户内高压隔分开关户内压气式高压负荷开关户内高压负荷压GN2GN8FN2FN1106~1010106558158±4>160182±33.6引线...

1、当您付费下载文档后,您只拥有了使用权限,并不意味着购买了版权,文档只能用于自身使用,不得用于其他商业用途(如 [转卖]进行直接盈利或[编辑后售卖]进行间接盈利)。
2、本站所有内容均由合作方或网友上传,本站不对文档的完整性、权威性及其观点立场正确性做任何保证或承诺!文档内容仅供研究参考,付费前请自行鉴别。
3、如文档内容存在违规,或者侵犯商业秘密、侵犯著作权等,请点击“违规举报”。

碎片内容

高压开关安装交底记录

您可能关注的文档

确认删除?
VIP
微信客服
  • 扫码咨询
会员Q群
  • 会员专属群点击这里加入QQ群
客服邮箱
回到顶部