电脑桌面
添加小米粒文库到电脑桌面
安装后可以在桌面快捷访问

(整理)基础沉降计算VIP免费

(整理)基础沉降计算_第1页
1/8
(整理)基础沉降计算_第2页
2/8
(整理)基础沉降计算_第3页
3/8
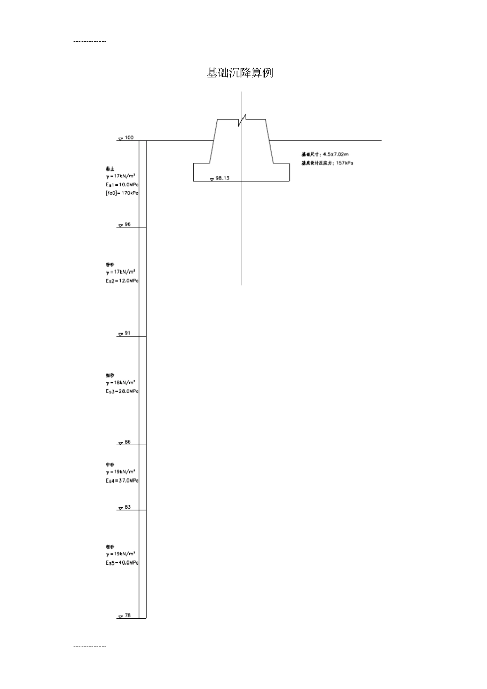
--------------------------基础沉降算例--------------------------基础资料和地质资料如上图。计算依据规范为《公路桥涵地基与基础设计规范》JTGD63——2007(以下简称规范)。TB100002.5—2005hpp0《规范》4.3.4(3.2.2)=157-17*1.87=125.21kPa56.15.4/02.7/(/基础短边)基础长边bl第一层土:13.29613.98010zz47.05.4/13.2//基础短边)(土层底距基底距离bz938.0110第二层土:13.79113.9813.221zz58.15.4/13.7/bz600.0938.021第三层土:13.128613.9813.732zz70.25.4/13.12/bz412.0600.032第四层土:13.158313.9813.1243zz36.35.4/13.15/bz--------------------------346.0412.043第五层土:13.207813.9813.1514zz47.45.4/13.20/bz272.0346.054以上n根据bl/及bz/可查询《规范》附录M桥涵基底附加系数、平均附加系数,(附录B)也可按本算例提供的Excel表查询。按《规范》4.3.7估算nz)ln4.05.2(bbzn54.8)5.4ln4.05.2(5.4m所以计算时取至基底下第三层土。按《规范》4.3.4(3.2.2))(11100iiiinisizzEps=125.21*[(2.13*0.938-0*1)/10+(7.13*0.600-2.13*0.938)/12+(12.13*0.412-7.13*0.600)/28]=52.02(mm)查《规范》表4.3.6Δz值(表3.2.2—1)Δz=0.8m33.118.013.12'2z52.25.4/33.11/bz435.0'228/)435.033.11412.013.12(21.125ns)(3.1025.002.52)(31.0mmmm--------------------------故以上取基底以下三层计算满足规范要求。根据《规范》表4.3.5注2(表3.2.2—2)siiiiiiiiisiiisEzzzzEAAE1111)(=286.013.7412.013.1212938.013.26.013.71010938.013.2412.013.12=12.03MPa0.75[fa0]=0.75*170=127.5>125.21=p0查《规范》表4.3.5(表3.2.2—2)511.07.0)703.12(7157.04.0s根据《规范》4.3.4(3.2.2))(58.2602.52511.00mmsss所以基础最终总沉降量为26.58mm。基础沉降计算应注意的问题1.土的压缩性指标有压缩模量Es、变形模量E0和弹性模量E,我们在使用沉降计算公式时采用的是压缩模量Es,请不要混淆。⑴土的压缩模量Es是土样在室内有侧限条件(即不允许产生侧向变形)试验中竖向压应力σs与相应的竖向应变λs之比值,即sssE⑵土的变形模量E0是土在室外荷载板试验中无侧限条件(即允许产生侧向变形)下,P—s曲线上竖向压力P与竖向沉降s呈线性关系或接近线性关系区段内,竖向压力应力与相应应变之比值,又称总变形模量。Es与E0有如下关系:E0/Es=β1212--------------------------μ——土的泊松比。⑶土的弹性模量E与土的压缩模量Es和土的变形模量E0不同。土的弹性模量E为土的竖向压应力与其相应竖向弹性应变之比值,不包括塑性应变影响。土的弹性模量远远大于土的压缩模量Es和变形模量E0,计算基础沉降时不采用。2.siE为基础底面以下受压土层内第i薄层的压缩模量,根据压缩曲线按实际应力范围取值,即应取“土的自重压应力”至“土的自重压应力与附加应力之和”的压应力段计算。3.有时地质资料给出的是压缩曲线,从压缩曲线我们可得到相应压应力段的压缩系数a:1221ppeepeae1——压缩曲线上相应压应力段初始应力阶段土样的孔隙比;e2——压缩曲线上相应压应力段终止应力阶段土样的孔隙比;p1——压缩曲线上相应压应力段初始应力阶段土样的压应力;p2——压缩曲线上相应压应力段终止应力阶段土样的压应力。据上可求出相应段的压缩模量:aeEs114.基底以下地基沉降范围内分层时按压缩模量划分,即每相同的压缩模量土层为一层。注意有时土层虽为一层,但较厚时,有可能浅处土与深处土的压缩模量不同,此时应将其分为两层或多层(如有压缩曲线,可根据压缩曲线按不同“土的自重压应力”至“土的自重压应力与附加应力之和”范围进行值取值,Es计算办法见3条)。5.计算基础沉降时,传至基础底面的作用效应应按正常使用极限状态下长期效应组合采用。(铁路桥涵基础沉降按恒载计算)该组合仅为直接施加于结构上的永久作用标准值(不包括混凝土收缩及徐变作用、基础变位作用)和可变作用准永久值(仅指汽车荷载和人群荷载)引起的效应。6.当桩基为端承桩或桩端平面内桩的中距大于桩径(或边长)的6倍时,桩--------------------------基的总沉降量可取单桩的沉降量。⑴单根端承桩的沉降计算对...

1、当您付费下载文档后,您只拥有了使用权限,并不意味着购买了版权,文档只能用于自身使用,不得用于其他商业用途(如 [转卖]进行直接盈利或[编辑后售卖]进行间接盈利)。
2、本站所有内容均由合作方或网友上传,本站不对文档的完整性、权威性及其观点立场正确性做任何保证或承诺!文档内容仅供研究参考,付费前请自行鉴别。
3、如文档内容存在违规,或者侵犯商业秘密、侵犯著作权等,请点击“违规举报”。

碎片内容

(整理)基础沉降计算

确认删除?
VIP
微信客服
  • 扫码咨询
会员Q群
  • 会员专属群点击这里加入QQ群
客服邮箱
回到顶部