电脑桌面
添加小米粒文库到电脑桌面
安装后可以在桌面快捷访问

中天建设现场平面布置设计要求VIP免费

中天建设现场平面布置设计要求_第1页
1/17
中天建设现场平面布置设计要求_第2页
2/17
中天建设现场平面布置设计要求_第3页
3/17
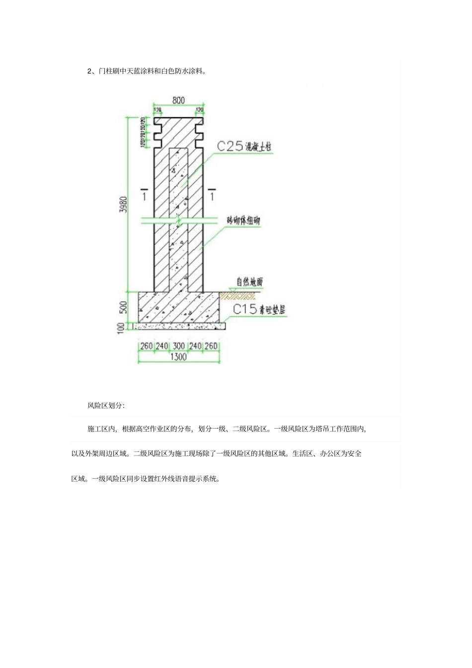
安全文明在手,天下我有!平面布置原则1、平面图布置应符合安全、文明施工、消防、环境保护要求。2、场内道路畅通,满足施工和消防要求,运输方便。施工现场能正常组织排水。3、施工材料尽量靠近使用地点,减少二次搬运。4、垂直运输设备可以正常安装与拆除。5、现场布置紧凑,满足施工要求的基础上尽量减少施工场地,便于管理,做到少硬化,多绿化。6、施工区应与办公、生活区划分清晰,并有相应的隔离措施。7、临时用房选址合理,应避开建筑物和管线的位置,防止不必要的搬迁。8、临时设施的布置应便于工人生产和生活,办公用房靠近施工现场,娱乐活动设施应在生活区范围内。总平面图包含的内容1、在建工程建筑物具体位置、施工通道、临时用电用水布设、现场排水。2、大门、门卫室、围墙、大门口车辆冲洗设施及三级沉淀池。3、施工现场标识标牌位置(八牌二图、班前讲评台、消防台、宣传栏等)。4、办公区(会议室及各职能办公室设置情况、停车处、绿化)。5、生活区(宿舍楼、厕所、厨房和餐厅、医务室、民工学校、职工活动室、盥洗室和浴室、洗衣房、晒衣区和雨天晾衣棚、停车棚、化粪池、隔油池、绿化)。6、施工区(总配室、试块养护室、土建仓库、班组仓库和危险品仓库、班组工具间、茶水亭和吸烟区、各类加工棚、可回收废料池、不可回收废料池、大中型机械、安全通道、搅拌场地和三级沉淀池、现场材料堆放的场地、绿化)。门柱做法:采用定型化格构柱做法,型钢龙骨+铝板(或白铁皮),底部用化学螺栓固定(或与基础预埋件焊接)。门柱应具有足够的承载力以抵抗风力等荷载,刷防锈漆+白色油漆和中天蓝涂料。1、门柱采用外砖砌、内浇捣砼柱,砼柱内配钢筋,表面1:2水泥砂浆粉刷。门轴预埋铁件确保有足够的锚固力,门轴设置在门柱内侧。2、门柱刷中天蓝涂料和白色防水涂料。风险区划分:施工区内,根据高空作业区的分布,划分一级、二级风险区。一级风险区为塔吊工作范围内,以及外架周边区域。二级风险区为施工现场除了一级风险区的其他区域。生活区、办公区为安全区域。一级风险区同步设置红外线语音提示系统。施工道路:1、道路应畅通,主干道宽度不小于6m,有循环干道(消防要求)。2、行车道路混凝土厚度不小于200mm,路基坚实、路面平整、路沿顺直、排水措施到位。3、大门口(主干道除外)、形象展示区、人行道路、办公区、生活区均应采用广场砖、砼、绿化三种材料有机结合铺设,以便重复利用,节约成本。4、电缆和管线等需过路时应预埋。5、通道两侧应适当的布置绿化。八牌二图:1、八牌二图原则上应在地下室施工前完成布置。2、八牌二图应设置在正对大门或大门入口侧面较醒目位置,与花坛绿化、旗坛结合设置,八牌二图离地高度一般为800mm,具体要结合景观绿化而定。3、八牌二图喷绘由公司统一安排广告公司制作。4、八牌二图采用定型化钢骨架,主要用材为Φ150钢管(刷银粉漆)、50方钢、镀锌铁皮等,采用预制拼装的形式周转使用。消防组合柜:消防组合柜参考尺寸不小于2500(高)*5000mm(长),组合柜须配备干粉灭火器6~8只、消防水带2~3条、消防铁锹2~3把、消防砂桶2~3只、斧头2~3把等,并设置容量相当的砂池。做法一采用型钢和白铁皮制作,刷大红油漆。中间分割可根据实际调整。防护棚及配套设施:所有操作棚采用型钢加方管装配,第一道防护必须采用方管加彩钢板的做法。钢筋加工棚采用型钢定型化拼装制作,可以重复利用,节约成本。喷绘统一高度为1.2米,长度按实际情况而定。定型化钢筋加工台:防噪声、防扬尘的封闭式木工加工棚:安全通道防护棚:1、安全通道、防坠棚搭设牢固,防坠措施到位,简洁规范2、坠落半径内临建、作业点、安全通道的防坠措施到位,安全通道位置合理,道路畅通,标识明显。坠落半径(R)分别为:当坠落物高度为2~5m时,R为3m;当坠落物高度为5~15m时,R为4m;当坠落物高度为15~30m时,R为5m;当坠落物高度大于30m时,R为6m。3、喷绘背板挂设平整,大角顺直。通道两侧张挂实测实量专栏、栋号管理专栏及安全防护专栏图牌。脚手架搭设:A、脚手架钢管宜采用φ48.3×3.6钢管。钢管上严禁打孔、有裂缝、变形、螺栓出现滑丝的严禁使用。扣...

1、当您付费下载文档后,您只拥有了使用权限,并不意味着购买了版权,文档只能用于自身使用,不得用于其他商业用途(如 [转卖]进行直接盈利或[编辑后售卖]进行间接盈利)。
2、本站所有内容均由合作方或网友上传,本站不对文档的完整性、权威性及其观点立场正确性做任何保证或承诺!文档内容仅供研究参考,付费前请自行鉴别。
3、如文档内容存在违规,或者侵犯商业秘密、侵犯著作权等,请点击“违规举报”。

碎片内容

中天建设现场平面布置设计要求

您可能关注的文档

确认删除?
VIP
微信客服
  • 扫码咨询
会员Q群
  • 会员专属群点击这里加入QQ群
客服邮箱
回到顶部