电脑桌面
添加小米粒文库到电脑桌面
安装后可以在桌面快捷访问

工程项目管理流程图VIP免费

工程项目管理流程图_第1页
1/19
工程项目管理流程图_第2页
2/19
工程项目管理流程图_第3页
3/19
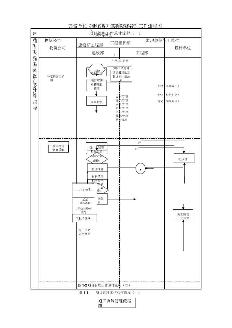
建设单位(业主方)工程项目管理工作流程图项目管理工作总体流程(建设施工竣工验收与评价物资公司补充物资壬米购工程指挥部建设部工程部初设材料清册与施工图材料—编清册对达工程进度计划条件a合同管理进度管理安全管理质量管理造价管理技术管理档案管理监理单位施工单位土建(基础施工)安装(杆塔组立)调试(架线附件)竣工验收通过启动投运工程结算资料移交工程结算审计竣工决算资产移交图1-2项目管理工作总体流程(二)施工协调管理流程图图1-3施工协调管理流程工程建设月报上报流程图工程指挥部监理单位施工单位审批工程开工报审表召幵工程例会,解决相关施工出现的问题下达配合协调解决问题组织编写工程开工报审表I组织工程开工负责落实解决影响工程施工的相审批复工申请参加启动工作图1-4工程建设月报上报流程图1-5档案信息管理流程料所有相关文档案做好影像文料的档案信息管理流程图监理单位施工单位工程指挥部建设部工程部审查工程竣工档案审核相关文档审核工程竣工档案工程竣工档案移交经施工单位审核后上报验竣工资料接受工程竣工档案移交确认工程竣工档案移交工程竣工档案移交至公结档案室开始提出档案管理的目标计划及要求确认工程档案管理目标收集案身负及要求项目安全管理工作总体流程(一)项安全监察部工程指挥部参建单位工达到安全文明施工开工条件符合措施会施准备阶段目刖期及施建设工程整改完修改完监督检查工程安全管理体的建立和建立安全管理制度和安全管督促理台检查参建监理项目部否编制安全监施工项目^开工前建立实安全管理明措施,落实安全会议精神和风险、审批参建单位的安全文明施工策划施工项目部编制安全文明~施工实施细则部方审及安措费吏预控措施,对现立安全管理明施工条账及措施落实情况进行把关图2-1项目安全管理工作总体流程(一)项目安全管理工作总体流程(二)项目安全监察部工程指挥部参建单位建设部工程部图2-2项目安全管理工作总体流程(二)项目质量管理工作总体流程(一)工程实物资公司工程指挥部参建单位建设部工程部加强设备采购质量管理和建立设计质量—I管理制度_I定期随机检I查在建工程I质量!V,图3-1项目质量管理工作总体流程(一)项目质量管理工作总体流程(二)工程验领导小组工程指挥部参建单位建设部工程部体系及目质量制进行全过程|.组织中_间验收一设计单定期编写过程质量报告;组织或参加过程质量检查,过程质量事故调查和处理;建立健全工程监理质量档案图3-2项目质量管理工作总体流程(二)施工质量控制管理流程图工程指挥部监理单位施工单位建设部工程部2、审查设计变更、工程变更3、检查验收隐蔽工程4、签认分部分项工程质量5、分析处理质组量事故验收或初检图3-3施工质量控制管理流程项目造价管理工作总体流程(一)刖期阶领导小组工程指挥部监理单位参建单位建设部工程部参与技术交组织技术交审批质量通工程质量控制跟防范措施审批施工组织设计审查质量管理工程进度款管理工作流程图工程指挥部监理单位施工单位建设部工程部工程变更管理工作流程图领导小组工程指挥部监理单位施工单位工程部图4-4工程变更管理工作流程成本控制管理工作流程图工程指挥部监理单位施工单位建设部工程部项目进度管理工作总体流程工程指挥部监理单位施工单位建设部工程部是否影响I、述总体进度”汇总排定项目1—!——进度控制设计计划11每月汇总各个工程11进度执行情况11图5-1项目进度管理工作总体流程项目设备、材料供应计划管理流程图物资公司工程指挥部监理单位施工单位工程部否曰是否满足工期实施施工进1、项目进度变化力落际4、组织协划调各对方关系报出形象进度报结对相应施工进度计划进行调编制《工程施工进度计审核工程施工进度审核调整后施工进度计根据工程立项批复编制工程前期进度计划J根据施工图编十编制工程划程物计汇总工程施工进度计得划和物资供应协调表每月检查进度执行情况,时纠是编制编制编制甲供乙供施工材料材料工器设备计划具需需求求计计划划图5-2项目设备、材料供应计划管理流程材料进货检验(设备开箱)流程图物资公司工程指挥部监理单位施工单位工程部签订施工合物资公司采交付使用安结对质量不符合要...

1、当您付费下载文档后,您只拥有了使用权限,并不意味着购买了版权,文档只能用于自身使用,不得用于其他商业用途(如 [转卖]进行直接盈利或[编辑后售卖]进行间接盈利)。
2、本站所有内容均由合作方或网友上传,本站不对文档的完整性、权威性及其观点立场正确性做任何保证或承诺!文档内容仅供研究参考,付费前请自行鉴别。
3、如文档内容存在违规,或者侵犯商业秘密、侵犯著作权等,请点击“违规举报”。

碎片内容

工程项目管理流程图

您可能关注的文档

确认删除?
VIP
微信客服
  • 扫码咨询
会员Q群
  • 会员专属群点击这里加入QQ群
客服邮箱
回到顶部