电脑桌面
添加小米粒文库到电脑桌面
安装后可以在桌面快捷访问

冷库施工设计大样图VIP免费

冷库施工设计大样图_第1页
1/11
冷库施工设计大样图_第2页
2/11
冷库施工设计大样图_第3页
3/11
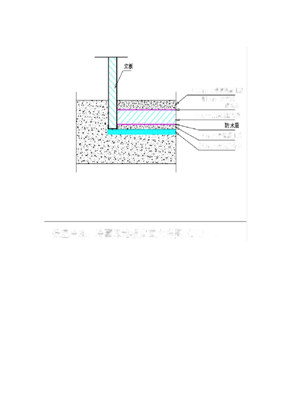
接口表血密對胶板与板插入式联接大样图低温冷冻.冷藏库地板安装大样图(二)lOOmmOS光150mm啊筋泯国加m-血咖防桶50rrm隶隹凝50mm穷实三orY©启动盘£醜删瞇国定低压循环桶上图)5号躺陋Fi就般楸a\M16mi500Ml2塑IF075PVCWiBM12觀\MJ6M@1500吊装大样图上图)顶顶板60x60x0.5影钢装04x10拉钏钉@3角铝表面喷塑04x10拉钏幻@3共用墙板与顶板联接大样图]00賈襯连接板04口0拉钏钉配00表面喷塑04x10拉瓣I@30004x10^@300管道保温大样图隔间墙外墙管道穿墙大样图多根管道吊架髙硕度MM50mm长鞍座#16薄金属板制作U型混凝土低温冷冻、冷藏库地板安装大样图(「)律筑ISOmmMOi®亦7蚀上旳&融両PE防水蓿展^psmm(50设)・ttESMKP棚ffi曉礙土B醐mm-1沖15Q上做耐曆翹囲常温库、月台区地板安装大样图

1、当您付费下载文档后,您只拥有了使用权限,并不意味着购买了版权,文档只能用于自身使用,不得用于其他商业用途(如 [转卖]进行直接盈利或[编辑后售卖]进行间接盈利)。
2、本站所有内容均由合作方或网友上传,本站不对文档的完整性、权威性及其观点立场正确性做任何保证或承诺!文档内容仅供研究参考,付费前请自行鉴别。
3、如文档内容存在违规,或者侵犯商业秘密、侵犯著作权等,请点击“违规举报”。

碎片内容

冷库施工设计大样图

您可能关注的文档

确认删除?
VIP
微信客服
  • 扫码咨询
会员Q群
  • 会员专属群点击这里加入QQ群
客服邮箱
回到顶部