电脑桌面
添加小米粒文库到电脑桌面
安装后可以在桌面快捷访问

五通码头二期边检机房建设项目招标要求VIP免费

五通码头二期边检机房建设项目招标要求_第1页
1/6
五通码头二期边检机房建设项目招标要求_第2页
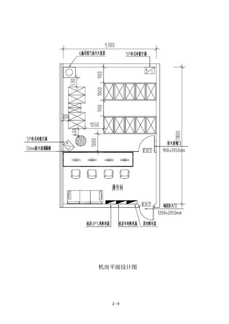
2/6
五通码头二期边检机房建设项目招标要求_第3页
3/6
1/9五通码头二期边检机房建设项目招标要求一、设计方案:2/9机房平面设计图3/94/95/96/9二、采购清单序号设备材料名称单位数量品牌一、装修部分天棚及吊顶周边防尘漆漳州龙江不上人型铝合金天棚龙骨(机房全区)×600mm广州金霸铝合金天棚吊顶(机房全区)××0.8mm广州金霸吊顶不锈钢角线收边制作地面及活动地板以下墙沿防尘处理漳州龙江机房全区铺设全钢抗静电活动地板(无边)××35mm天津沈飞墙面乳白色水泥漆饰面合资立邦100mm高不锈钢踢脚线1.0mm厚广东大华甲级钢质双开防火门×2150mm樘厦门利安闭门器套爱尔门机房保洁处理项现场施工不锈钢防火玻璃隔断(12mm)厦门永昕玻璃隔断静电地板下密闭处理现场施工玻璃隔断吊顶上硅酸钙板密闭处理(内填充防火棉)现场施工×2100mm防火玻璃地弹门(含地弹簧、拉手等五金件)厦门永昕冷暖吸顶空调台青岛海尔普通空调延长铜管按实际长度空调排水管制作(采用给水管)项电池组承重架(槽钢制作)座定制

1、当您付费下载文档后,您只拥有了使用权限,并不意味着购买了版权,文档只能用于自身使用,不得用于其他商业用途(如 [转卖]进行直接盈利或[编辑后售卖]进行间接盈利)。
2、本站所有内容均由合作方或网友上传,本站不对文档的完整性、权威性及其观点立场正确性做任何保证或承诺!文档内容仅供研究参考,付费前请自行鉴别。
3、如文档内容存在违规,或者侵犯商业秘密、侵犯著作权等,请点击“违规举报”。

碎片内容

五通码头二期边检机房建设项目招标要求

确认删除?
VIP
微信客服
  • 扫码咨询
会员Q群
  • 会员专属群点击这里加入QQ群
客服邮箱
回到顶部