电脑桌面
添加小米粒文库到电脑桌面
安装后可以在桌面快捷访问

四川造价员土建开卷考试真题及答案07年09年10年VIP免费

四川造价员土建开卷考试真题及答案07年09年10年_第1页
1/30
四川造价员土建开卷考试真题及答案07年09年10年_第2页
2/30
四川造价员土建开卷考试真题及答案07年09年10年_第3页
3/30
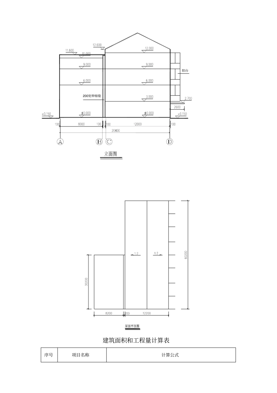
2010年四川省建设工程造价员资格考试题(土建开卷)土建造价案例分析试卷题号一二三四五六七总分计分人核分人得分本卷为案例分析题,初级做一~四题,共四题,总分100分;中级做三~六题,共四题,总分120分;高级做四~七题,共四题,总分120分;多做和漏做的题均不得分。人工工资单价和施工机械台班单价全部以04年计价表中价格为准;文字与图形不同时,以文字说明为准;要求分析合理,结论正确,并简要写出计算过程。一.(本题25分)如图,某多层住宅变形缝宽度为0.20m,阳台水平投影尺寸为×3.60m(共18个),雨蓬水平投影尺寸为×4.00m,坡屋面阁楼室内净高最高点为3.65m,坡屋面坡度为1:2;平屋面女儿墙顶面标高为11.60m。请按建筑工程建筑面积计算规范(GB/T50353-2005)计算下图的建筑面积,并按04年计价表规定计算外墙脚手架工程量。专业级别(考生填写)得分评卷人阳台200宽伸缩缝建筑面积和工程量计算表序号项目名称计算公式一、建筑面积及脚手架计算建筑面积和工程量计算表序号名称计算公式1Α-Β轴××2+×1/2)=634.20m22Β-С轴××4=2937.76m23坡屋面×+×2×1/2)=481.60m24雨蓬××1/2=5.20m25阳台18×××1/2=58.32m2合计4117.08m26外墙脚手架A-B轴××2+=552.25m2C-B轴××2++3×+30)=1530.00m2高低跨间×=48.32m2合计2130.57m22009年全国建设工程造价员资格考试土建专业四川省造价工程师协会案例一背景资料某施工企业承包一工程.计划砌砖工程量为250m3,其计划费用按定额计算,某定额规定:每立方米耗用页岩砖(标砖)51O块.每块页岩砖(标砖)的定额基价为元,在施工过程中实际砌砖工程量为300m3,每立方米消耗页岩砖(标砖)500块,每块页岩砖(标砖)实际购入价为元。问题:根据以上资料计算该工程砌砖工程中页岩砖(标砖)与计划数相比,由于工程量增加,页岩砖(标砖)耗量节约,价格提高所导致的成本费用增加或节约额及合计金额,并填入表l中。表1砌砖工程页岩砖(标砖)成本增加及减少费用计算表费用名称计算式小记工程量变化增加费砖耗量变化节约费砖价格提高费合计金额案例二背景资料一、设计说明l.某工程±以下的条形基础刮面示意如图1-1所示,条形基础长100m,室外标高为,垫层及基础均为现浇混凝土。2.本±以下基础工程建设方已完成三通一平,土壤类别按四川地区综合考虑,均属天然密实土。二、技术要求1.本基础工程土方为人工放坡开挖,非桩基工程,不考虑开挖时排地表水及基底钎探,工作面为0.3m,放坡系数为。2.开挖基础土,其中一部分土壤考虑按挖方量60%进行现场内运输、堆放,采用人力车运输,距离为40m,另一部分土壤在基坑边5m内堆放。3.基础垫层为非原槽浇注。基础两端(其垫层不伸出基础,挖土方不考虑工作面和放坡)。问题:一、根据图1-1及设计说咀和技术要求计算本工程条形基础的挖基础土方的清单工程量及综合单价并填写在表2挖基础土方清单项目综合单价计算表中。二、有关要求1.计算清单工程量按《建设工程工程量清单计价规范》(GB50500-2008),计算挖基础土方的综合单价按2009年《四川省建设工程工程量清单计价定额》为依据.定额项目综合单价(人工费、材料贽、机械费、综合费)均不调整,不计算规费和税金。2.计算工程数量以“m3”为单位,步骤计算结果保留三位小数.其最终计算结果保留两位小数。图1-1案例三背景资料图2-1图2-2图2-3图2-4问题:一、根据图2-1、2-2、2-3、2-4所以的平面、立面、剖面图、设计说明及有关要求,审查本工程的“表5分部分项工程量清单表”中的有关内容。二、审查要求及计算说明1.柱据《建设工程工程量清单计价规范》GB50500-2008、《四川省建设工程工程量清单计价管理办法》和《四川省建设工程工程量清单招标投标报价评审办法》及有关勘误、解释、配套文件审查“表5分部分项工程逞清单表”中项目犏码、项目特征描述、计量单位、工程数量是否有误,将错误的内容、标注、数量、编号用“—”符号划击后,将正确的内容标注、数量、编好填写在下一空行或空白处的相应栏目中,或填加相应内容,凡不按此规定填写的一律扣5分。2.凡“表5”中未列的清单项目不计算。内墙门窗侧面、顶面和窗底面均抹灰、刷乳胶漆,其乳...

1、当您付费下载文档后,您只拥有了使用权限,并不意味着购买了版权,文档只能用于自身使用,不得用于其他商业用途(如 [转卖]进行直接盈利或[编辑后售卖]进行间接盈利)。
2、本站所有内容均由合作方或网友上传,本站不对文档的完整性、权威性及其观点立场正确性做任何保证或承诺!文档内容仅供研究参考,付费前请自行鉴别。
3、如文档内容存在违规,或者侵犯商业秘密、侵犯著作权等,请点击“违规举报”。

碎片内容

四川造价员土建开卷考试真题及答案07年09年10年

您可能关注的文档

确认删除?
VIP
微信客服
  • 扫码咨询
会员Q群
  • 会员专属群点击这里加入QQ群
客服邮箱
回到顶部