电脑桌面
添加小米粒文库到电脑桌面
安装后可以在桌面快捷访问

全套建筑工程安全资料-实例整理版VIP免费

全套建筑工程安全资料-实例整理版_第1页
1/123
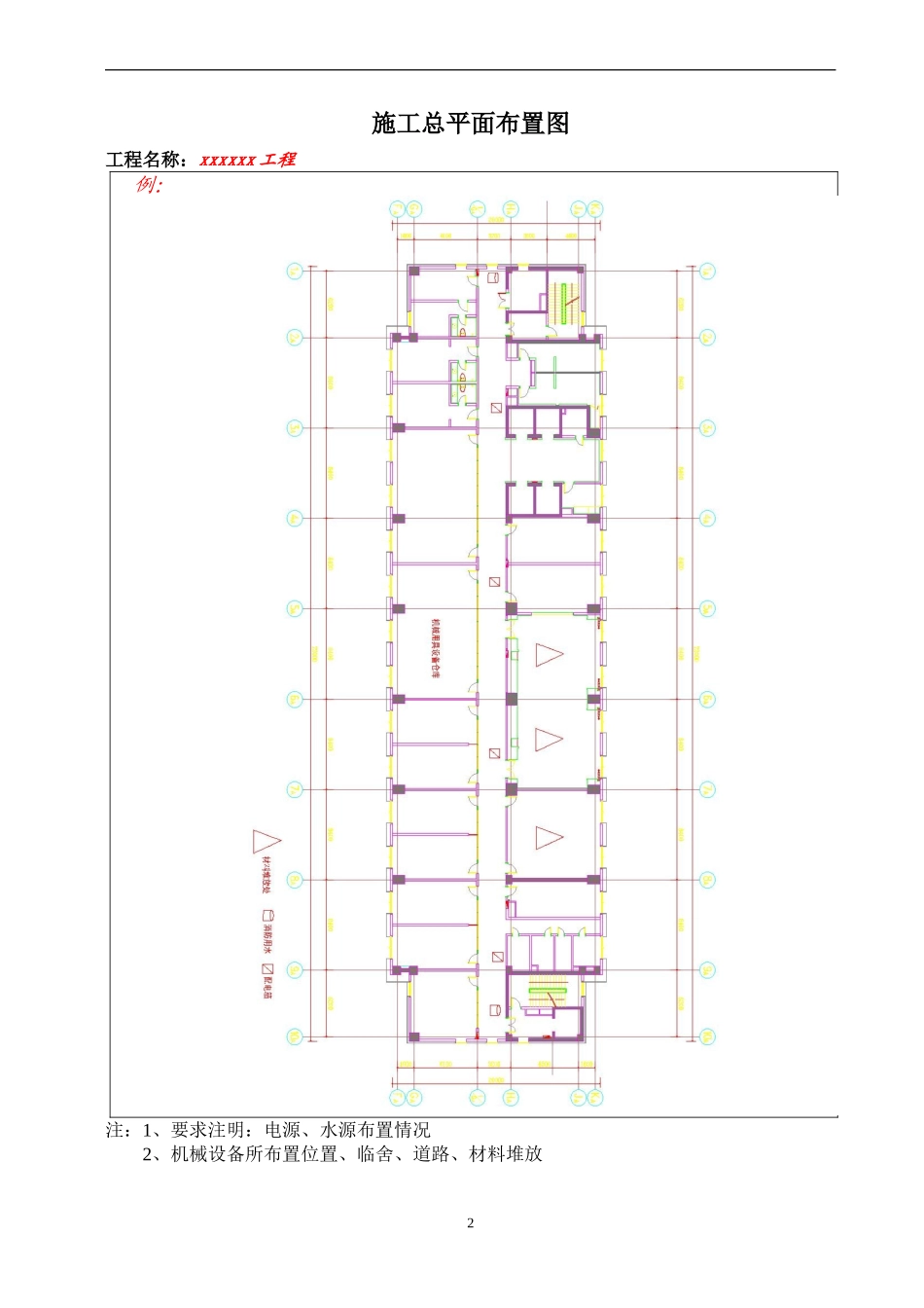
全套建筑工程安全资料-实例整理版_第2页
2/123
全套建筑工程安全资料-实例整理版_第3页
3/123
工程概况TJ1.1工程名称工程地址工程类型□1.建筑;□2.设备安装;■3.装修工程■1.新建;□2.扩建;□3.改建xxx万元投资类别□1.外资;□2.合资;■3.国有;□4.集体;□5.民营其中:桩基/万元施工面积xxxxm²层次xx层土建/万元结构类型框架开工日期xx年x月x日安装xxx万元完工日期xx年x月x日验收日期装修xxx万元单位名称资质等级法人代表项目负责人建设单位xxxx公司x级xxxxxx勘察单位////设计单位xxxx设计有限公司甲级xxxxxx监理单位xxxx监理有限公司一级xxxxxx施工单位总包南京国豪装饰安装工程有限公司一级顾兵xxx分包////分包////分包////结构及装修概况基础主体结构屋面楼、地面地转、地毯、门窗成品装饰门外装饰内装饰吊顶:石膏板、铝板、矿棉板;墙面:石材干挂、饰面板、墙砖粘贴、墙纸裱糊;地面:石材铺贴、地转铺贴、地毯铺张;台柜;金属栏杆机扶手水、暖、卫给排水、卫生洁具电气电气管线、灯具附注复核人:现场技术负责人填表人:资料员1施工总平面布置图工程名称:xxxxxx工程例:注:1、要求注明:电源、水源布置情况2、机械设备所布置位置、临舍、道路、材料堆放2xxxxxx工程安全生产管理机构网络施工现场安全值班表日期星期一星期二星期三星期四星期五星期六星期日姓名xxxxxxxxxxxxxxxxxxxxx职务项目经理安全员质检员材料员施工员技术负责人预算员代值///////项目经理:xxx安全员:xxx技术负责人xxx质量员xxx施工员xxx材料员xxxxxx瓦工班xxx后勤班xxx木工班xxx油漆班xxx水电班木工班xxx机修班3企业与项目部签定安全生产预控目标责任书根据《建筑法》、《劳动法》、建设部《建筑施工安全检查标准》JGJ59-99及《建筑工程安全生产监督管理工作导则》和《工程建设标准强制性条文》、依照省、市关于加强安全生产工作的有关规定、企业和建设局签定的《2011年安全生产、文明施工目标管理责任书》。现和项目部签定安全生产预控目标责任书,具体内容如下:一.管理目标1.杜绝死亡和重伤事故,火灾和爆炸、中毒事故。2.轻微伤害事故月发生率控制在0.1‰以内。3.各专项方案备案实施率达100%。4.大型机械设备备案、验收、检测达100%。5.项目部安全生产、文明施工按JGJ59-99检查考核达到85分以上。6.严格遵守安全生产许可证制度和"三类人员"安全生产任职考核制度,无违规行为。7.创建市文明工地、江苏省文明工地。二、责任要求1.项目经理重视,安全生产组织机构设置和管理网络健全,各项安全管理规章制度落实分工明确,工地天天有检查并有检查记录。2.及时上报并严肃查处各类事故,不得隐瞒事故,对事故坚持"四不放过";及时发现和整改事故隐患。3.开展安全教育和培训。使特种作业人员持证率达到100%,上岗安全教育率达到100%,换岗安全教育率达到100%。4.塔吊和施工升降机的组、拆、装必须持有起重设备安装资质,组、拆、装方案编制、审核等必须达到规范要求,经过备案、检测合格、挂牌后方可使用。5.基坑、模板、脚手架、施工用电、桩机、卸料平台施工前必须制定详细的施工方案,并按方案施工,重大方案必须报送备案和专家论证。三.考核及奖惩公司将对每个项目部进行检查考核,并根据考核情况进行奖惩。1.对达到责任书目标要求的项目部给予相应的奖励,具体奖励办法按照双方签定的《内部工程承包合同》的规定。2.在安监站或者公司举行的大检查中,如发现事故隐患的,按公司相关文件进行处罚,并勒令限期整改,期限内未落实整改的公司将给予双倍处罚并停止该项目的工程款拔付直至整改妥善为止。3.对发生重伤事故的,对有关责任人给予相应的行政处分,对发生严重事故的项目部,将停止该项目经理继续承接工程,情节严重的依法追究法律责任。公司经理:xxx项目经理:xxx签定时间:xxxx年x月x日4实现安全预控目标的措施1.各级规章制度制定(1)公司内部应制定健全的安全生产管理制度,做的责任到人,并由公司安全科牵头监督好各施工工地项目部的安全生产工作。(2)项目部也应制定好现场相关安全文明施工的规定,制定好安全生产岗位责任制,并严格按规定要求执行,要做到照章办事。2.以人为本,教育为先(1)工人进场后应做好登记记录工作并立即开展岗前三级安全教育工作,根据各...

1、当您付费下载文档后,您只拥有了使用权限,并不意味着购买了版权,文档只能用于自身使用,不得用于其他商业用途(如 [转卖]进行直接盈利或[编辑后售卖]进行间接盈利)。
2、本站所有内容均由合作方或网友上传,本站不对文档的完整性、权威性及其观点立场正确性做任何保证或承诺!文档内容仅供研究参考,付费前请自行鉴别。
3、如文档内容存在违规,或者侵犯商业秘密、侵犯著作权等,请点击“违规举报”。

碎片内容

全套建筑工程安全资料-实例整理版

确认删除?
VIP
微信客服
  • 扫码咨询
会员Q群
  • 会员专属群点击这里加入QQ群
客服邮箱
回到顶部