电脑桌面
添加小米粒文库到电脑桌面
安装后可以在桌面快捷访问

人货梯进出平台施工方案VIP免费

人货梯进出平台施工方案_第1页
1/16
人货梯进出平台施工方案_第2页
2/16
人货梯进出平台施工方案_第3页
3/16
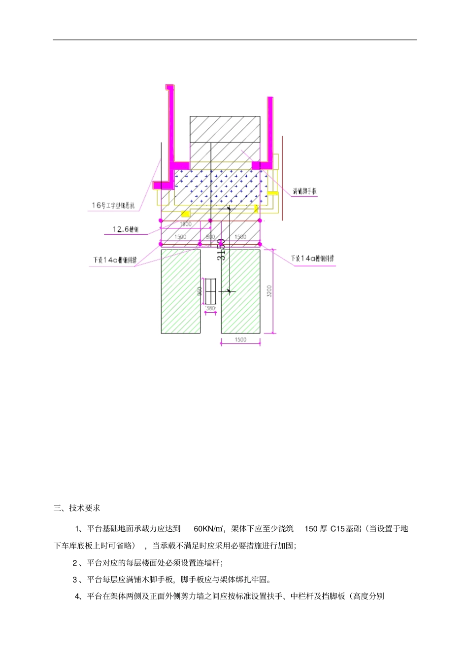
目录一、工程概况.....................................................................2二、设计依据及适用范围...........................................................2三、技术要求.....................................................................3四、搭设材料要求.................................................................4五、施工要求.....................................................................41、搭设要求....................................................................42、拆除要求....................................................................4六、施工程序.....................................................................51、施工前的准备................................................................52、地基与基础..................................................................53、平台架的搭设................................................................54、平台架的拆除................................................................5七、落地平台架的设计计算书.......................................................5八、悬挑平台架的设计计算书......................................................12人货电梯料台施工方案一、工程概况1、地理位置:********2、工程名称:************建设单位:***************设计单位:****************监理单位:**************3、本工程结构形式框剪/框架结构;**********4、***********楼分别设置两台SC200/200型人货梯,人货梯架体与主体脚手架断开独立搭设,7层以下采用落地式,7层以上每隔6层一挑,搭设在悬挑工字型钢上面。二、设计依据及适用范围1、《建筑施工扣件式钢管脚手架安全技术规范》(JGJ130-2011);2、《建筑施工安全检查标准》(JGJ59-2011);3、《建筑施工脚手架实用手册》;4、搭设高度及施工荷载规定如下:本施工方案为人货梯料台施工方案,安装位置在南侧阳台上,具体位置见平面示意图。架体分段高度为:20.7m,17.4m,17.4m,17.4m,19m,架体平面尺寸为3.8m×0.9m,架体连同平台尺寸为3.8m×3m;立杆纵距1.5m、1.9m(落地式平台按1.5m计算,悬挑式平台按1.9m计算),立杆横距0.9m,立杆步距1.8m、1.2m(计算按1.8计算),平台架体外侧均布置剪刀撑;平台架体施工荷载按3.0Kn/m2计算,悬挑层采用三根16号工字型钢悬挑,联梁采用12.6槽钢,工字型下设置14a槽钢斜撑,连墙杆每层需采用预埋件螺栓形式设置7层以下架体搭设在地下室顶板上(-1.5m),7层、13层、19层、25层分别外挑,架体平面布置图见下图:三、技术要求1、平台基础地面承载力应达到60KN/㎡,架体下应至少浇筑150厚C15基础(当设置于地下车库底板上时可省略),当承载不满足时应采用必要措施进行加固;2、平台对应的每层楼面处必须设置连墙杆;3、平台每层应满铺木脚手板,脚手板应与架体绑扎牢固。4、平台在架体两侧及正面外侧剪力墙之间应按标准设置扶手、中栏杆及挡脚板(高度分别为1200、600、和180),本工程应公司要求满设模板;5、除满足以上要求外,平台架还应符合国家现行有关标准、规范的规定。四、搭设材料要求1、平台架、连墙杆及预埋插管等均应采用φ48×3.0的钢管,并应符合现行国家标准《直缝电焊钢管》(GB/T13793)或《低压流体输送用焊接钢管》(GB/T3092)中规定的3号普通钢管,其质量应符合标准《碳结构钢》(GB/T700)中的Q-235-A级钢的规定。2、本平台架应用可锻铸铁制作的扣件,其材质应符合国家规范《落地式钢管脚手架用扣件》(GB15831)的规定。3、平台的脚手板应符合JGJ130中的材质要求。五、施工要求1、搭设要求(1)相邻立柱的对接扣件不得在同一高度内,其在高度方向上错开的距离不小于500mm,对接扣件开口应朝内,当平台架搭至墙件的构造点时,应及时作连墙拉结。除立柱外,其余杆件应采用整根钢管搭设,不得对接使用。(2)水平杆应设置在立柱内侧,横向水平杆内端头距离墙面为50mm。(3)纵向扫地杆...

1、当您付费下载文档后,您只拥有了使用权限,并不意味着购买了版权,文档只能用于自身使用,不得用于其他商业用途(如 [转卖]进行直接盈利或[编辑后售卖]进行间接盈利)。
2、本站所有内容均由合作方或网友上传,本站不对文档的完整性、权威性及其观点立场正确性做任何保证或承诺!文档内容仅供研究参考,付费前请自行鉴别。
3、如文档内容存在违规,或者侵犯商业秘密、侵犯著作权等,请点击“违规举报”。

碎片内容

人货梯进出平台施工方案

确认删除?
VIP
微信客服
  • 扫码咨询
会员Q群
  • 会员专属群点击这里加入QQ群
客服邮箱
回到顶部