电脑桌面
添加小米粒文库到电脑桌面
安装后可以在桌面快捷访问

某住宅内的道路设计标准和施工做法VIP免费

某住宅内的道路设计标准和施工做法_第1页
1/54
某住宅内的道路设计标准和施工做法_第2页
2/54
某住宅内的道路设计标准和施工做法_第3页
3/54
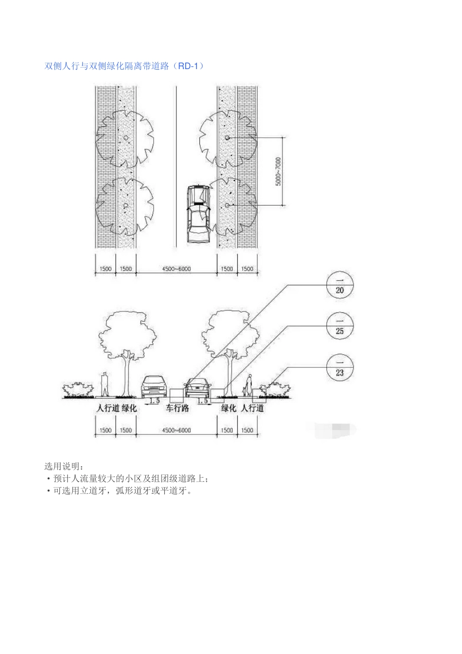
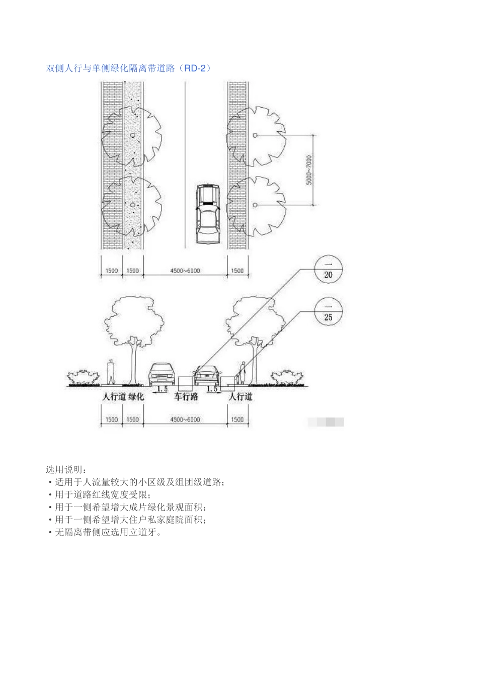
万科住宅内的道路设计,标准和施工做法结合万科集团对开发项目内道路设计的经验及存在问题,通过系统化的研究,对万科住宅内的道路设计进行总结归纳,形成适应万科集团需要的标准化道路做法,指导各一线公司在进行规划设计时减少道路部分的设计时间,避免设计错误。 本次标准化对象为住区红线内的机动车道路,对道路红线超过 30 米的居住区道路以及宅间路不做标准化要求,地下停车库不在本标准适用范围之内。 一、设计原则适应万科住区规划设计领域的发展需要,设计上强调“人行安全,车行方便”的理念,产品选用上应采用绿色环保的配套部品。 二、道路标准化 1、道路断面分类及选用指引 特别说明:·应保证小区级主要组团道路人行系统的完整性;·小区级道路最少应保证最少一侧有人行道;·绿化隔离带宽度宜大于 900mm,小于 900mm 时应种植灌木,以保护行人安全。 双侧人行与双侧绿化隔离带道路(RD-1)选用说明:·预计人流量较大的小区及组团级道路上;·可选用立道牙,弧形道牙或平道牙。双侧人行与单侧绿化隔离带道路(RD-2)选用说明:·适用于人流量较大的小区级及组团级道路;·用于道路红线宽度受限;·用于一侧希望增大成片绿化景观面积;·用于一侧希望增大住户私家庭院面积;·无隔离带侧应选用立道牙。 双侧人行与无绿化隔离带道路(RD-3)选用说明:·用于人车分流系统完善,预计人流量较少的小区级及组团道路;·为保护行人应选用立式道牙。 单侧人行与单侧绿化隔离带道路(RD-4)选用说明:·用于预计人流量较少或人流方向在单侧的小区级组团级道路;·可选用立道牙、弧形道牙或平道牙。 单侧人行与无绿化隔离带道路(RD-5)选用说明:·用于道路红线紧张,人流量较少的小区级及组团级道路;·用于小区级道路应选用立道牙;·用于组团级道路可选用弧形道牙或平道牙。 双侧无人行道路(RD-6)选用说明:·用于人车健康系统完善,预计较少人行的组团级尽端路·寻访通过变换材质或者用增加色彩的方式明确出货行的范围。道路宽度选用说明:·7~8 米:通常与小区主要出入口相连,是联系小区与城市或者居住区级道路的通路,应保证交通的畅顺,应设有独立的人行路,路边不应设置停车设施。·6 米:主要的小区级道路或有垂直停车需求的组团级道路。·5.5 米:道路用地紧张的小区级道路和有垂直停车需求的组团级道路,优先考虑采用弧道牙或平道牙增加车辆的心理宽度。·4~4.5 米:用于双向通行的组团级道路可满足路边平...

1、当您付费下载文档后,您只拥有了使用权限,并不意味着购买了版权,文档只能用于自身使用,不得用于其他商业用途(如 [转卖]进行直接盈利或[编辑后售卖]进行间接盈利)。
2、本站所有内容均由合作方或网友上传,本站不对文档的完整性、权威性及其观点立场正确性做任何保证或承诺!文档内容仅供研究参考,付费前请自行鉴别。
3、如文档内容存在违规,或者侵犯商业秘密、侵犯著作权等,请点击“违规举报”。

碎片内容

某住宅内的道路设计标准和施工做法

您可能关注的文档

确认删除?
VIP
微信客服
  • 扫码咨询
会员Q群
  • 会员专属群点击这里加入QQ群
客服邮箱
回到顶部