电脑桌面
添加小米粒文库到电脑桌面
安装后可以在桌面快捷访问

地脚螺栓预埋施工技术工艺VIP免费

地脚螺栓预埋施工技术工艺_第1页
1/7
地脚螺栓预埋施工技术工艺_第2页
2/7
地脚螺栓预埋施工技术工艺_第3页
3/7
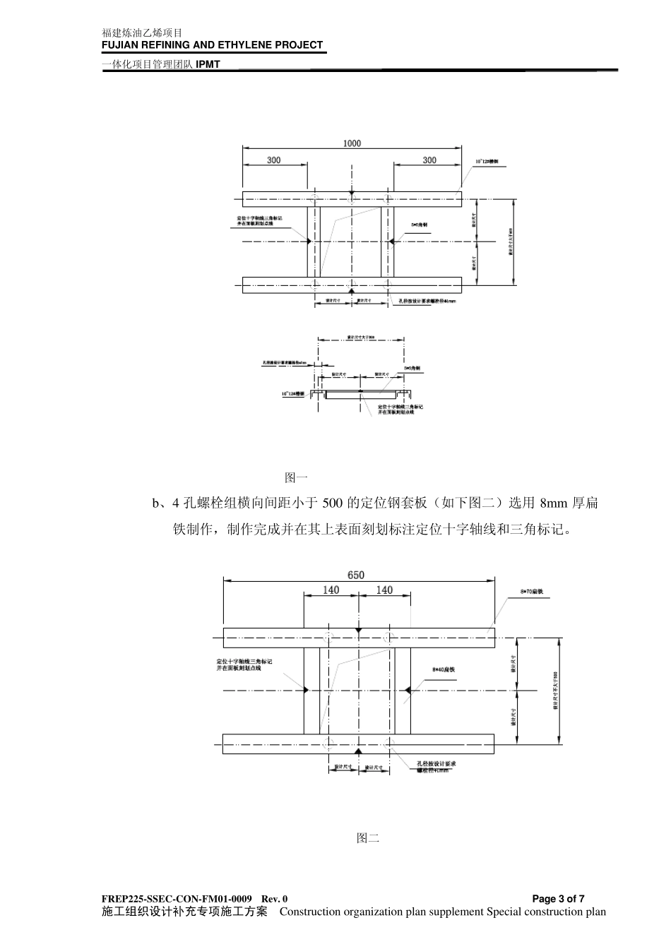
福建炼油乙烯项目 FUJIAN REFINING AND ETHYLENE PROJECT 一体化项目管理团队IPMT FREP225-SSEC-CON-FM01-0009 Rev. 0 Pag e 1 o f 7 施工组织设计补充专项施工方案 Construction organization plan supplement Special construction plan 福 炼 乙 烯 项 目 空压站、化学水凝结水施工组织设计补充 定位钢套板应用 地脚螺栓预埋 施 工 技 术 方 案 编 制: 审 核: 批 准: 上海金山石油化工建筑公司 2007 年 5 月 15 日 福建炼油乙烯项目 FUJIAN REFINING AND ETHYLENE PROJECT 一体化项目管理团队IPMT FREP225-SSEC-CON-FM01-0009 Rev. 0 Pag e 2 o f 7 施工组织设计补充专项施工方案 Construction organization plan supplement Special construction plan 一、编制说明 空压站、化学水凝结水施工区域内的设备基础上、厂房的基础和主体结构上,为了后续的设备安装和厂房钢结构安装,须预埋大量的地脚螺栓组,是施工现场的重点工作项目,特编制此方案补充施工组织设计。此方案须经 EPC、监理、IPMT 审核签字批准后实施。 二、编制依据: 总包方提供的福建炼油乙烯项目空压站、变电所、化学水凝结水施工设计图纸 IPMT的 HSE程序文件; 福炼有限公司安全生产管理制度 本公司 ISO9001:2000质量体系文件; 《工程测量规范》GB50026-93 《建筑变形测量规程》JGJ/T8-97 《建筑工程施工质量验收统一标准》GB50300-2001 《钢结构工程施工质量验收规范》GB50205-2001 《石油化工钢结构工程施工及验收规范》SH3507-99 《钢筋焊接及验收规程》JGJ18-2003 《建筑施工扣件式钢管脚手架安全技术规范》JGJ130-2001 三、施工准备 1)地脚螺栓、螺帽、垫圈的规格型号、形状尺寸、数量严格按设计要求选用,请有专业资质的工厂代加工,各产品出厂应有产品合格证和检测试验报告。 2)每组预埋螺栓一套定位钢套板,定位钢套板采用Q235 级钢 ,根据预埋螺栓组数量,规格尺寸设计要求的不同加工成相应的规格,钢套板制作完成,应在其上标识配套的预埋螺栓规格、数量及基础定位预埋轴线位置。 3)根据预埋螺栓组数量主要加工制作两大类不同规格的定位钢套板 a、6 孔螺栓组横向间距大于 500 的定位钢套板(如下图一)选用 10~12#槽钢与 5*5 角钢制作,制作完成并在其上表面刻划标注定位十字轴中心线和三角标记。 福建炼油乙烯项目 FUJIAN REFINING AND ET...

1、当您付费下载文档后,您只拥有了使用权限,并不意味着购买了版权,文档只能用于自身使用,不得用于其他商业用途(如 [转卖]进行直接盈利或[编辑后售卖]进行间接盈利)。
2、本站所有内容均由合作方或网友上传,本站不对文档的完整性、权威性及其观点立场正确性做任何保证或承诺!文档内容仅供研究参考,付费前请自行鉴别。
3、如文档内容存在违规,或者侵犯商业秘密、侵犯著作权等,请点击“违规举报”。

碎片内容

地脚螺栓预埋施工技术工艺

您可能关注的文档

确认删除?
VIP
微信客服
  • 扫码咨询
会员Q群
  • 会员专属群点击这里加入QQ群
客服邮箱
回到顶部