水冷满液式螺杆式水机组 (用户手册) V 1.0 南京天加空调设备有限公司 水冷满液式螺杆冷水机组(用户手册) WATER-COOLED FLOODED S...
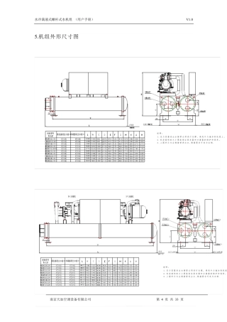
水冷满液式螺杆式水机组 (用户手册) V 1.0 南京天加空调设备有限公司 第 4 页 共 33 页 5.机组外形尺寸图 1 . 压力容器进...
天加模块化水冷式冷(热)水机组
大金D型水冷螺杆机说明书
下载后可任意编辑DFSS-5X 水冷冷热水机组功能说明书12024 年 5 月 29 日水冷冷热水机组功能说明书 DFSS-5X 德 福 电 子编制: ...
1 水煤浆水冷壁(清华炉)气化技术水煤浆水冷壁(清华炉)气化技术一、概述北京盈德清大科技有限责任公司是盈德气体集团有限公司与清华大...
水冷螺杆机说明书0 目 录一、机组安装要求⋯⋯⋯⋯⋯⋯⋯⋯⋯⋯⋯⋯⋯⋯⋯⋯⋯⋯⋯⋯⋯⋯⋯⋯...⋯⋯⋯⋯⋯⋯⋯⋯⋯⋯⋯ ..... 2 二、...
水冷式螺杆冷水机组技术参数表 /Chart of technical parameters of water cooling spiral long rod chiller unit 类别 /sort...
水冷螺杆机组操作说明LSBLG420/MC 使用部分螺杆式冷水机组调试和运行期,应由专业技术人员进行正确的操作及维护,非专业人员请不要随意进...
【tips 】本文由李雪梅老师精心收编,值得借鉴。此处文字可以修改。水冷螺杆机组的开机事项空水冷型螺杆式冷水机组的操作与维修◎ 方文一...
仅供参考 [整理 ] 第 1 页 共 4 页安全管理文书水冷柜式空调操作规程日期: __________________单位: __________________仅供参...
中国移动云南公司呈贡数据中心一期室外空调蓄冷管道专项施工方案1. 工程概况1.1 工程施工内容本工程管道系统施工主要包括中国移动云南公...
水冷旋风分离器介绍四川川锅锅炉有限责任公司开发新一代循环流化床锅炉,它是对循环流化床锅炉运行多年的总结,以运行的高温热旋风分离器的...
1、工程概况1.1 盘锦辽通化工股份有限公司220T/H循环硫化床锅炉工程水冷壁系统由哈尔滨锅炉厂提供。水冷系统总重量为208315kg , 主要由...
word 格式文档专业整理40/H 锅炉水冷壁管更换施工方案word 格式文档专业整理编制单位 :江苏静安工业设备安装有限公司编制日期 :2014...
编号:ZX2016-GL-#1-CX-001 #1 机组锅炉水冷壁检修作业文件包批准:日期:审定:日期:审核:日期:校对:日期:编写:日期:设备维护部...
内蒙古第一电力建设工程有限责任公司海电三期工程项目部第 3 页 共 23 页4.5.4 附施工安装记录表格:施 工 安 装 记 录记录编号...
水冷冷水机组与水冷柜机系统优势比较一、 项目概况:贵项目为某厂房中央空调系统,目前已知贵方厂房共有五层,中央空调系统的需冷量约为 ...
水冷冷水机组热回收方式分类目前水冷冷水机组有冷却水热回收与排气热回收两种方式。1) 冷却水热回收是在冷却水出水管路中加装一个热回收换...
第 二 章 LH系 列 螺 杆 式 水 冷 冷 水 机 组 (R22) 一 、 产品概述 1、产品特点 在水冷冷水机市场上,效率和运行成本...

